BS3 4AR - Land for sale in BUILDING PLOT Whitehouse Street, Bedminste…

View on Property Piper

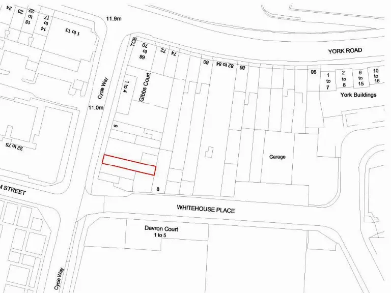
Land for sale in BUILDING PLOT - Whitehouse Street, Bedminster, Bristol, BS3

Summary - 15, WHITEHOUSE STREET BS3 4AR

1 bed 1 bath Land

**Standout Features:**
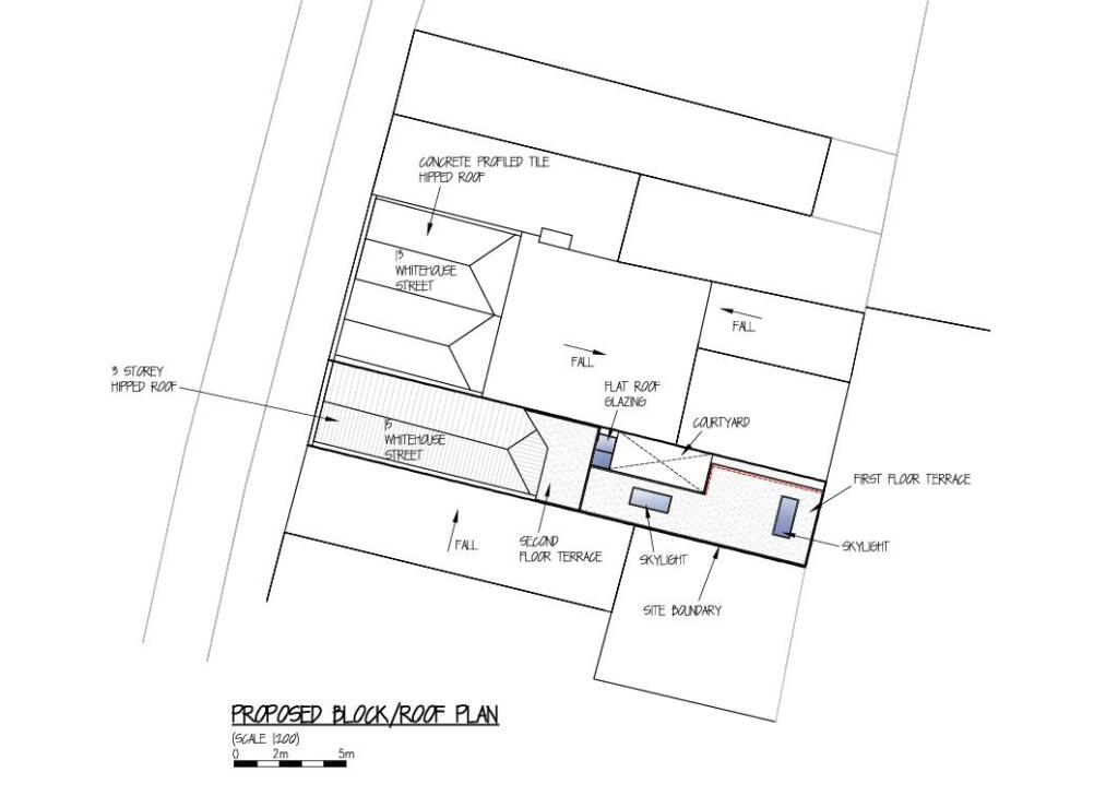
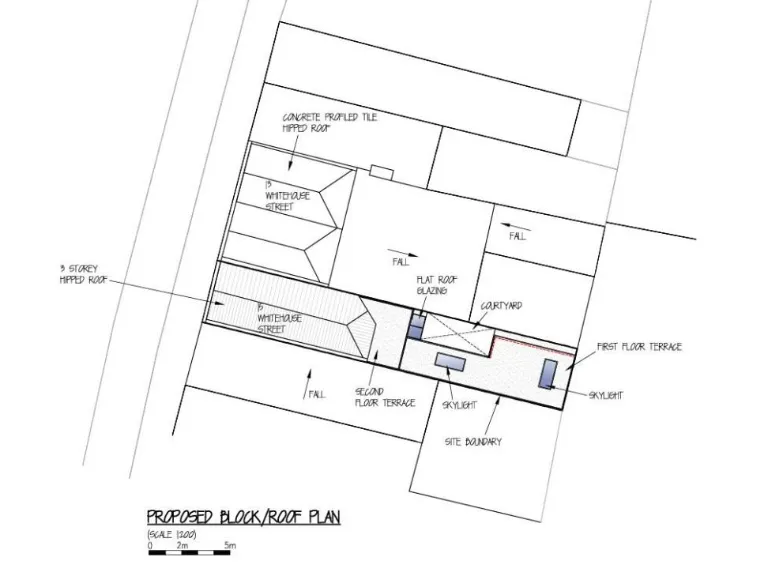
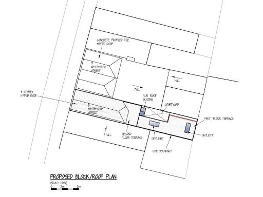
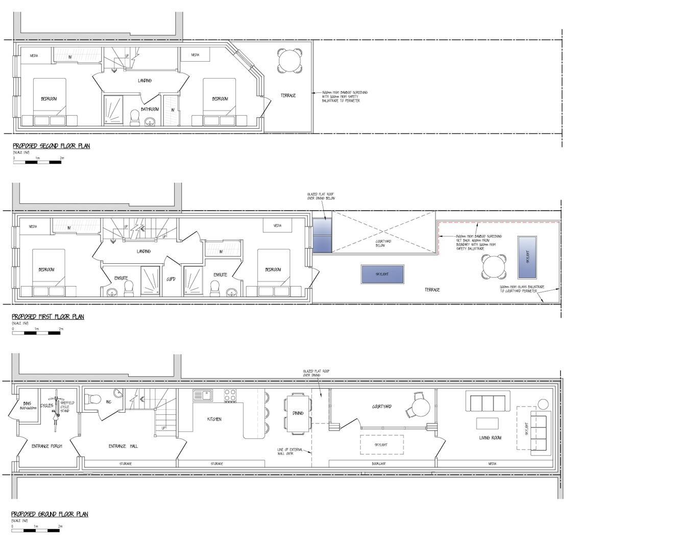
- Freehold development site with planning permission granted for a four-bedroom townhouse.
- Proposed design includes a private courtyard garden and two roof terraces.
- Situated in a rapidly redeveloping area close to the city center.
- Excellent local amenities and transport links.
- Potential for alternative schemes (HMO or flats) subject to consent.

**Summary:**
This prime freehold development site on Whitehouse Street in Bedminster offers a unique opportunity for developers looking to create a stylish three-storey townhouse with four bedrooms. Boasting planning permission for a contemporary design that includes both a courtyard garden and two spacious roof terraces, this parcel of land is perfect for urban living. Its favorable location is within a vibrant area undergoing significant regeneration, promising future appreciation and added value.

With a total of 1,549 square feet, the proposed interior plans feature an inviting entrance hall, open-plan kitchen/dining/living area, en-suite bedrooms, and flexible options for further development, such as converting to HMO or flats. Local amenities and strong transport links make it an excellent investment prospect. Don’t miss your chance to bid in the online auction on September 18, 2025—this property’s potential and prime location are sure to attract significant interest!

Property Details

Brochure Descriptions

Image Descriptions

Textual Property Features

Detected Visual Features

Nearby Schools

Nearest Bars And Restaurants

,,,,}

Nearest General Shops

,,}

Nearest Grocery shops

,,}

Nearest Supermarkets

,,}

Nearest Religious buildings

,,}

Nearest Medical buildings

,,,}

Nearest Airports

}

Nearest Leisure Facilities

,,,,}

Nearest Tourist attractions

,,}

Nearest Train stations

,,,,}

Nearest Bus stations and stops

,,,,}

Nearest Hotels

,,}

Tags

Local Market Stats

AirBnB Data

Meta

High Res Images

Compatible Images

Low res Images

Thumbnails

Raw Images

High Res Floorplan Images

Compatible Floorplan Images

Low res Floorplan Images

FloorplanImages Thumbnail

Raw Floorplan Images