Very large plot with approved plans for an executive five-bedroom family home near local amenities.
- Full planning permission for five-bedroom detached executive home (P/2006/0312)
- Very large residential plot with private garden potential
- Off-street parking shown on approved site plan
- Mains gas, underfloor heating and double glazing planned
- Fast broadband and excellent mobile signal on site
- Area classified as very deprived — may affect values
- Tenure unknown; buyer must confirm legal status
- Planning dated 2006 — check permission remains valid
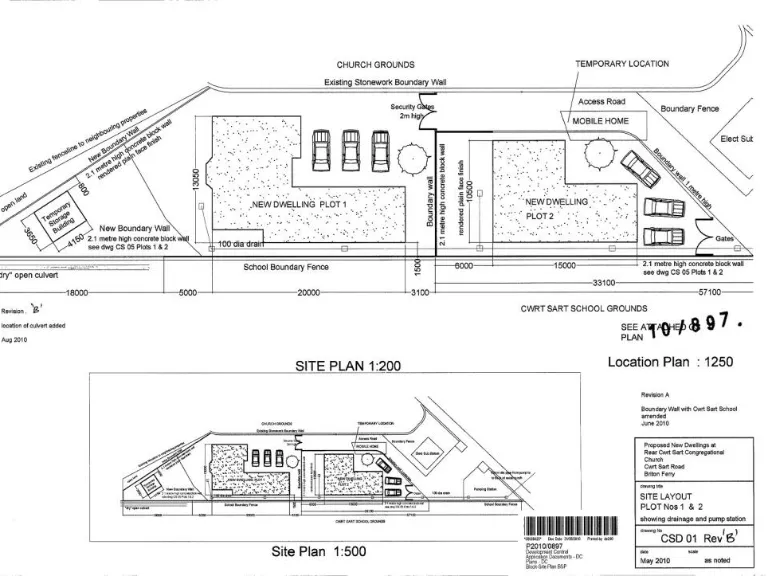
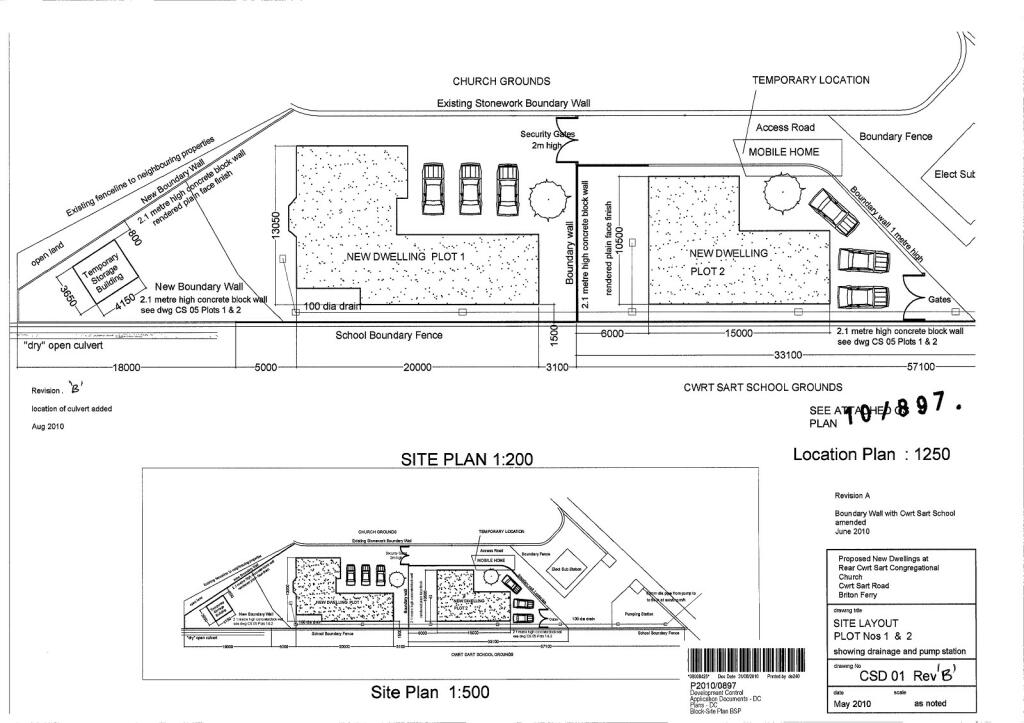
A substantial, very large residential plot in Cwrt Sart offered with full planning permission (P/2006/0312) for a detached five-bedroom executive family home. The approved scheme envisages a spacious modern dwelling with underfloor heating, double glazing and off-street parking, set in a plot that promises private garden space and generous outdoor room for family life.
Positioned close to local shops, a school and good M4 corridor links, the site suits buyers seeking a bespoke family home or a development investment with planning already in place. Practical positives include mains gas, fast broadband and excellent mobile signal which support modern family living and connectivity.
Notable considerations: the area is classified as very deprived, which may affect long-term resale values and community services. Tenure is not stated and should be confirmed, and the planning consent is referenced from 2006 so buyers should verify that permissions remain valid and check any updated local planning requirements. Services, build costs and timescales will need confirming before purchase.
This plot offers clear potential for a sizable, modern family home or a development opportunity for a buyer prepared to progress the planning and construction stages. Verify tenure, permission status and service connections early to assess project viability.
Plot for sale in Forest Lodge Lane, Port Talbot, West Glamorgan, SA13 2RX, SA13 — £150,000 • 1 bed • 1 bath • 3000 ft²
Land for sale in Garbett Place, Crynant, Neath, SA10 — £90,000 • 1 bed • 1 bath
Plot for sale in Forest Lodge Lane, Port Talbot, West Glamorgan, SA13 2RX, SA13 — £150,000 • 1 bed • 1 bath • 4171 ft²
Plot for sale in Forest Lodge Lane, Port Talbot, West Glamorgan, SA13 2RX, SA13 — £150,000 • 1 bed • 1 bath • 3205 ft²
5 bedroom detached house for sale in Gower Road, Upper Killay, Swansea, City And County of Swansea., SA2 — £159,995 • 5 bed • 3 bath • 7954 ft²
Plot for sale in 37 Heol Derwen, Cimla, Neath. SA11 3YY, SA11 — £65,000 • 1 bed • 1 bath • 808 ft²






