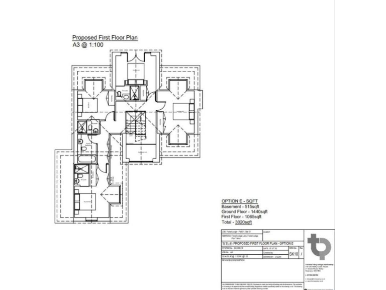
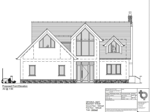
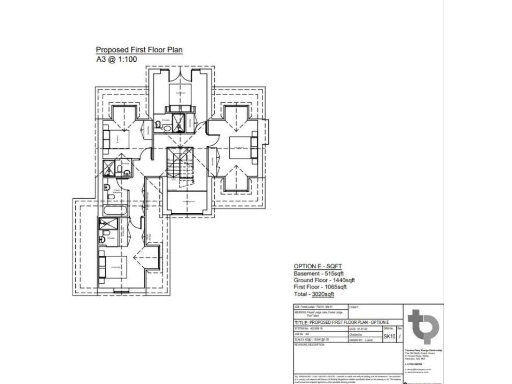
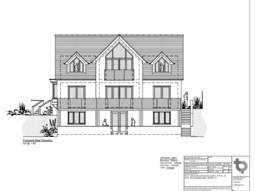
**Standout Features:**
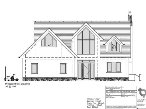
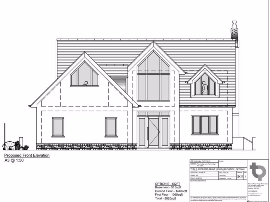
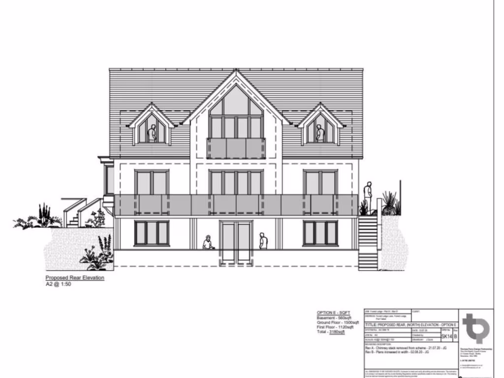
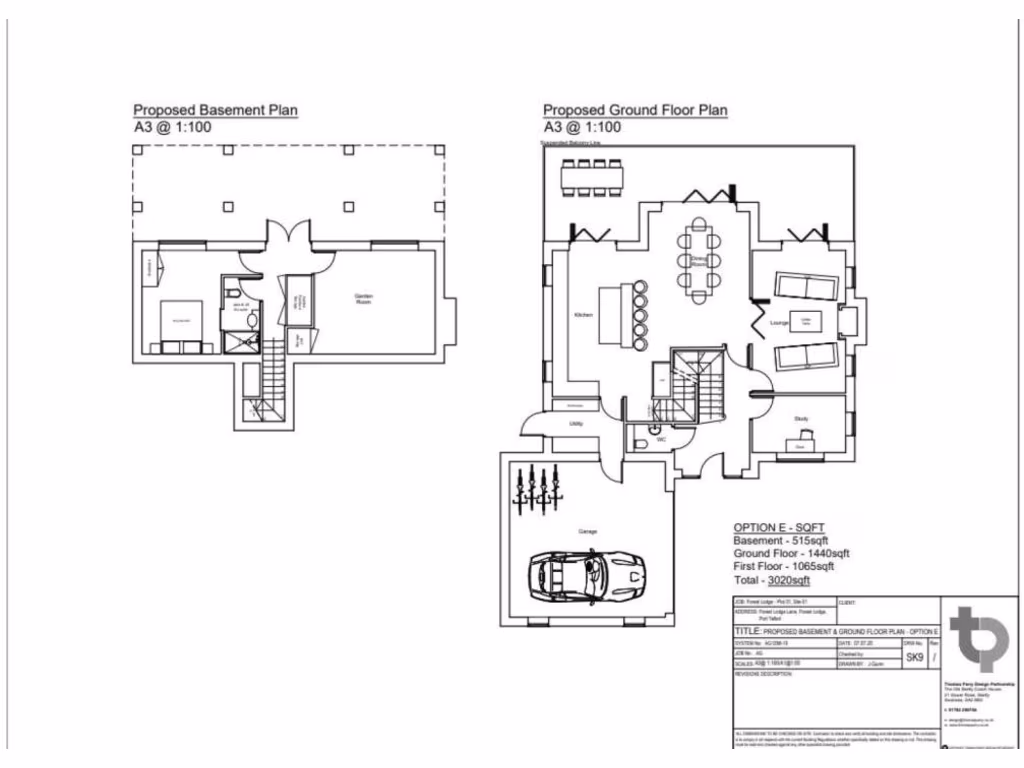
- Planning approved for a four-bedroom detached executive home
- Expansive plot with a total area of 4,171 sq ft
- Located in a desirable area with unobstructed mountain views
- Ample off-road parking available
- Three-storey potential design
- Situated in a mature executive private estate
**Potential Downsides:**
- Currently vacant pasture requiring development
- Broadband speeds are slow
- The area has a higher deprivation level, which may influence neighborhood dynamics
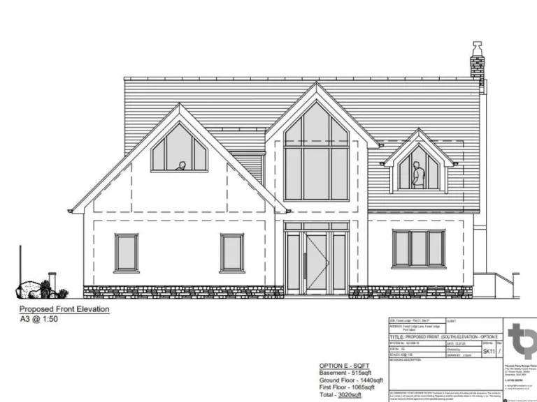
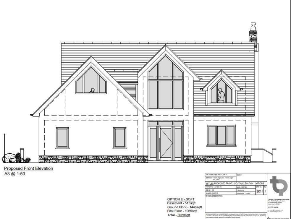
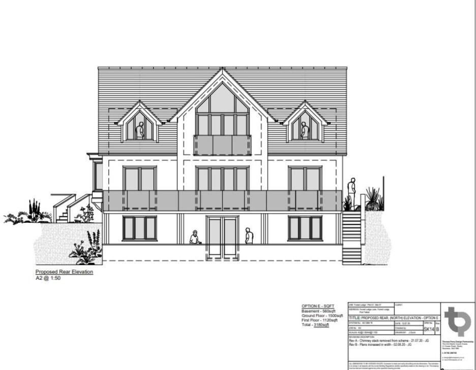
Discover an exceptional development opportunity in the sought-after locale of Cwmavon. This expansive plot, currently vacant, offers approved planning permission for a prestigious four-bedroom detached home, allowing you to create a personal haven that meets modern living standards. Envisage a three-storey residence set amid breathtaking mountain views, with plenty of off-road parking for family and guests.
Nestled within a private estate characterized by high-quality executive homes, this location strikes a balance between peaceful living and practicality, with easy access to the M4 corridor for convenient commuting. Although the area experiences slow broadband speeds and some socio-economic challenges, the potential for a custom-built home in this rare-to-market location is unmatched. This type of property is not often available—act swiftly to capitalize on a unique chance to shape the ideal family home or investment property in a developing community.
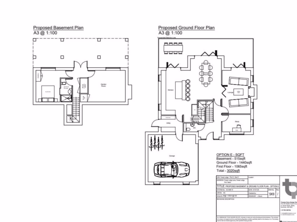
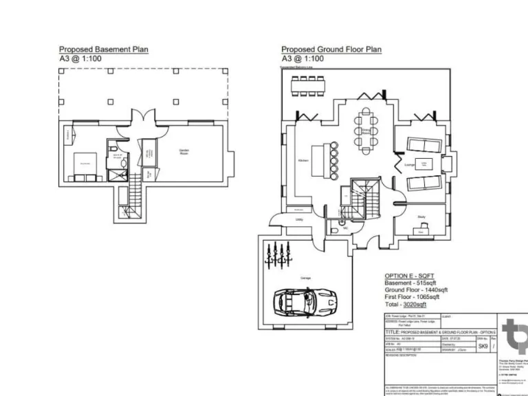
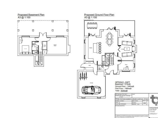
Plot for sale in Forest Lodge Lane, Port Talbot, West Glamorgan, SA13 2RX, SA13 — £150,000 • 1 bed • 1 bath • 3205 ft²
Plot for sale in Forest Lodge Lane, Port Talbot, West Glamorgan, SA13 2RX, SA13 — £150,000 • 1 bed • 1 bath • 3000 ft²
Land for sale in Garbett Place, Crynant, Neath, SA10 — £100,000 • 1 bed • 1 bath
Land for sale in Owen Jones Way, Bryn, Port Talbot, SA13 — £100,000 • 1 bed • 1 bath • 2000 ft²
Land for sale in Convil Road, Blaengarw, Bridgend, CF32 8BN, CF32 — £100,000 • 1 bed • 1 bath
Land for sale in New Road, Ynysmeudwy, Pontardawe, Swansea, City And County of Swansea. SA8 4PJ, SA8 — £80,000 • 1 bed • 1 bath • 2099 ft²






















































































