SA2 7DP - 5 bed executive five bedroom plot in Gower Road, SA2 7DP

View on Property Piper

5 bedroom detached house for sale in Gower Road, Upper Killay, Swansea, City And County of Swansea., SA2

Summary - 594, Gower Road, Upper Killay SA2 7DP

5 bed 3 bath Detached

Large plot with planning consent, woodland backing and short drive to Gower coastline.
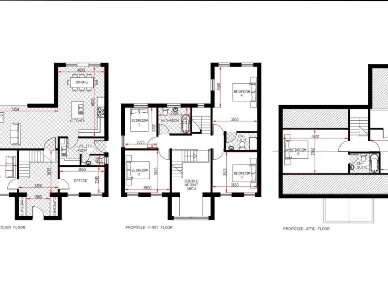
Full planning granted for a 3‑storey 5‑bed executive home
A large building plot in Upper Killay with full planning consent for an executive three‑storey, five-bedroom detached home. The approved scheme delivers generous open-plan living, separate sitting room and office, utility and integral garage — designed to take advantage of the plot backing onto woodland.

The plot is approximately 7,954 sq ft including driveway and sits within walking distance of the local primary school and a cycle path to Mumbles. The Gower coastline is a short drive away, making this a strong choice for a family seeking space, outdoor access and quick links to nearby coast and leisure routes.

Important practical points are clear: this is a plot sale requiring construction to the approved plans, so buyers must allow for build costs, timescale and statutory fees. Existing wall construction is cavity with no insulation recorded (assumed), which should be confirmed during build design. The wider area shows very deprived indices — factor local economic context into valuation and resale expectations.

Full planning reference 2022/1636/FUL has been granted; further documents and the full spec are available on request. This opportunity suits a family or self-builder who wants a substantial, modern executive home in a semi-rural suburban setting, but be prepared for the commitment and costs of a new build project.

Property Details

Image Descriptions

Floorplan Description

Rooms

Textual Property Features

Target Audience

AI Tags

Detected Visual Features

EPC Details

Nearest Bars And Restaurants

,,,,}

Nearest General Shops

,,}

Nearest Grocery shops

,,}

Nearest Supermarkets

,,}

Nearest Religious buildings

,,}

Nearest Medical buildings

,,,}

Nearest Leisure Facilities

,,,,}

Nearest Tourist attractions

,,}

Nearest Train stations

,,,,}

Nearest Bus stations and stops

,,,,}

Nearest Hotels

,,}

Tags

Local Market Stats

AirBnB Data

Similar Properties

Meta

High Res Images

Compatible Images

Low res Images

Thumbnails

Raw Images

High Res Floorplan Images

Compatible Floorplan Images

Low res Floorplan Images

FloorplanImages Thumbnail

Raw Floorplan Images