**Standout Features:**
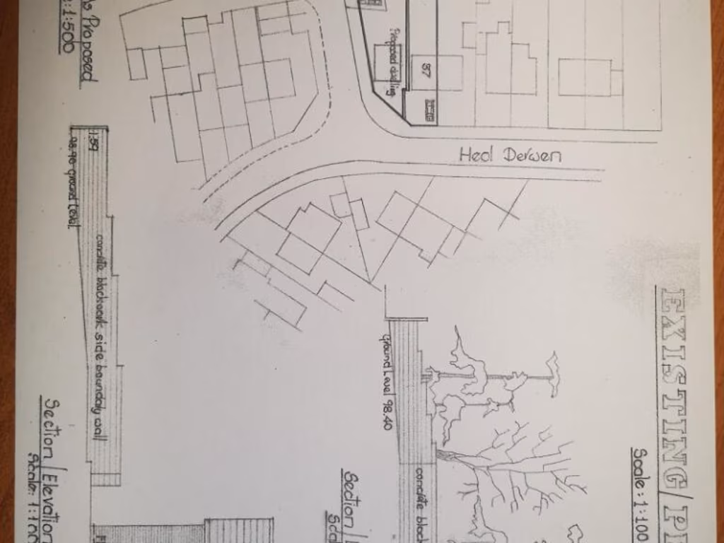
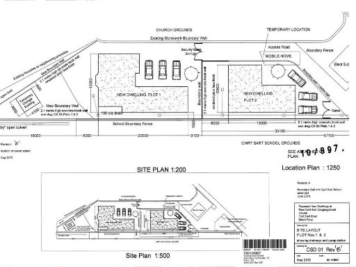
- Large building plot with planning permission for a detached dwelling (Outline permission reference: P2022/1057)
- Desirable residential location in a city setting with excellent investment potential
- Freehold tenure, offering long-term security
- Low crime rate and fast broadband connectivity
- Decent plot size in a well-established area
**Potential Concerns:**
- Area classified as very deprived, may affect future investment returns
- Planning documents and conditions require careful review
This sizable building plot offers an exceptional investment opportunity in a sought-after residential area, with outline planning permission already in place for a detached home. Envision your future in this vibrant community, where you can create a personalized haven. With a sizeable garden area and low crime rates, this location is perfect for families looking to build their dream home. The surrounding environment is peaceful, and enjoying local amenities like a stream and post box just adds to the appeal of suburban living.
However, it's advisable to consider the area’s socio-economic status, which may influence long-term value. This plot represents a rare find in today's market with potential for rental, resale, or personal use. Don’t miss out on this opportunity to invest in a property primed for future growth—secure your view today!
Land for sale in Owen Jones Way, Bryn, Port Talbot, SA13 — £100,000 • 1 bed • 1 bath • 2000 ft²
Land for sale in Varteg Row,Bryn,Port Talbot,SA13 2RF, SA13 — £130,000 • 1 bed • 1 bath
Land for sale in Nant Celyn, Crynant, Neath, SA10 — £70,000 • 1 bed • 1 bath
Plot for sale in Cwrt Sart, Neath, Neath Port Talbot., SA11 — £150,000 • 1 bed • 1 bath • 2853 ft²
Land for sale in Garbett Place, Crynant, Neath, SA10 — £100,000 • 1 bed • 1 bath
Land for sale in Owen Jones Way, Bryn, Port Talbot, SA13 — £100,000 • 1 bed • 1 bath • 2000 ft²










































