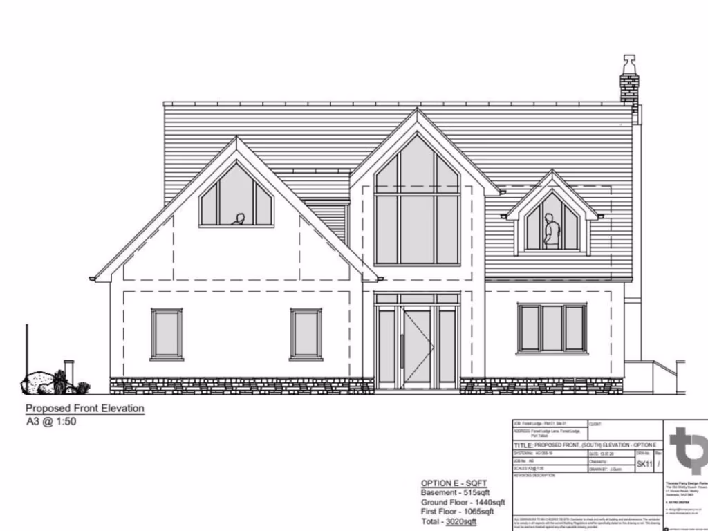
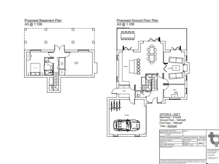
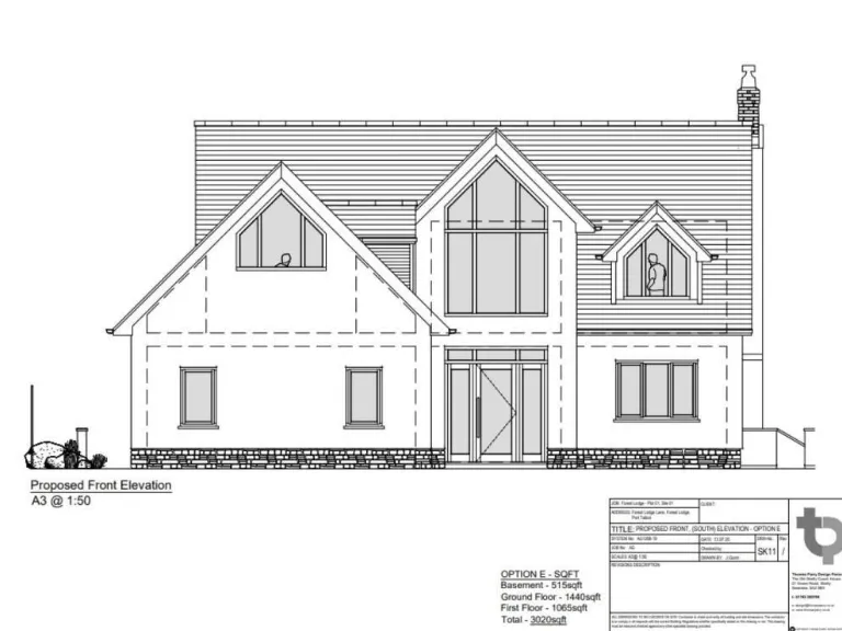
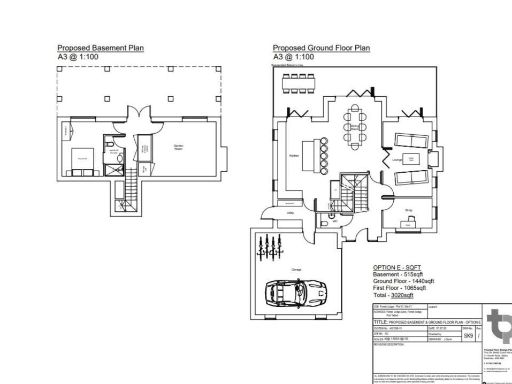
**Standout Features:**
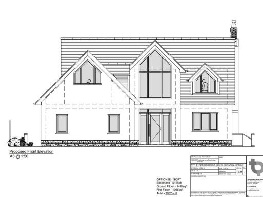
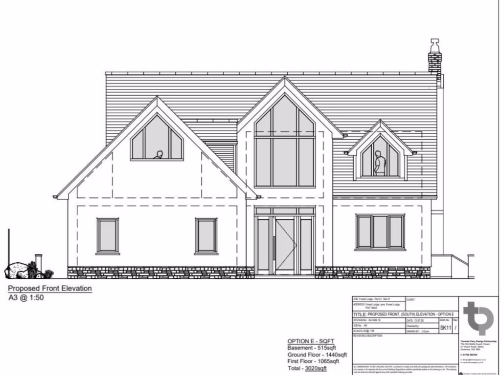
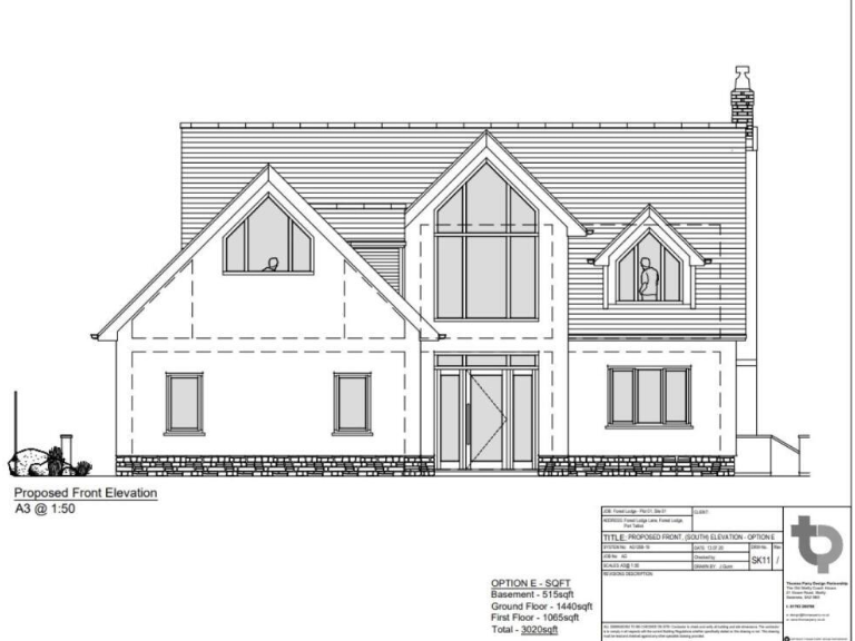
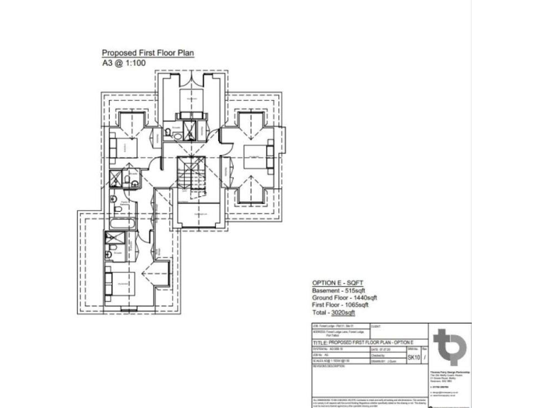
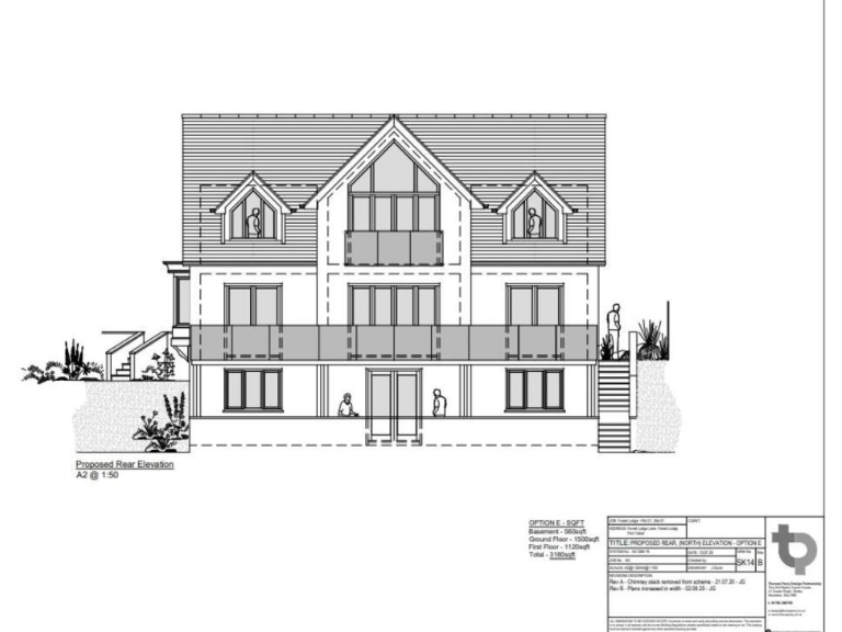
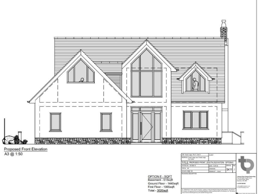
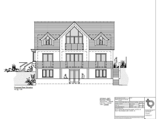
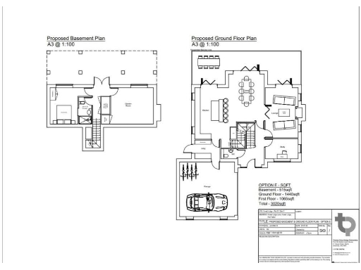
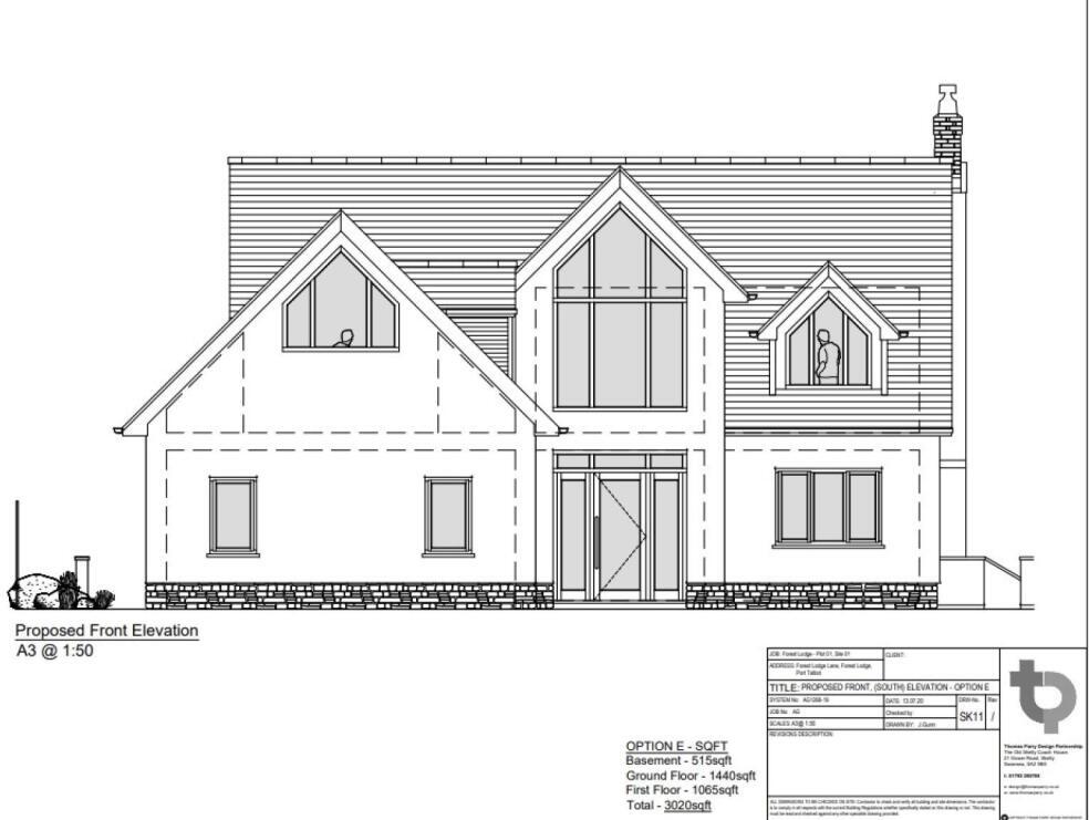
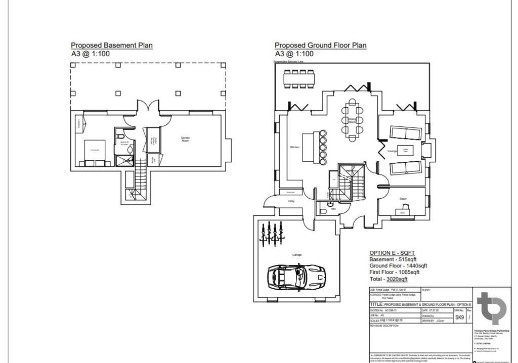
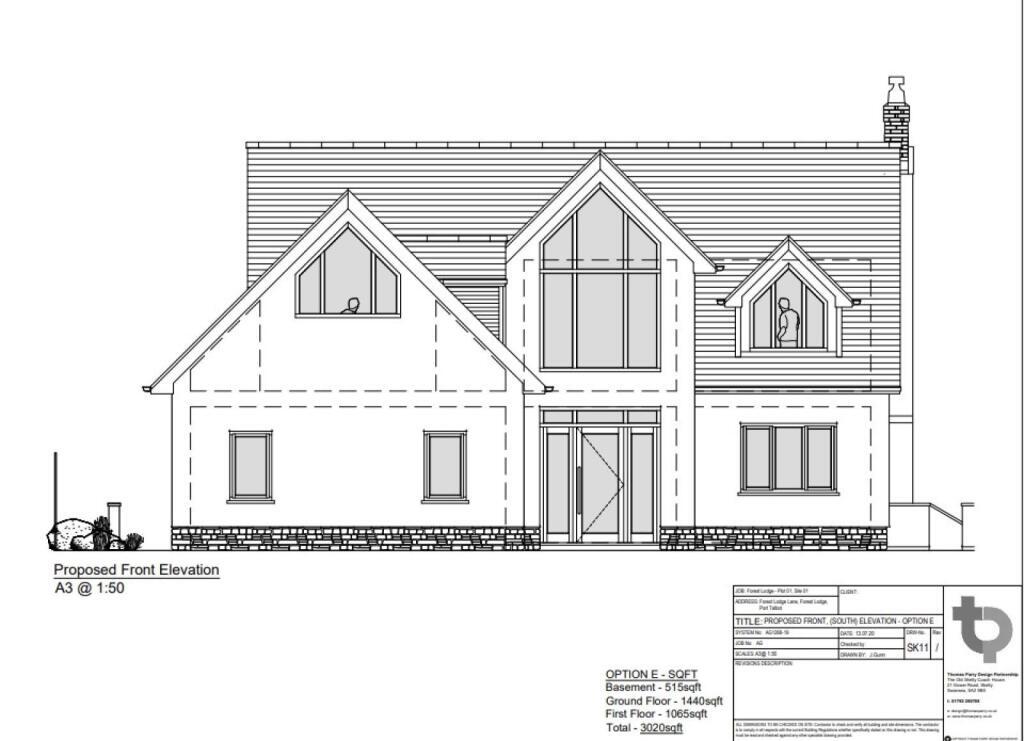
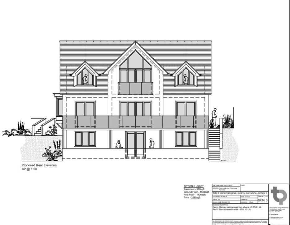
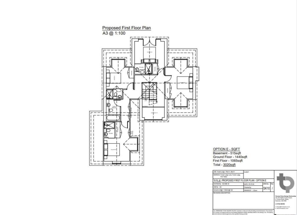
- Planning approved for a four-bedroom detached executive home
- Expansive plot size of 3205 sq ft in a desirable location
- Ample off-road parking
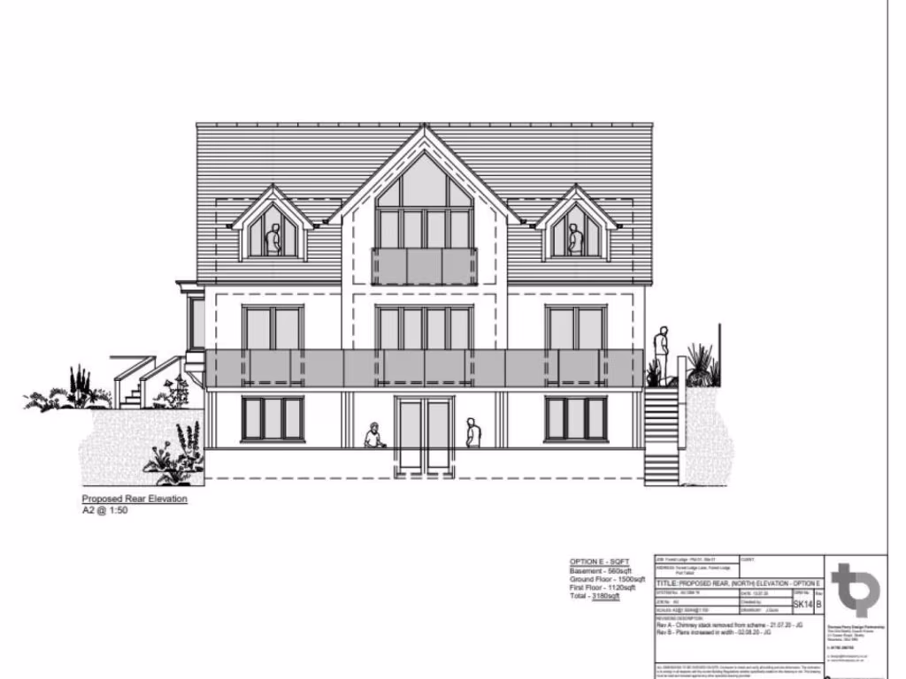
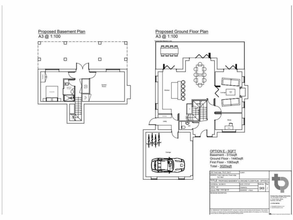
- Three-storey design offering spacious living possibilities
- Unobstructed mountain views from the site
**Summary:**
Seize this exceptional development opportunity located in a sought-after area of Cwmavon, with approved plans to create a contemporary four-bedroom detached home. This expansive plot not only allows for a spacious executive residence but is also positioned within a private estate setting that enhances exclusivity. Enjoy the benefits of ample off-road parking, making it ideal for families and guests alike.
The proposed three-storey structure allows for modern, flexible living spaces, complemented by the potential for striking mountain views. This site is an exciting prospect for developers or first-time homebuyers eager to customize their dream home. The neighborhood, served by a compliant access road, features a variety of high-quality individual homes, creating a charming community atmosphere.
While the area presents a unique blend of rural charm and urban convenience with easy access to the M4 corridor, it's essential to consider the current slow broadband speeds and the noted level of socio-economic deprivation. However, with the right vision, this property holds considerable future potential. Act quickly, as opportunities like this are rare to market in this desirable location!
Plot for sale in Forest Lodge Lane, Port Talbot, West Glamorgan, SA13 2RX, SA13 — £150,000 • 1 bed • 1 bath • 4171 ft²
Plot for sale in Forest Lodge Lane, Port Talbot, West Glamorgan, SA13 2RX, SA13 — £150,000 • 1 bed • 1 bath • 3000 ft²
Land for sale in Garbett Place, Crynant, Neath, SA10 — £100,000 • 1 bed • 1 bath
Land for sale in Convil Road, Blaengarw, Bridgend, CF32 8BN, CF32 — £100,000 • 1 bed • 1 bath
Land for sale in New Road, Ynysmeudwy, Pontardawe, Swansea, City And County of Swansea. SA8 4PJ, SA8 — £80,000 • 1 bed • 1 bath • 2099 ft²
Land for sale in Owen Jones Way, Bryn, Port Talbot, SA13 — £100,000 • 1 bed • 1 bath • 2000 ft²






















































































