**Standout Features:**
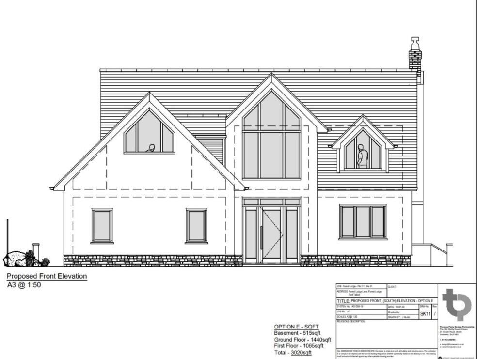
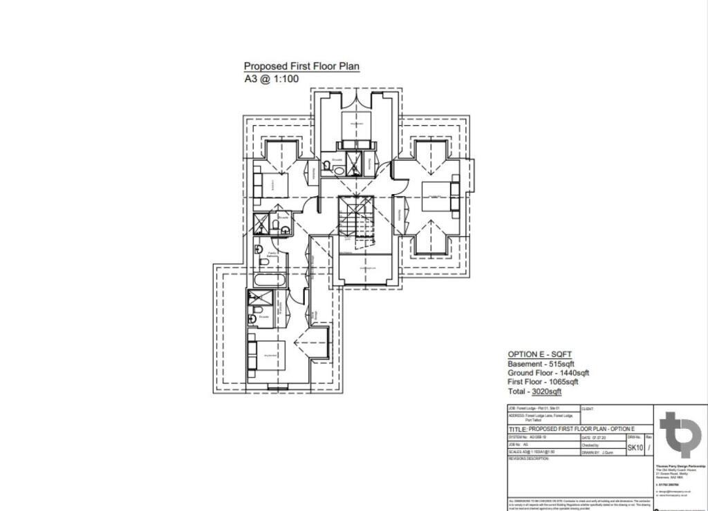
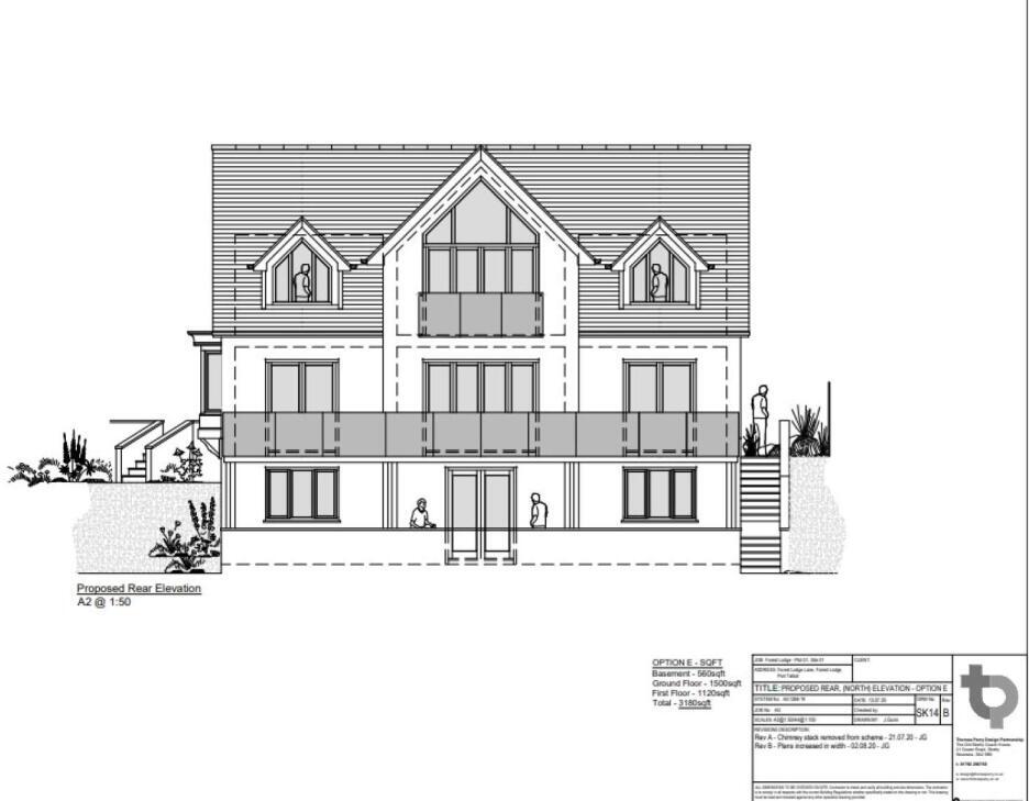
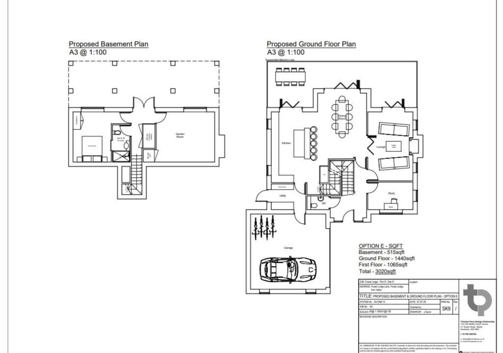
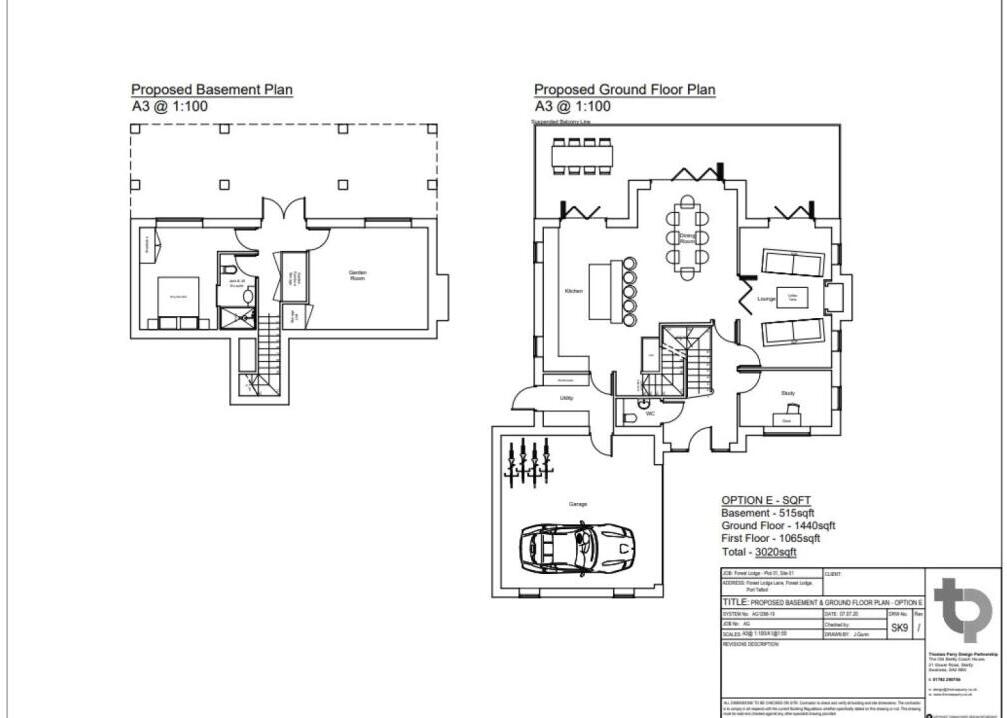
- Planning approved for a four-bedroom detached executive home
- Very large plot with potential for a spacious residence
- Located in a desirable, executive private estate
- Ample off-road parking
- Excellent mobile signal
**Concerns to Consider:**
- Currently a vacant pasture, requiring development from scratch
- Broadband speeds are slow
- Area has received a classification of "very deprived"
**Summary:**
This exceptional development opportunity allows you to create a stunning four-bedroom detached executive home in a sought-after location. With planning permission already secured, this substantial plot of land offers generous space to design an expansive three-storey residence, complete with modern specifications. The property is situated in an established private estate on the southern periphery of Cwmavon, providing picturesque unobstructed mountain views and a serene living environment.
You'll enjoy ample off-road parking, perfect for families and guests, and the site benefits from a compliant access road and the potential for a character-rich home, aligning with the high-quality architecture of the surrounding area. This opportunity is rare in this market, making it an appealing prospect for developers, investors, or families looking to build their dream home. Take advantage of this exclusive chance to invest in the future - the possibilities are endless with your vision on this promising plot, but act quickly, as it won’t last long!
Plot for sale in Forest Lodge Lane, Port Talbot, West Glamorgan, SA13 2RX, SA13 — £150,000 • 1 bed • 1 bath • 4171 ft²
Plot for sale in Forest Lodge Lane, Port Talbot, West Glamorgan, SA13 2RX, SA13 — £150,000 • 1 bed • 1 bath • 3205 ft²
Land for sale in Garbett Place, Crynant, Neath, SA10 — £100,000 • 1 bed • 1 bath
Land for sale in Owen Jones Way, Bryn, Port Talbot, SA13 — £100,000 • 1 bed • 1 bath • 2000 ft²
Land for sale in New Road, Ynysmeudwy, Pontardawe, Swansea, City And County of Swansea. SA8 4PJ, SA8 — £80,000 • 1 bed • 1 bath • 2099 ft²
Plot for sale in 37 Heol Derwen, Cimla, Neath. SA11 3YY, SA11 — £65,000 • 1 bed • 1 bath • 808 ft²






















































































