Large freehold estate with strong redevelopment potential close to local amenities.
Planning approved for 30 apartments (ref 23/03717/FU)
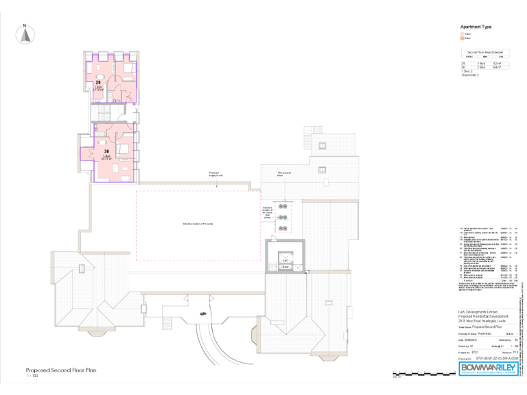
This substantial Georgian villa sits within approximately 2.4 acres in sought-after Far Headingley and has planning approval (ref 23/03717/FU) for conversion and new-build to create 30 apartments. The stone-built main house, mature grounds and generous plot create scope for a high-specification residential scheme with communal gardens and ample parking. The site is freehold and located close to strong local amenities, schools and public transport, supporting marketability to professionals and families.
The consent is subject to a Section 106 agreement yet to be finalised; purchasers should factor this into programme and costs. The marketing material indicates an anticipated average sales value of around £450 per sq ft assuming a strong specification and provision of a lift, but this is indicative rather than guaranteed. Several proposed units include accessibility features and typical services (gas central heating, mains electric and water).
Externally the estate presents classic period character — symmetrical stone façade, high ceilings, tall windows and mature trees — but some aerial views show overgrown areas and parts of the site that will need refurbishment and site clearance. The scheme is described as part conversion and part new build, so the project will require both restoration expertise and new-construction management.
This opportunity is best suited to a developer or investor able to manage a S106 process, coordinate conversion works and deliver a high-spec finish to target professional buyers. Useful local strengths include an affluent catchment, fast broadband and excellent mobile signal; there is no identified flood risk for the site.
Plot for sale in Prime Plot with Planning Permission on Roundhay Park Lane, Shadwell, LS17 — £1,250,000 • 5 bed • 5 bath • 5720 ft²
Residential development for sale in The Carr Manor Estate Stonegate Road Meanwood, Leeds, LS6 4QA, LS6 — POA • 1 bed • 1 bath • 21282 ft²
5 bedroom detached house for sale in Rare renovation opportunity on Alwoodley Lane, Alwoodley, Leeds, LS17 — £1,500,000 • 5 bed • 4 bath • 5125 ft²
Land for sale in Reevy Road West, Bradford, West Yorkshire, BD6 — £600,000 • 1 bed • 1 bath
House for sale in East Parade, Harrogate, HG1 — £700,000 • 1 bed • 1 bath • 4500 ft²
Plot for sale in Wike Ridge Lane, Leeds, West Yorkshire, LS17 — £1,500,000 • 5 bed • 5 bath • 6000 ft²


























































