**Standout Features:**
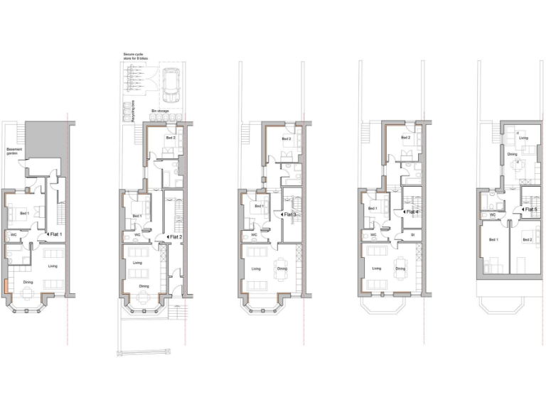
- Planning permission to convert into five apartments (Reference Number: ZC24/03714/FUL)
- Over 4,500 sqft of space
- Prime Harrogate town center location, walking distance to the railway station
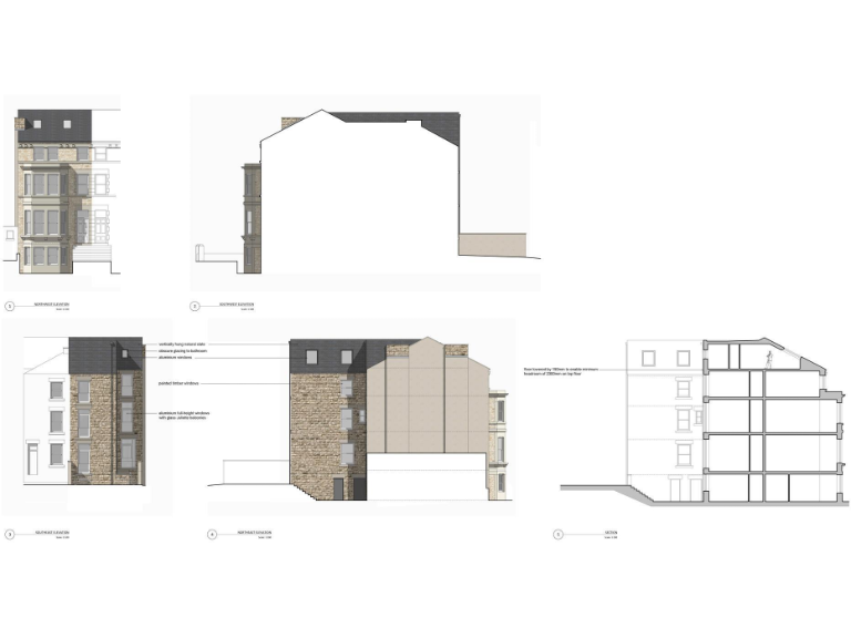
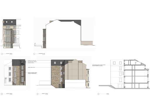
- Historic Victorian architecture with bay windows and high ceilings
- Potential for substantial rental income
**Summary:**
Discover an exceptional development opportunity in the heart of Harrogate! This impressive stone-built end terrace property offers over 4,500 square feet of living space, ideal for conversion into five apartments—four two-bedroom and one one-bedroom—across five floors. With planning permission already secured, including the potential for a roof extension, the value lies not only in its size but also in its promising rental income potential in a cosmopolitan student neighborhood.
Positioned on a tree-lined street, the property boasts classic Victorian architectural features and is within easy walking distance to Harrogate railway station. While the area has a higher crime rate, the affluent local environment enhances appeal for investment. Take advantage of this rare chance to transform a substantial residence into a profitable venture—opportunities like this don’t last long! Secure your future investment today.
Residential development for sale in Park View, Harrogate, HG1 — £650,000 • 7 bed • 1 bath • 2244 ft²
9 bedroom terraced house for sale in Dragon Parade, Harrogate, HG1 — £975,000 • 9 bed • 9 bath • 2519 ft²
Office for sale in Skipton Road, Harrogate, HG1 — £395,000 • 1 bed • 1 bath • 2719 ft²
4 bedroom flat for sale in St. Marys Walk, Harrogate, HG2 — £600,000 • 4 bed • 2 bath • 1327 ft²
House for sale in 94 Kings Road, Harrogate, HG1 5JX, HG1 — £1,100,000 • 1 bed • 1 bath • 5266 ft²
10 bedroom detached house for sale in The Priory, Trinity Road, Harrogate, North Yorkshire, HG2 — £1,500,000 • 10 bed • 1 bath • 9000 ft²






















