Freehold 0.79 acre site with ready-planned apartment scheme and parking.
Resolution to grant planning for 40 one- and two-bed apartments
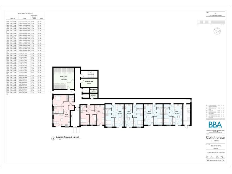
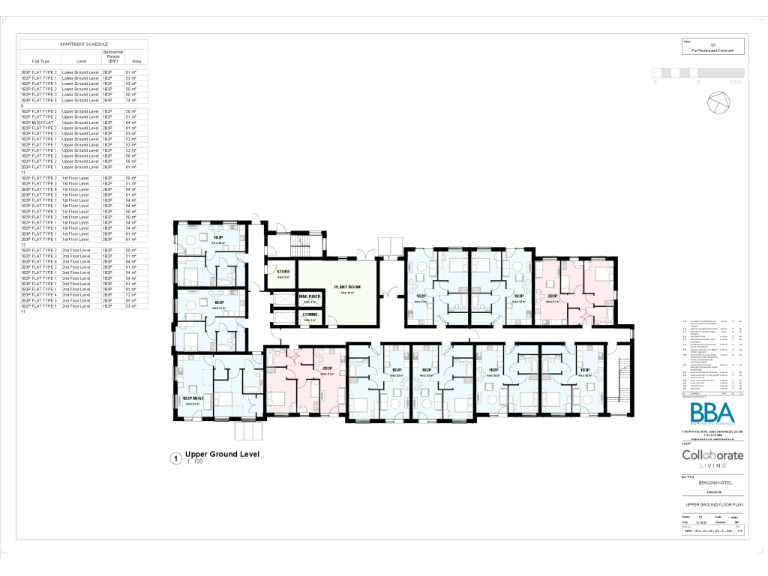
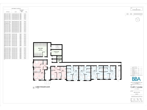
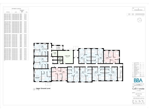
A cleared brownfield parcel of c.0.79 acres (0.32 ha) with a resolution to grant full planning (TP Ref: 24/03914/MAF) for 40 one- and two-bedroom apartments, including parking and bicycle storage. The site benefits from freehold title, no flood risk and excellent mobile and fast broadband connectivity, making it ready for progression to construction once final consents are confirmed.
The topography includes approximately 4m of level change across the site, so the proposed design is a part three, part four-storey block providing level access from different aspects. The location sits approximately 4.2 km southwest of Bradford city centre and is bordered by existing housing, community facilities and Buttershaw Business & Enterprise College — convenient for commuter links and local services.
Material considerations include a very deprived local area and a recorded high crime level, which may affect rental values and specification requirements. Two nearby secondary schools have recent Inadequate Ofsted ratings which may influence market demand for family tenants. There is also some build complexity from the site's slope and the scheme should be progressed with a contractor experienced in sloping brownfield sites.
This opportunity is aimed at developers or investors seeking a ready-planned apartment scheme in suburban Bradford. The freehold is offered for sale via private treaty, with vendors reserving the right to move to informal tender; purchasers should confirm planning status and carry out their own due diligence before offer submission.
Land for sale in Land West of 12 To 16, Far Hills, Bradford, Bradford, BD6 3SL, BD6 — £500,000 • 1 bed • 1 bath
Land for sale in Land At Raikes Avenue, , Bradford, BD4 — £69,000 • 1 bed • 1 bath
Land for sale in Car Park North Of Pine Street, Bradford, West Yorkshire, BD1 4EY, BD1 — £60,000 • 1 bed • 1 bath • 8579 ft²
Land for sale in Harrogate Road, Eccleshill,, BD2 — £69,950 • 1 bed • 1 bath
Land for sale in Former 22, Tennis Avenue, Bradford, Bradford, BD4 9RA, BD4 — £300,000 • 3 bed • 1 bath
Property for sale in Post Office Road, Bradford, West Yorkshire, BD2 — £170,000 • 1 bed • 1 bath


























