Transform a prime south-facing plot into a bespoke family showpiece near top schools.
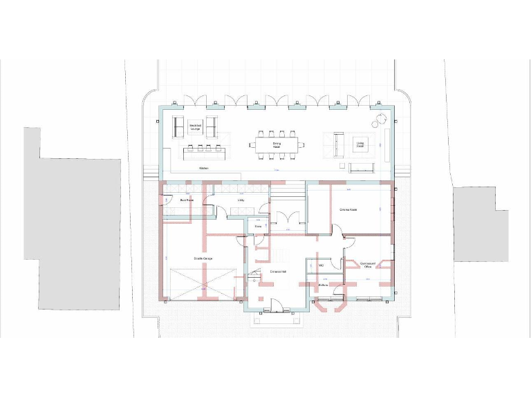
- Full planning consent approved (Ref: 25/04107/FU) for major extension and remodelling
- Proposed footprint increases from 3,036sqft to approx. 5,125sqft
- South-facing, very large plot with mature tree screening
- Five bedrooms, four bathrooms, three reception rooms, double garage
- Chain free and ready-to-go project with architect-led design
- Works required to implement planning; budget and contractor needed
- No flood risk; very affluent area with low crime
- Council tax quite expensive; mobile signal only average
Set on a highly sought-after, south-facing plot on Alwoodley Lane, this detached house offers a rare canvas for a substantial family home. Full planning consent (Ref: 25/04107/FU) is in place to expand the current 3,036 sqft footprint to approximately 5,125 sqft with a striking, architect-led extension and remodelling. The approved scheme delivers abundant natural light, high ceilings, dormers and a large open-plan living arrangement suited to modern family life.
The location is a primary draw for families: premium local schools (including The Grammar School at Leeds), green spaces and leisure facilities are nearby, while Leeds city centre and commuter links remain easily accessible. The plot is maturely screened and south-facing, ideal for garden living and generous indoor–outdoor flow from the proposed rear glazing.
This is a chain-free, ready-to-go project with substantial scope to create a luxury executive home. The current house includes five bedrooms, four bathrooms, three reception rooms and an integral double garage, providing useful accommodation during works or as part of a phased renovation. Buyers should note the price assumes implementation of the consent — physical works are required to realise the approved design and associated costs should be factored in.
Practical points: the site has no flooding risk and sits in a very affluent area with low crime. Services are connected (mains gas, water, electricity). Mobile signal is average and council tax is described as quite expensive. This opportunity suits families seeking a long-term, high-quality remodel in one of North Leeds’ premier locations.
Plot for sale in Prime Plot with Planning Permission on Roundhay Park Lane, Shadwell, LS17 — £1,250,000 • 5 bed • 5 bath • 5720 ft²
4 bedroom detached house for sale in Wigton Lane, Leeds, LS17 — £1,250,000 • 4 bed • 2 bath • 2400 ft²
4 bedroom detached house for sale in Belvedere Court, Alwoodley, LS17 — £725,000 • 4 bed • 3 bath • 1613 ft²
4 bedroom detached house for sale in Ash Hill Gardens, Shadwell, LS17 — £575,000 • 4 bed • 2 bath • 1456 ft²
4 bedroom detached house for sale in Alwoodley Lane, Alwoodley, LS17 — £950,000 • 4 bed • 2 bath • 2192 ft²
5 bedroom detached house for sale in The View, Alwoodley, Leeds, West Yorkshire, LS17 — £895,000 • 5 bed • 2 bath • 2224 ft²










































