Design and build a bespoke two‑storey home near Soham town centre.
Freehold self-build plots, sizes c.207–511 m² suitable for 80–120 m² homes
Utilities to each plot: foul/surface drainage, water, telecoms, electricity point
Buyer must secure detailed planning; draft must be approved by vendor
Construction to be completed within 12 months of start on site
Permeable block driveways; management company membership on completion
Approximate annual service charge £230; purchaser responsible for CIL relief
Purchaser is principal contractor; liable for construction damages and obligations
Close to schools, shops, rail station and A142/A10/A14 road links
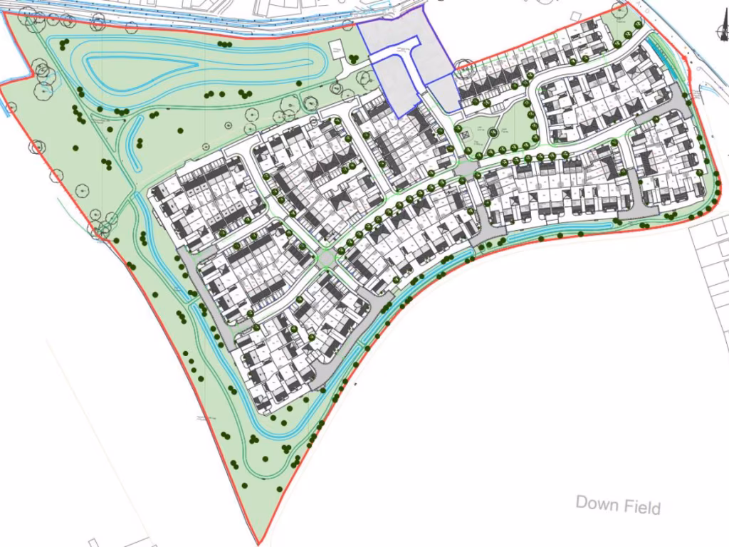
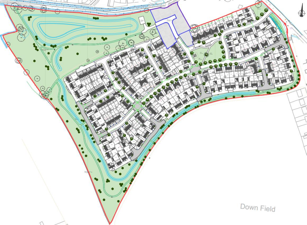
This is a small self-build cluster of eleven freehold plots on the northern edge of a new development off Fordham Road, Soham. Plot sizes range from about 207–511 m² with indicative two‑storey house footprints of roughly 80–120 m² (864–1,217 ft²). Each plot is serviced with foul and surface water drainage, potable water, telecoms and an electricity point of connection; driveways will use permeable paving.
The location is well connected for daily life: Soham town centre facilities, primary and secondary schools (including outstanding Soham Village College), shops and medical services are nearby. Road links to the A142/A10/A14 and regular buses to Cambridge/Newmarket/Ely make commuting viable, and Soham rail station is within walking/cycling distance.
Important responsibilities and limits are set out clearly. The principle of development is secured under the site’s Section 106/Outline Planning Permission, but each purchaser must obtain detailed planning permission for their own dwelling. A draft application must be submitted to the vendor for approval and then to the local authority within 14 working days. Construction must be completed within 12 months of start on site. Purchasers become members of the management company on completion; an anticipated annual service charge is approximately £230.
Practical risks to note: purchasers are their own principal contractors and must comply with a construction and environmental management plan; any damage to communal roads/services must be repaired by the purchaser. Buyers should also apply for self-build CIL relief and be aware of the three‑year principal‑residence requirement to retain relief.
House for sale in Fordham Road, Ely, Soham, CB7 — £175,000 • 1 bed • 1 bath
House for sale in Fordham Road, Ely, Soham, CB7 — £170,000 • 1 bed • 1 bath
House for sale in Fordham Road, Ely, Soham, CB7 — £150,000 • 1 bed • 1 bath
Plot for sale in Fordham Road, Ely, Soham, CB7 — £150,000 • 1 bed • 1 bath
House for sale in Fordham Road, Ely, Soham, CB7 — £170,000 • 1 bed • 1 bath
House for sale in Fordham Road, Ely, Soham, CB7 — £160,000 • 1 bed • 1 bath














