CO10 5EP - Plot for sale in Replacement Dwelling at Moat Farm, Parliam…

View on Property Piper

Plot for sale in Replacement Dwelling at Moat Farm, Parliament Heath, Groton, Suffolk, CO10

Summary - MOAT FARM BARN PARLIAMENT HEATH GROTON SUDBURY CO10 5EP

4 bed 3 bath Plot

Substantial rural plot with permission for a 2,291 sq ft family house and approx. 2.85 acres.
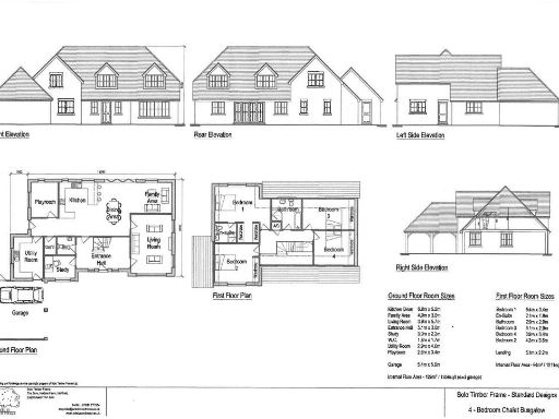
Full planning permission for two-storey 2,291 sq ft replacement dwelling (DC/24/04501)
A rare countryside redevelopment opportunity at Moat Farm with full planning permission (ref DC/24/04501) to demolish the existing steel-clad barn and build a two-storey, 2,291 sq ft detached house set within approximately 2.85 acres. The approved layout provides open-plan living, a separate snug/utility, three double bedrooms with two ensuites, a further bedroom/study and a galleried landing — a flexible family home designed to take advantage of long, unobstructed rural views.

The sale includes 0.37 acres of approved residential curtilage and an additional 2.48 acres retained as agricultural land. That extra acreage offers scope for amenity garden, paddock or other countryside uses but would require a separate planning application to extend residential curtilage. The site is well screened by hedgerows and mature trees, sits in Flood Zone 1, and benefits from low local crime and an affluent, prospering-countryside setting.

Practical considerations are straightforward but material. There are 18 planning conditions to discharge and some services (mains water and electricity) will need connecting; foul drainage is expected via a biological sewage treatment plant. A CIL charge may apply unless the buyer qualifies for the self-build exemption (occupation requirement applies). Access is via a shared drive with a required contribution to future maintenance under an equal-rights arrangement.

This plot will suit a buyer seeking a substantial new-build family home in a secluded rural location, a self-builder able to manage planning obligations, or an investor looking to deliver a high-spec replacement dwelling. The permitted scheme reduces planning risk, but buyers should budget for condition discharge, service connections, CIL considerations and any further permissions needed to bring additional agricultural land into residential use.

Property Details

Brochure Descriptions

Image Descriptions

Floorplan Description

Rooms

Textual Property Features

Target Audience

AI Tags

Detected Visual Features

Nearby Schools

Nearest Bars And Restaurants

,,,,}

Nearest General Shops

,,}

Nearest Grocery shops

,,}

Nearest Supermarkets

,,}

Nearest Religious buildings

,,}

Nearest Medical buildings

,,,}

Nearest Leisure Facilities

,,,,}

Nearest Tourist attractions

,,}

Nearest Train stations

,,,,}

Nearest Bus stations and stops

,,,,}

Nearest Hotels

,,}

Tags

Local Market Stats

Similar Properties

Meta

High Res Images

Compatible Images

Low res Images

Thumbnails

Raw Images

High Res Floorplan Images

Compatible Floorplan Images

Low res Floorplan Images

FloorplanImages Thumbnail

Raw Floorplan Images