IP7 6PN - Land for sale in Elmsett, Ipswich, Suffolk, IP7

View on Property Piper

Land for sale in Elmsett, Ipswich, Suffolk, IP7

Summary - 9, MANOR ROAD, IPSWICH, ELMSETT IP7 6PN

4 bed 1 bath Land

Approved dwelling and barn conversion on 1.35 acres — countryside redevelopment potential.
Approximately 1.35 acres plot with expansive countryside views
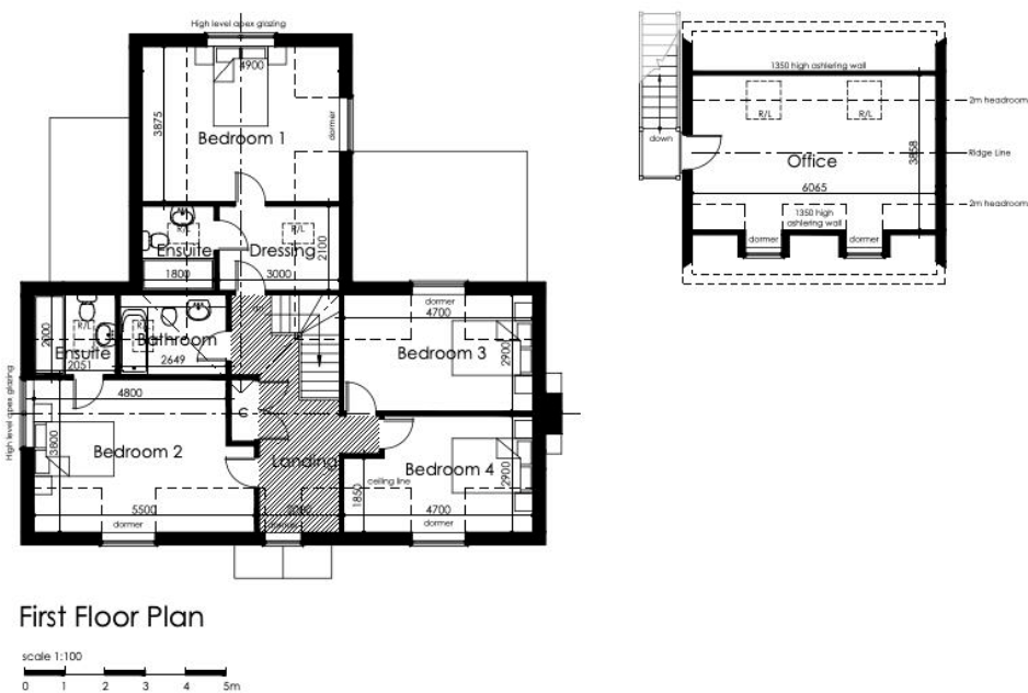
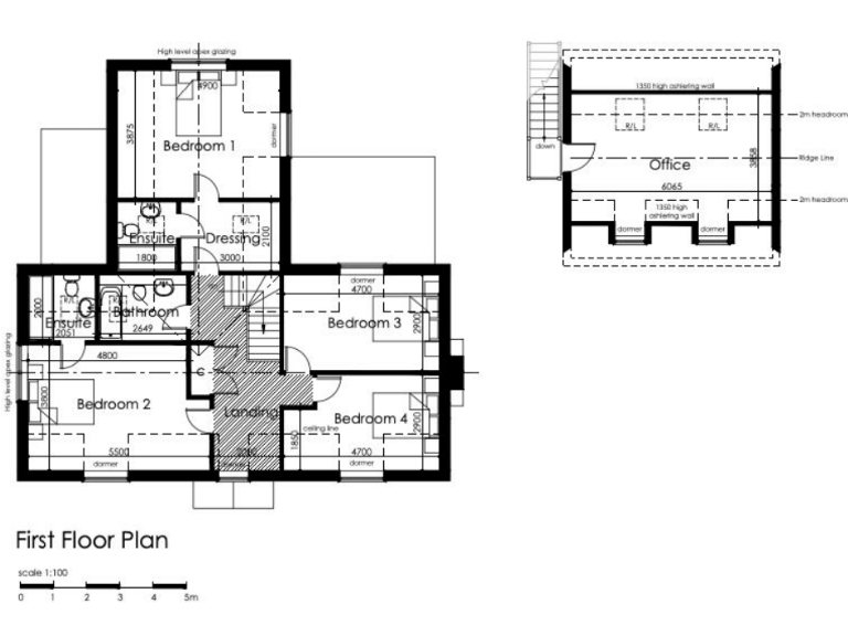
Replacement four-bedroom dwelling approved (DC/23/04571)
Barn prior approval for four-bedroom conversion (DC/24/00466)
CIL for replacement dwelling ~£46,457 for non-self-build purchasers
Majority in Flood Zone 1; small northeast area in Flood Zone 3
Mains water and electricity available; services untested on site
Existing septic tank non-compliant and will require replacement
Separate driveway accesses proposed for barn and new dwelling
Set on approximately 1.35 acres on the edge of Elmsett, this site offers two distinct redevelopment opportunities: an approved replacement four-bedroom dwelling and Class Q prior approval to convert the existing barn into a four-bedroom home (two en‑suites). The plot’s size and rural position deliver strong scope for a high-quality country residence or a pair of complementary homes, with existing driveway access arranged for separate entrances onto Manor Road.

Practical considerations are clear and documented: mains water and electricity reach the site, but the existing septic tank is understood to be non-compliant and will require replacement. The majority of the site lies in Flood Zone 1, though a northeast boundary alongside a tributary falls into Flood Zone 3 and will need careful consideration in any site layout or landscaping plans.

Financially, prior approvals reduce some planning risk, but non-self-build purchasers should allow for a Community Infrastructure Levy (CIL) on the replacement dwelling of approximately £46,457 (circa £115/sqm); no CIL is payable for the barn conversion. Buyers should verify current CIL rates with Babergh District Council and review the planning references DC/23/04571 and DC/24/00466 for full conditions and plans.

This site will suit developers, builders or owner‑occupiers seeking a substantial rural plot with approved schemes in place. It presents countryside living, agricultural character and development upside, balanced by practical costs (CIL, septic replacement) and a small area of higher flood risk that requires attention during final design.

Property Details

Brochure Descriptions

Image Descriptions

Floorplan Description

Rooms

Textual Property Features

Target Audience

AI Tags

Detected Visual Features

Nearby Schools

Nearest Bars And Restaurants

,,,,}

Nearest General Shops

,,}

Nearest Grocery shops

,,}

Nearest Supermarkets

,,}

Nearest Religious buildings

,,}

Nearest Medical buildings

,,,}

Nearest Leisure Facilities

,,,,}

Nearest Tourist attractions

,,}

Nearest Train stations

,,,,}

Nearest Bus stations and stops

,,,,}

Nearest Hotels

,,}

Tags

Local Market Stats

Similar Properties

Meta

High Res Images

Compatible Images

Low res Images

Thumbnails

Raw Images

High Res Floorplan Images

Compatible Floorplan Images

Low res Floorplan Images

FloorplanImages Thumbnail

Raw Floorplan Images