Ready‑permitted, rural 0.4 acre plot for a substantial four‑bed home.
Full planning granted for a 4‑bed detached house (DC/22/03428)
Plot c.0.4 acres with far‑reaching countryside views
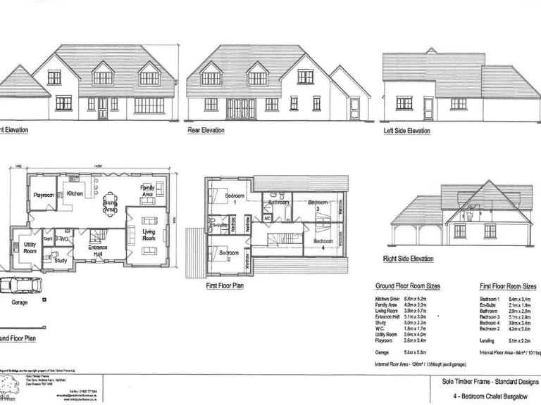
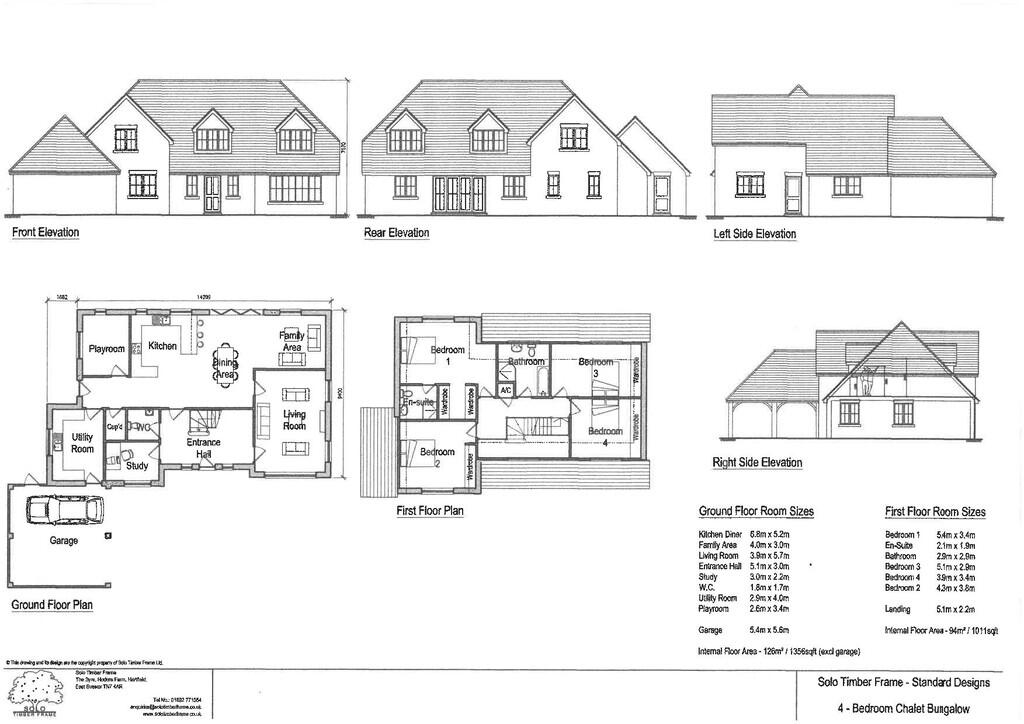
House plans ~2,300 sq ft; modern timber construction proposed
Commencement signed off — no start‑by deadline
Buyer must implement private drainage and utility connections
Sale restricted to a single dwelling; site cannot be subdivided
Detached double garage to be located adjacent to the house
Freehold tenure; low crime, excellent mobile and fast broadband
This rare building plot sits on about 0.4 acres on the outskirts of Creeting St Mary, with full planning permission (DC/22/03428) for a modern four‑bedroom detached house of just over 2,300 sq ft and a detached double garage. The elevated position delivers far‑reaching countryside views and a spacious garden setting ideal for family living or a high‑value new build sale.
Commencement of building work has been signed off, so there is no timescale deadline to start construction. Services will need attention: the buyer must implement private drainage and connect necessary utilities. The approved drawings show modern timber construction; the garage will now sit adjacent to the house rather than as originally illustrated.
Practical advantages include freehold tenure, low local crime, excellent mobile signal and fast broadband, plus good road and rail links from nearby towns. Note the sale includes a restriction preventing the site from being divided into more than one dwelling — suited to a single large family home or a one‑off development for resale.
This plot will suit buyers who want a ready‑permitted new build in a prosperous rural setting and are prepared to manage on‑site works and services. It represents a lower‑cost entry to build a substantial new home in a popular Suffolk village, but requires a buyer comfortable with arranging drainage, construction and final utilities connections.
Land for sale in Creeting Hills, Creeting St. Mary, IP6 — £260,000 • 4 bed • 2 bath • 2500 ft²
Plot for sale in Church Road, Crowfield, Ipswich, IP6 — £225,000 • 4 bed • 3 bath
Plot for sale in Church Road, Crowfield, Ipswich, IP6 — £325,000 • 4 bed • 3 bath • 2315 ft²
Parking for sale in Church Road, Crowfield, Ipswich, Suffolk, IP6 — £325,000 • 4 bed • 3 bath • 2315 ft²
Plot for sale in Church Road, Crowfield, Ipswich, IP6 — £225,000 • 4 bed • 3 bath • 2156 ft²
Plot for sale in Bedfield, Nr Framlingham, Suffolk, IP13 — £150,000 • 1 bed • 1 bath • 1270 ft²














