Rare two‑acre building plot with full planning consent and panoramic Gipping Valley views..
Full planning permission for ~2,500 sq ft single‑storey barn conversion
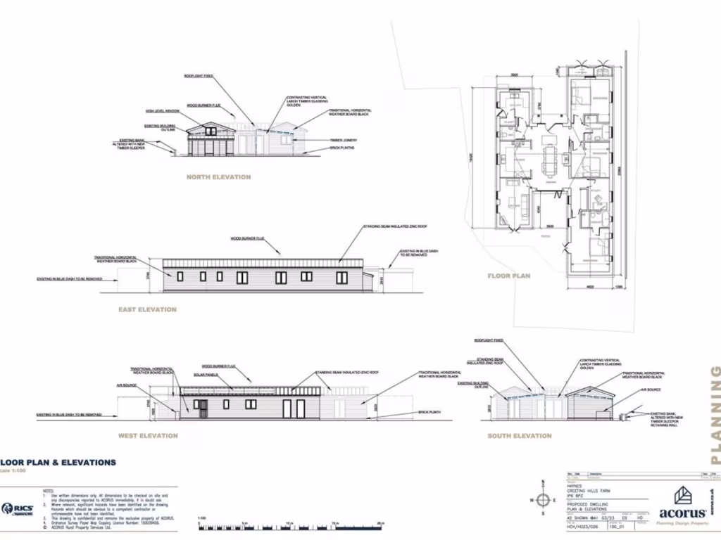
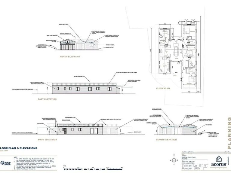
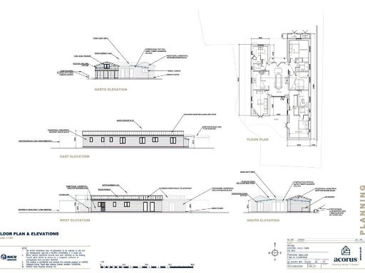
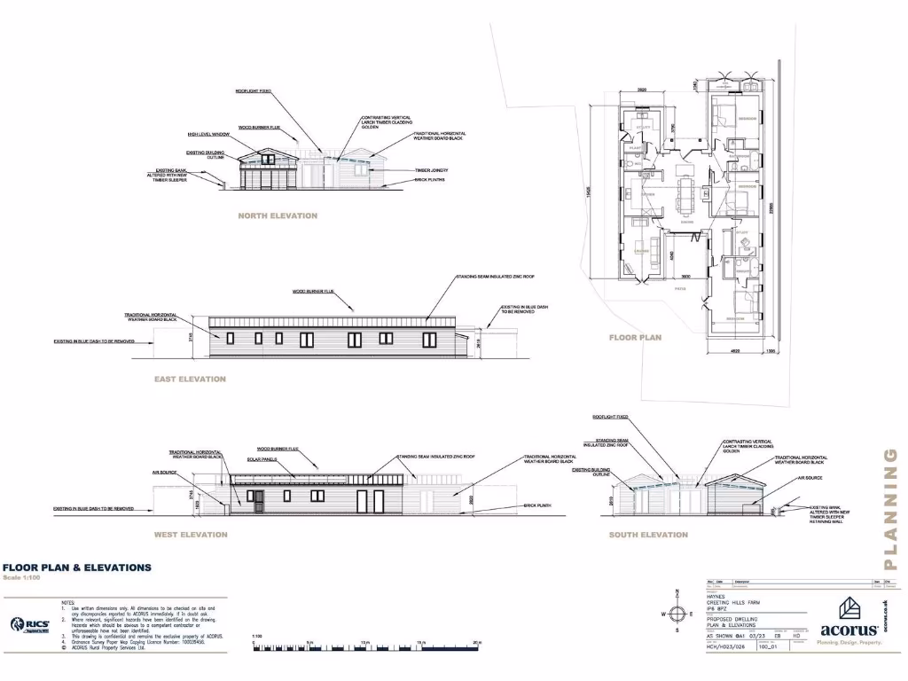
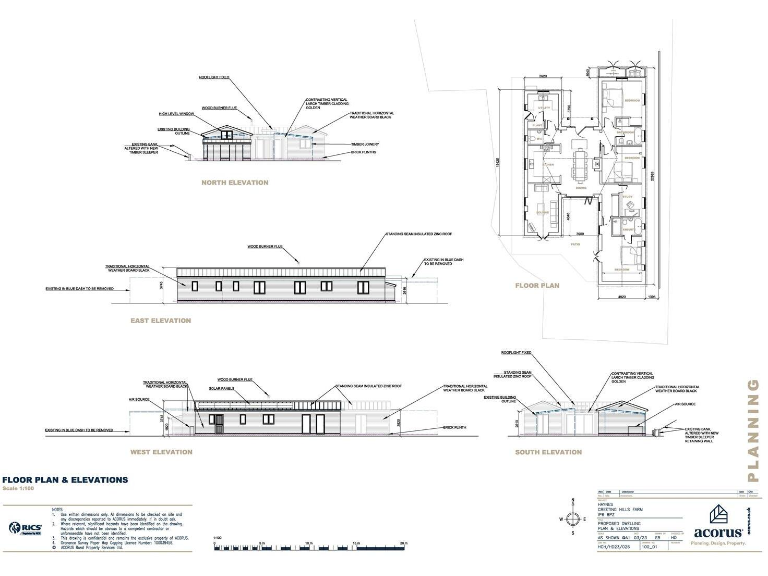
A rare two-acre elevated building plot in Creeting Hills offering full planning permission for an approximate 2,500 sq ft single‑storey barn-style home. The site sits above the Gipping Valley and delivers panoramic rural views, mature boundary screening and immediate equestrian utility with a ménage, hay barn and machinery barn included in the plot.
Full planning permission was granted by Mid Suffolk District Council on 26 July 2023 to convert existing equestrian buildings into a single‑storey residence. Works must commence by 6 July 2026; detailed plans are available on the council planning portal. The plot is freehold and there is understood to be no CIL liability.
Practical considerations: services are not confirmed (electric available; private drainage/water to be confirmed), broadband speeds are slow and the static home pictured will be removed prior to completion. The site suits self‑builders, equestrian purchasers or investors seeking a scenic conversion project with clear planning consent and substantial usable land.
A site inspection is recommended to confirm exact boundaries, service connections, building condition and final acreage. The setting provides strong privacy, good road access to Needham Market and Stowmarket, and a countryside lifestyle within commuting distance of Ipswich and mainline rail connections.
Land for sale in Creeting St. Mary, Ipswich, Suffolk, IP6 — £195,000 • 1 bed • 1 bath • 2300 ft²
Plot for sale in Church Road, Crowfield, Ipswich, IP6 — £225,000 • 4 bed • 3 bath
Plot for sale in Church Road, Crowfield, Ipswich, IP6 — £325,000 • 4 bed • 3 bath • 2315 ft²
Plot for sale in Church Road, Crowfield, Ipswich, IP6 — £225,000 • 4 bed • 3 bath • 2156 ft²
Land for sale in Hall Road, Burgh, Woodbridge, IP13 — £275,000 • 2 bed • 1 bath
Plot for sale in Wetheringsett, Suffolk, IP14 — £350,000 • 1 bed • 1 bath • 3562 ft²






























