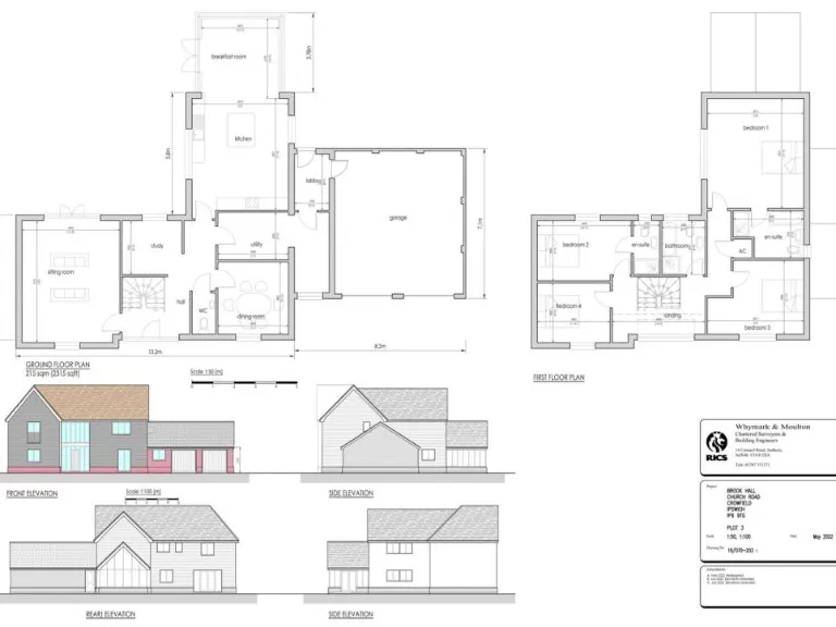
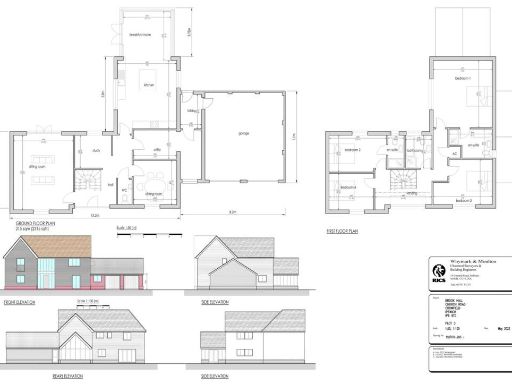
Create a spacious four-bedroom family home in peaceful Suffolk countryside.
Full planning permission granted (Ref DC/24/00759)
A rare self-build plot with full planning permission to construct a detached four-bedroom home of approximately 2,315 sq ft. The approved layout includes sitting room, separate study, formal dining room, kitchen/breakfast room, utility, two en-suites and family bathroom — well suited to modern family life.
The site is being delivered cleared and ready for foundation works; UK Power Networks will upgrade the transformer and provide electricity meters to each plot, and Anglian Water will commission supply connections, both at no additional cost. The plot is the largest of three homes within an exclusive rural development and benefits from a double garage, ample parking and a generous private garden.
Set in peaceful countryside near established farming communities, the location offers low crime, excellent mobile signal and fast broadband — useful for remote working. Buyers should note the plot forms part of a small shared development of three dwellings and the advertised price covers the plot and planning permission only. Further construction costs, any chosen builder fees and the unknown tenure must be confirmed by the purchaser.
Plot for sale in Church Road, Crowfield, Ipswich, IP6 — £225,000 • 4 bed • 3 bath
Parking for sale in Church Road, Crowfield, Ipswich, Suffolk, IP6 — £325,000 • 4 bed • 3 bath • 2315 ft²
Plot for sale in Church Road, Crowfield, Ipswich, IP6 — £225,000 • 4 bed • 3 bath • 2156 ft²
Land for sale in Creeting Hills, Creeting St. Mary, IP6 — £260,000 • 4 bed • 2 bath • 2500 ft²
Land for sale in Creeting St. Mary, Ipswich, Suffolk, IP6 — £195,000 • 1 bed • 1 bath • 2300 ft²
Plot for sale in Bedfield, Nr Framlingham, Suffolk, IP13 — £150,000 • 1 bed • 1 bath • 1270 ft²






























