Freehold plot with planning consent for four-bedroom detached dwelling
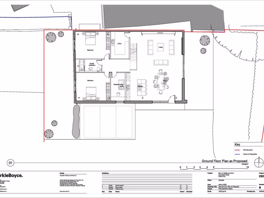
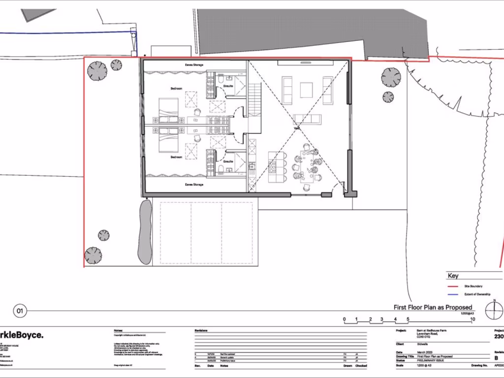
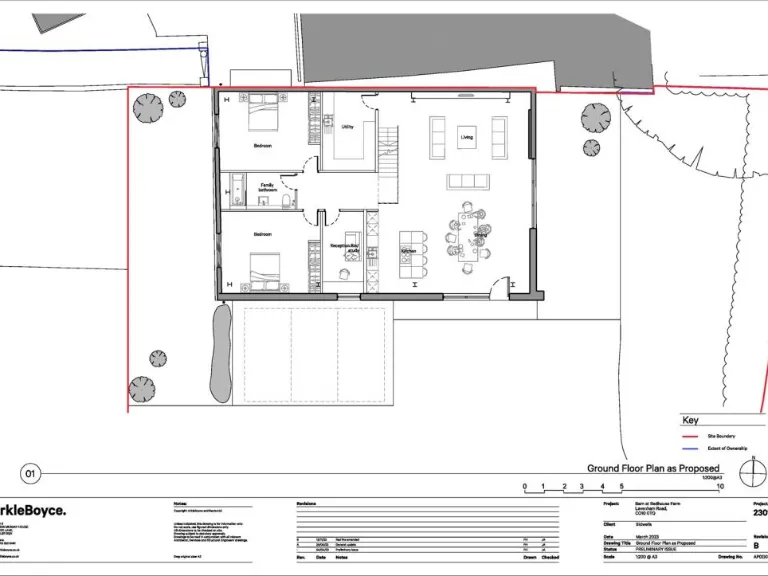
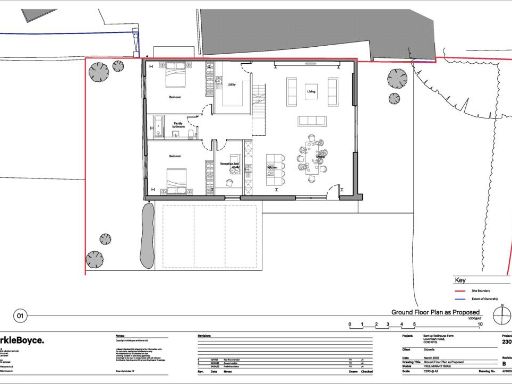
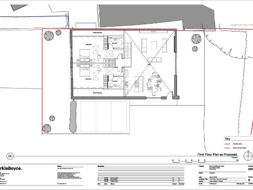
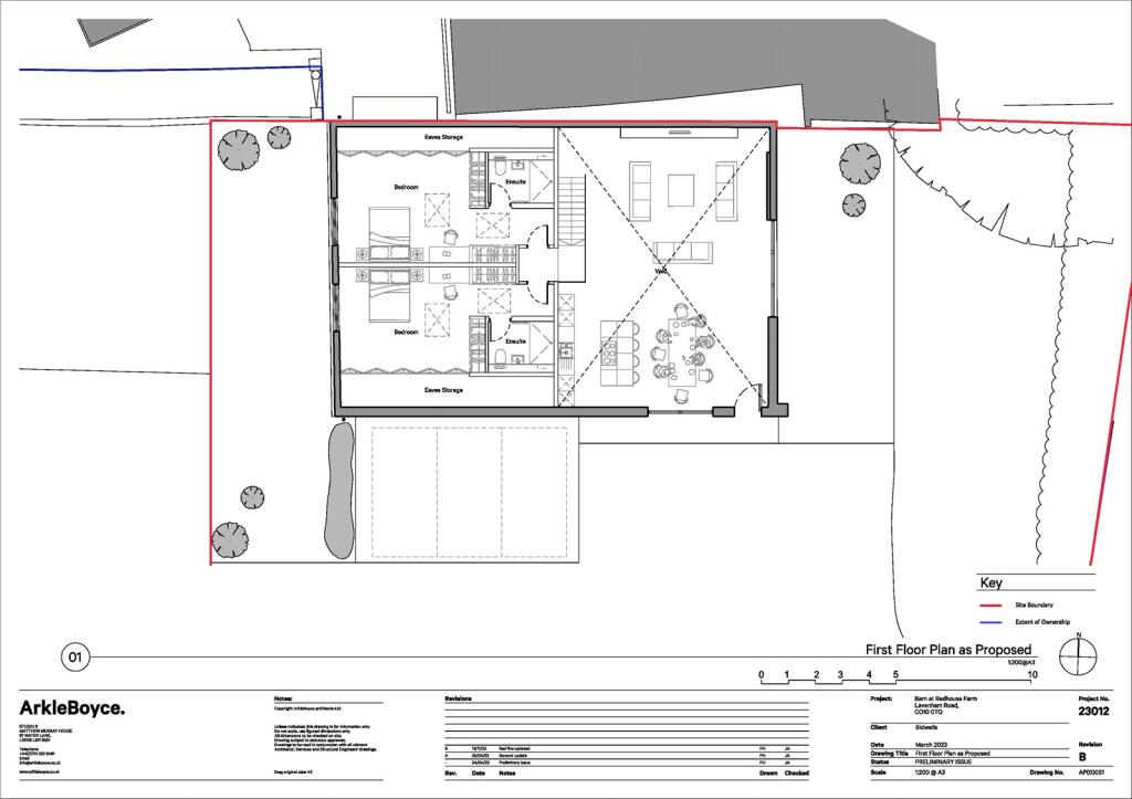
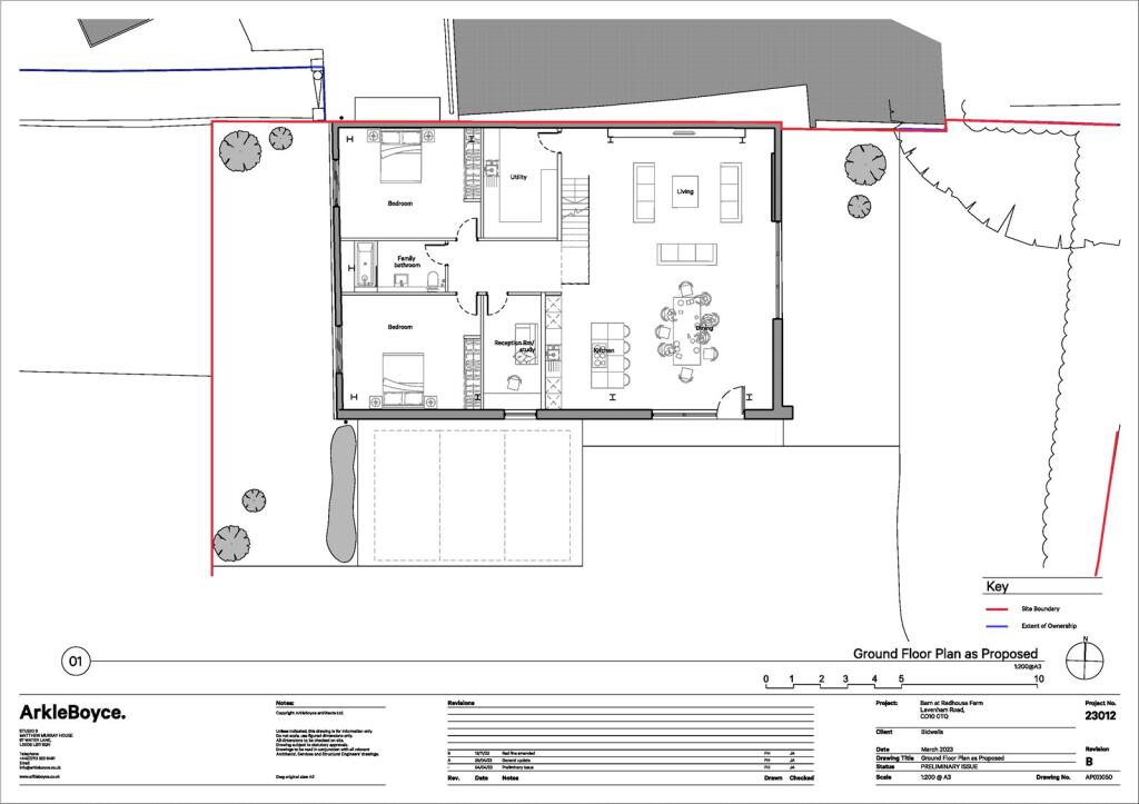
An uncommon countryside opportunity: a large freehold plot in Little Waldingfield with planning consent to convert an existing red-brick barn into a detached four-bedroom home. The consented scheme creates generous living wings — a vaulted kitchen/dining/living space, utility and study — and two bedrooms with en suites upstairs plus two ground-floor bedrooms, offering flexible family accommodation. The existing building extends to about 2,700 sq ft and sits on a substantial, secluded plot with far-reaching farmland views and a long driveway.
This is well suited to buyers seeking rural privacy and scope to complete a high-quality barn conversion. The site benefits from low crime, excellent mobile signal and fast broadband — practical positives for modern country living. Local schools rated Good are within reach, and the surrounding area is characterised by established farming communities and open countryside.
Important considerations: the sale is of a plot and agricultural building with planning consent rather than a finished home. The current structure has a corrugated fibre-cement roof and agricultural construction; conversion works and full fit-out will be required to realise the consented dwelling. Buyers should allow for build costs, statutory fees and a practical programme to meet the consented specification. A formal offers deadline is set for Friday 22 August at 12 noon.
Overall, the plot offers genuine scope for a spacious, contemporary rural home in an attractive Suffolk setting. It will appeal to families and purchasers wanting a countryside lifestyle who are ready to manage a conversion project to completion.



















































