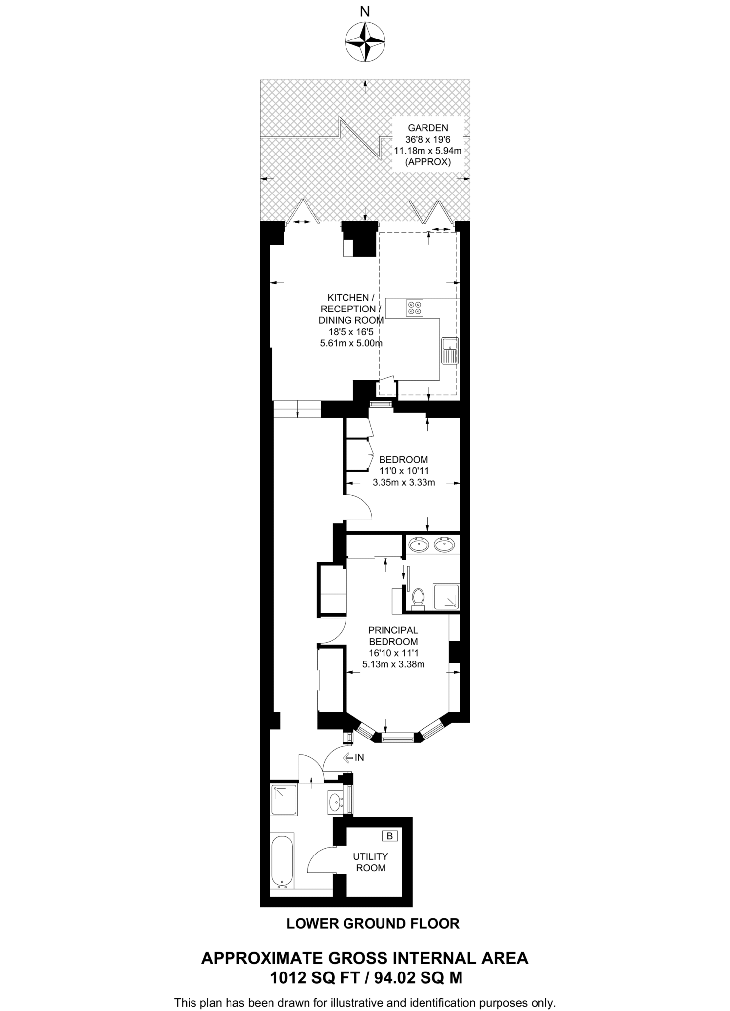
Two-bedroom lower-ground home with ensuite and outdoor space near Westbourne Grove.
- Lower-ground two-bed flat with private entrance
- Bright open-plan reception with dining and skylights
- Main bedroom with ensuite shower room
- Private garden with direct access
- Underfloor heating and integrated kitchen appliances
- Leasehold: 91 years remaining
- Service charge £500; ground rent £200 per year
- Solid brick walls assumed uninsulated, potential energy upgrade
Set on the lower ground floor of a handsome Victorian conversion, this two-bedroom flat offers a private entrance, a bright open-plan reception and direct access to a private garden — rare for W11. The main bedroom includes an ensuite shower room and a second well-proportioned bedroom sits alongside a separate family bathroom. The contemporary kitchen has integrated appliances and the living space benefits from natural light and skylights.
Practical comforts include double glazing (fitted post-2002), mains gas boiler with underfloor heating, fast broadband and excellent mobile signal. The flat's solid brick construction and period build give character, though the walls are assumed uninsulated, so there may be opportunity to improve thermal performance and running costs.
This is a well-presented central-Notting Hill home suited to buyers who want immediate move-in condition with potential to enhance energy efficiency. Note the property is leasehold with 91 years remaining, a service charge of £500 and ground rent of £200 per year. Lower-ground position means some rooms sit below street level; the private garden mitigates that with useful outdoor space.
Location is a strong selling point: moments from Westbourne Grove’s shops, cafés and restaurants, and close to Ladbroke Grove station for Hammersmith & City Line connections. Local schools include a mix of highly rated and improving options, making the flat appealing to buyers seeking central access to amenities and schools in Notting Hill.
2 bedroom flat for sale in Tavistock Road, Notting Hill, W11 — £1,095,000 • 2 bed • 2 bath • 1040 ft²
2 bedroom flat for sale in Tavistock Road, Notting Hill, W11 — £1,095,000 • 2 bed • 2 bath • 947 ft²
2 bedroom flat for sale in Westbourne Grove, Notting Hill, W11 — £750,000 • 2 bed • 1 bath • 616 ft²
2 bedroom apartment for sale in Tavistock Road, Notting Hill, London, W11 — £1,095,000 • 2 bed • 2 bath • 1012 ft²
2 bedroom flat for sale in Ledbury Road, Artesian Village, London, W11 — £1,350,000 • 2 bed • 2 bath • 764 ft²
2 bedroom flat for sale in Tavistock Road, Notting Hill, London, W11 — £525,000 • 2 bed • 1 bath • 577 ft²










































































































































