Period ground-floor flat with planning-ready extension potential near major transport links.
Share of freehold; no onward chain
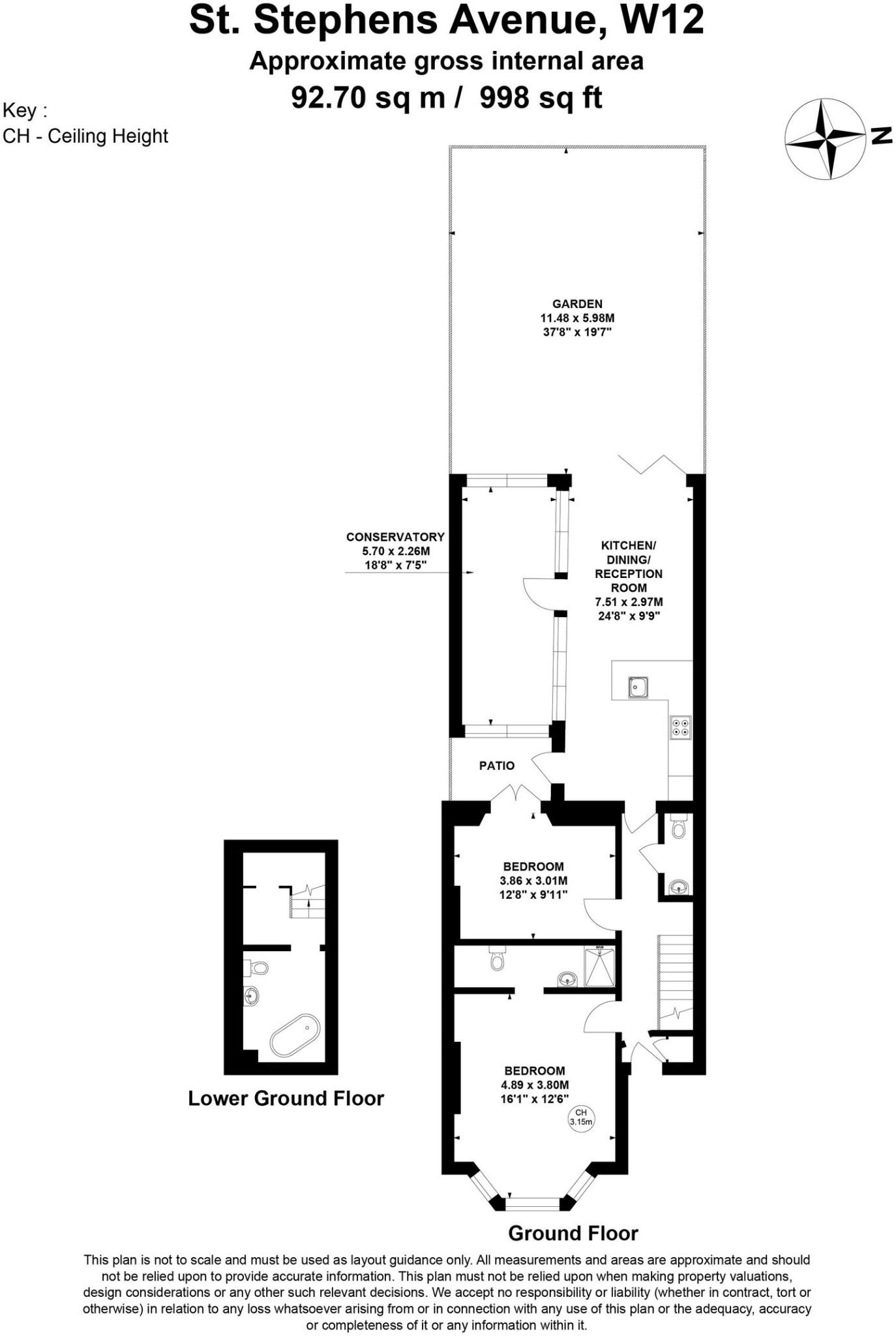
A rare ground-floor garden flat with clear scope for substantial uplift. Currently arranged as two double bedrooms, separate reception and kitchen, and a 37 ft private garden, the property sits within a period mid-terrace on a desirable tree-lined street. The share of freehold and no onward chain make this a straightforward opportunity for a buyer prepared to renovate and extend.
Architects’ plans and CGI visuals are available showing a full rear extension and an open-plan kitchen/living conversion creating c.1,000 sq ft of accommodation. The existing internal area is approximately 585 sq ft; the finished scheme would combine Victorian proportions with contemporary glazing and landscaped garden access — strong appeal for future resale or lettings in this location.
The flat is sold at unconditional auction with a Buyer's Premium (3.75% inc. VAT, min £6,600) and a 5% non-refundable deposit payable on exchange. There are additional auction pack fees (£396 inc. VAT) and possible costs in the special conditions. The sale format accelerates purchase but requires buyers to allow for these up-front expenses.
Practical considerations: the property needs a comprehensive renovation (boiler and radiators present), the solid-brick walls likely lack insulation, double glazing is dated, and the garden requires landscaping. The area has excellent transport and local amenities, strong schools nearby, but also higher crime and local deprivation levels — factors to weigh for rental yields and long-term value uplift.
1 bedroom flat for sale in 3(B) Stanlake Villas, Shepherd's Bush, W12 7EX, W12 — £210,000 • 1 bed • 1 bath • 384 ft²
2 bedroom flat for sale in Uxbridge Road, London, W12 — £525,000 • 2 bed • 2 bath • 919 ft²
1 bedroom ground floor flat for sale in Uxbridge Road W12 — £385,000 • 1 bed • 1 bath • 721 ft²
2 bedroom flat for sale in St. Stephens Avenue, Shepherds Bush, W12 — £580,000 • 2 bed • 1 bath • 600 ft²
2 bedroom apartment for sale in Stanlake Road, London, W12 — £700,000 • 2 bed • 2 bath • 822 ft²
2 bedroom flat for sale in Warbeck Road, Shepherd's Bush W12 — £625,000 • 2 bed • 1 bath • 756 ft²














































