**Standout Features:**
- Spacious double bedroom
- Generous south-facing garden
- Full refurbishment needed
- Potential to convert into a two-bed flat
- Share of freehold with 995 years remaining
- Great location near Uxbridge Road amenities
- Excellent mobile signal and fast broadband
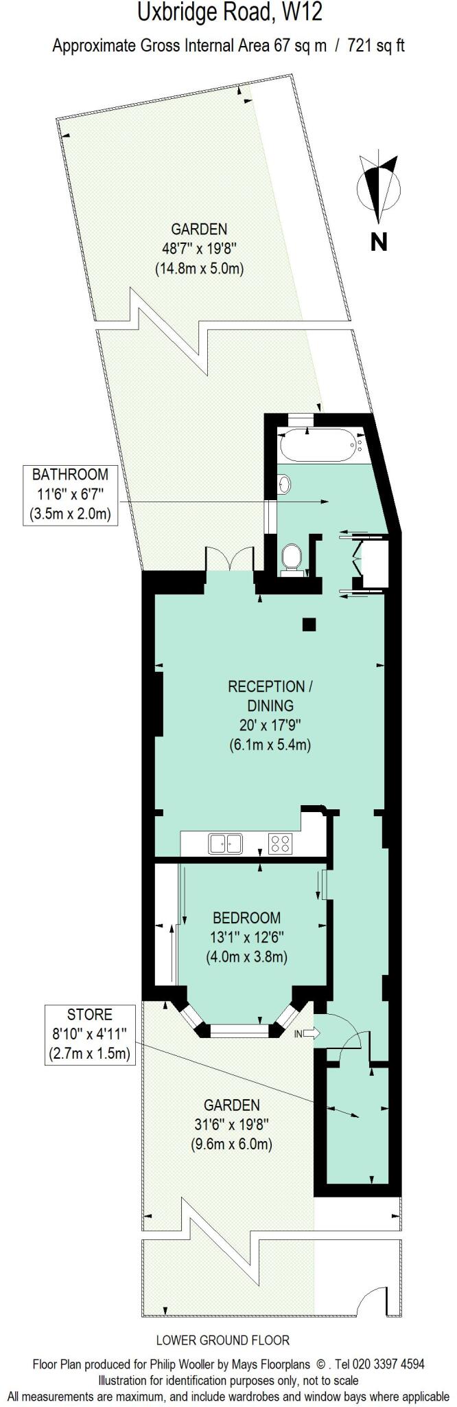
This spacious one-bedroom ground floor flat in a charming Victorian building boasts an unusually long south-facing garden and ample renovation potential, making it ideal for first-time buyers or investors looking to capitalize on the opportunity to create a two-bedroom property (subject to consents). With the flat requiring complete refurbishment, the extensive living space currently includes a large bathroom, a sizable reception room, and a kitchen, all accessible through your own entrance, with additional outdoor space at the front. The area is teeming with local amenities, including shops, restaurants, and parks, while being conveniently located just a short walk from transport links like Shepherd's Bush Market tube.
Although the property faces renovation challenges—such as water damage and a need for landscaping—it offers an expansive footprint and the ability to shape the flat to your vision, holding immense future potential. With an affordable council tax rate and proximity to highly-rated schools, this property not only provides a blank canvas but also an attractive residential option in the bustling heart of W12. Don’t miss your chance to transform this fixer-upper into your dream home!
2 bedroom flat for sale in Stanlake Road, Shepherd's Bush, London, W12 — £685,000 • 2 bed • 2 bath • 742 ft²
1 bedroom flat for sale in Goldhawk Road, Shepherd's Bush, London, W12 — £475,000 • 1 bed • 1 bath • 527 ft²
2 bedroom apartment for sale in Goldhawk Road, London, W12 — £685,000 • 2 bed • 1 bath • 851 ft²
1 bedroom apartment for sale in Westwick Gardens, London, W14 — £499,950 • 1 bed • 1 bath • 535 ft²
2 bedroom flat for sale in Hetley Road, London, W12 — £500,000 • 2 bed • 1 bath • 602 ft²
2 bedroom flat for sale in Bassein Park Road, Askew Village, London, W12 — £625,000 • 2 bed • 1 bath • 679 ft²














































