Bright two-bedroom conversion with private outdoor space and long lease, ready to occupy.
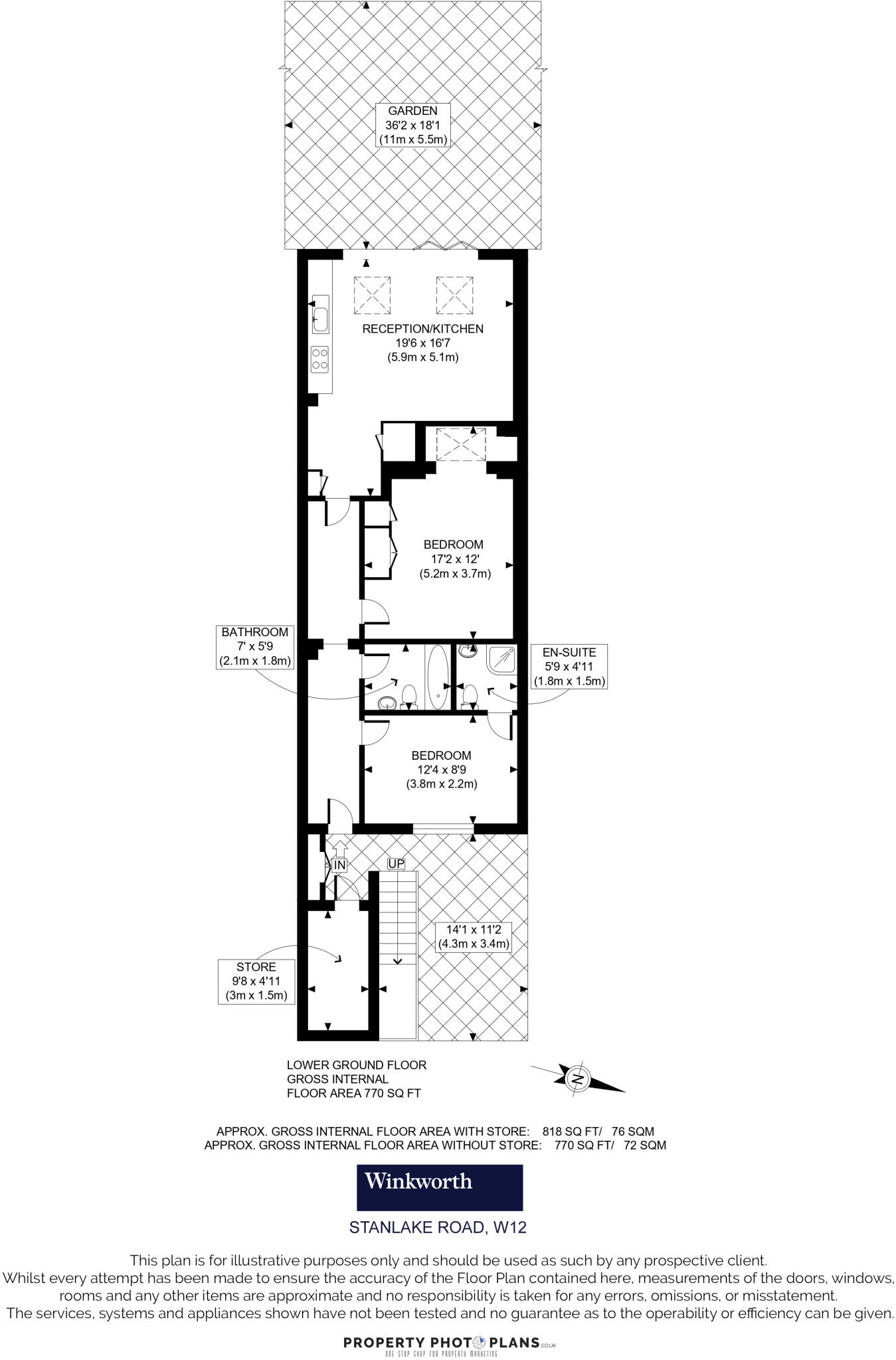
- Private entrance with two double bedrooms and en‑suite shower
- Bright open-plan living/kitchen with bi-fold doors and skylights
- Large private rear garden plus front courtyard for outdoor living
- Share of freehold, 991 years remaining; sold chain free
- Service charge approx £1,200 p.a.; no ground rent
- Solid brick walls; likely no cavity insulation — potential higher heating costs
- EPC rating C; mains gas boiler and radiators provide heating
- Local crime levels above average for the immediate area
A well-presented two-bedroom, two-bathroom ground/ lower-ground conversion offering a bright open-plan living space with full-width bi-fold doors and large rooflights. The principal bedroom includes built-in wardrobes and an en‑suite shower; a separate family bathroom serves the second double bedroom. At approximately 822 sq ft (76.4 sq m) the layout feels generous for a central London conversion and benefits from good ceiling heights and excellent natural light to the principal room.
Outside there is a private rear garden with paved patio and raised lawn, plus a front courtyard — unusually large outdoor amenity for this property type in Shepherd’s Bush. The flat is finished in contemporary neutral tones with integrated kitchen appliances and double glazing installed after 2002. The property is sold chain free with a long lease (991 years) and a share of freehold, making ownership straightforward for owner-occupiers or buy-to-let purchasers.
Practical considerations: the building has solid brick walls (no assumed cavity insulation) so heating costs may be higher than newer builds despite an EPC rating of C; mains gas boiler and radiators are the primary heating. Annual service charge is about £1,200; there is no ground rent. The location places you moments from Westfield, Television Centre and multiple Underground/Overground connections, though local crime levels are higher than average for the area.
This home will suit first‑time buyers and couples seeking a low‑maintenance central London property with private outdoor space, or investors targeting strong local rental demand. Internal condition appears good from descriptions, but any buyer should confirm specifics of finishes and services at viewing and consider insulation improvements if desired.
2 bedroom flat for sale in Stanlake Villas, London W12 — £595,000 • 2 bed • 1 bath • 727 ft²
2 bedroom flat for sale in Stanlake Road, Shepherd's Bush, London, W12 — £685,000 • 2 bed • 2 bath • 742 ft²
2 bedroom apartment for sale in Bloemfontein Avenue, London, W12 — £700,000 • 2 bed • 1 bath • 764 ft²
2 bedroom flat for sale in Coningham Road, Shepherds Bush, London, W12 — £535,000 • 2 bed • 1 bath • 712 ft²
1 bedroom apartment for sale in Ellerslie Road, London, W12 — £425,000 • 1 bed • 1 bath • 538 ft²
2 bedroom apartment for sale in Sterne Street, Shepherds Bush, London W12 8AD, W12 — £465,000 • 2 bed • 1 bath • 607 ft²










































