Recently refurbished two-bedroom garden-flat near Shepherd's Bush and Westfield.
Large open-plan reception with bi-folding doors and skylights
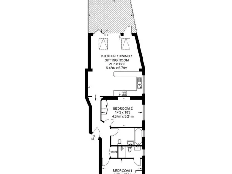
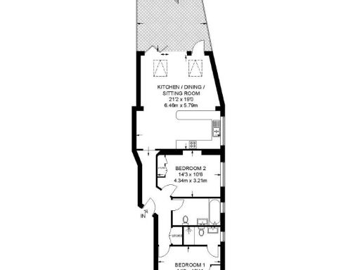
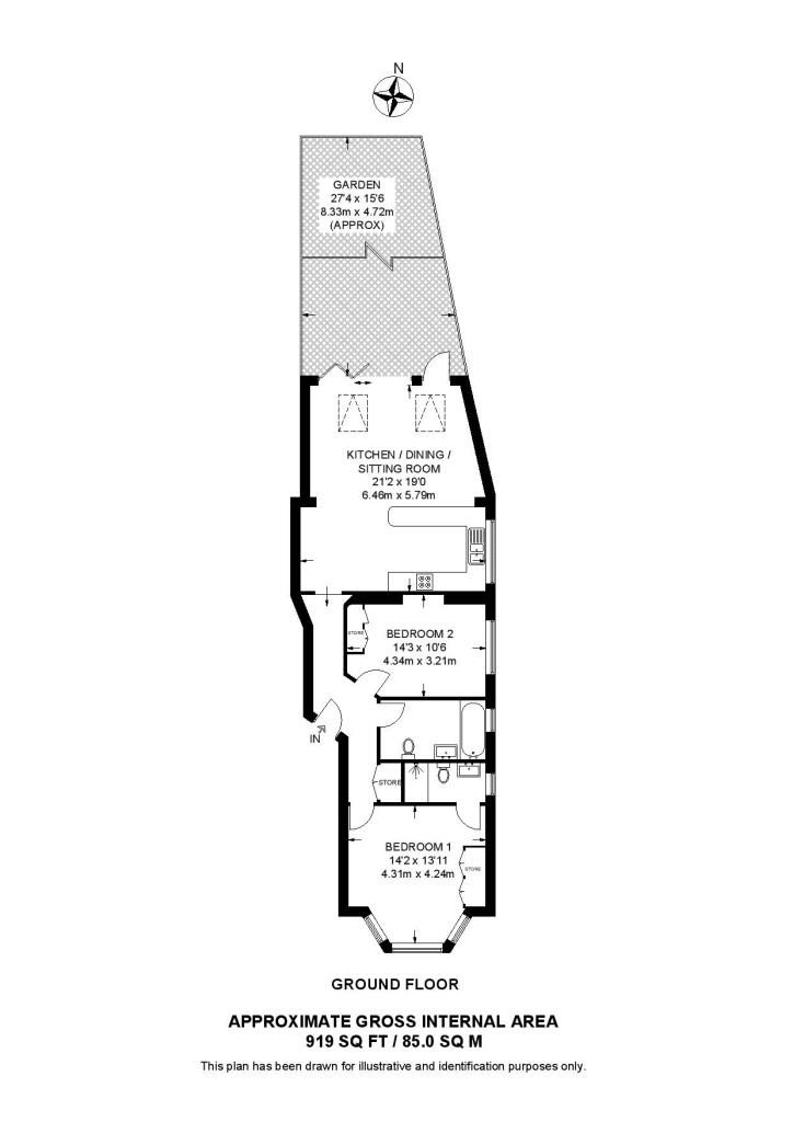
Bright, newly refurbished two-bedroom garden flat offering generous living space of approximately 919 sq ft. The open-plan reception with bi-folding doors and skylights connects seamlessly to a landscaped private garden, creating a light-filled ground-floor retreat moments from Shepherd’s Bush and Westfield.
Practical features include two stylish bathrooms, underfloor heating served by a gas boiler, double glazing, and off-street parking — rare for this location. The property sits in an end-terrace building from the early 20th century and combines period character with contemporary finishes, making it suitable for first-time buyers seeking space or investors after a low-management city asset.
Important considerations: the flat is leasehold and will be sold at an online auction (27 November 2025). Buyers should review the legal pack before bidding and note the vendor has up to 48 hours after bidding to accept the highest offer. Council tax is above average for the area, and the broader local area is classified as deprived with average crime levels.
Overall this is a practical, spacious flat that needs little internal work thanks to recent refurbishment. Its combination of garden access, parking and proximity to transport and shops delivers strong day-to-day convenience and future rental or resale potential.
2 bedroom flat for sale in Hetley Road, Shepherd's Bush, London, W12 — £425,000 • 2 bed • 1 bath • 690 ft²
2 bedroom flat for sale in Cathnor Road, London, W12 — £450,000 • 2 bed • 1 bath • 787 ft²
2 bedroom flat for sale in Uxbridge Road, Shepherd's Bush, London, W12 — £700,000 • 2 bed • 2 bath • 919 ft²
2 bedroom flat for sale in Cathnor Road, Shepherd's Bush, London, W12 — £450,000 • 2 bed • 1 bath • 787 ft²
2 bedroom ground floor flat for sale in St. Stephens Avenue, W12 — £450,000 • 2 bed • 1 bath • 585 ft²
2 bedroom flat for sale in Ormiston Grove, Shepherd's Bush, W12 — £795,000 • 2 bed • 1 bath • 871 ft²


























































































