Spacious two-bedroom property with parking, ideal for investors or city professionals.
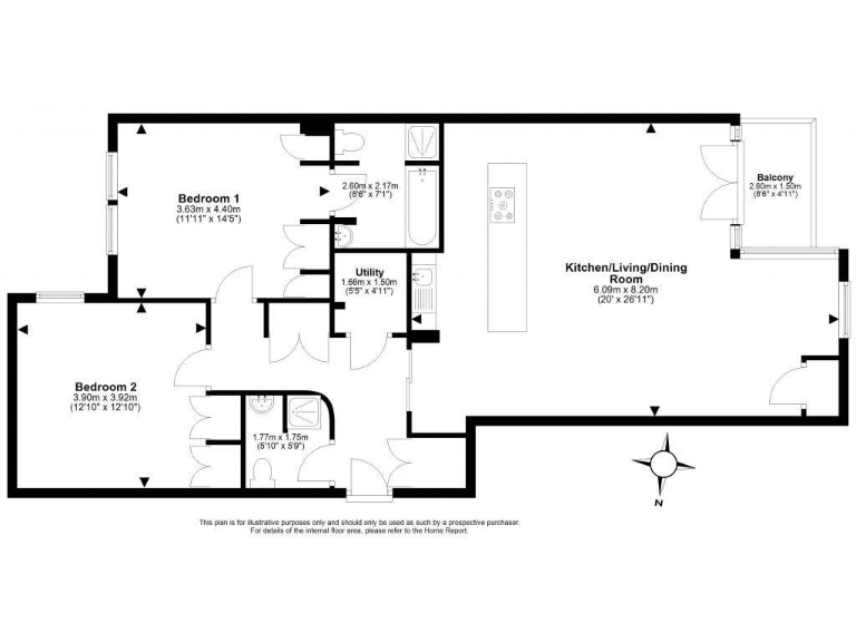
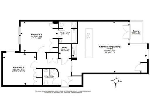
Large open-plan living, kitchen and dining space with balcony
A bright, well-proportioned two-bedroom apartment occupying the second floor of a factored, modern development. The standout feature is a very large open-plan living/kitchen/dining space opening onto a small balcony, suited to social living or rental demand. Secure underground parking with an allocated space adds rare convenience in this central location.
The building is maintained to a high standard with gated entry, video entry, lift access and communal gardens, so upkeep is low for owner-occupiers or landlords. The flat benefits from gas central heating, double glazing and good natural light through large windows; presented in good order and ready to move into.
Buyers should note the neighbourhood classification indicates a student-and-commuter area with very high local deprivation; this brings strong rental demand but a particular local dynamic to consider. Council tax is above average and the development is factored, so service charges apply. Overall the property suits investors or professionals seeking a central, low-maintenance flat with secure parking and excellent open-plan living space.
2 bedroom flat for sale in 3/7 Robertson Gait, Slateford, EH11 1HJ, EH11 — £230,000 • 2 bed • 1 bath • 689 ft²
2 bedroom flat for sale in 41/16 Gardner's Crescent, Fountainbridge, Edinburgh, EH3 8DG, EH3 — £385,000 • 2 bed • 2 bath • 566 ft²
3 bedroom apartment for sale in McEwan Square, Edinburgh, Midlothian, EH3 — £575,000 • 3 bed • 2 bath • 1504 ft²
2 bedroom apartment for sale in Gardner's Crescent, Edinburgh, EH3 — £350,000 • 2 bed • 2 bath • 741 ft²
2 bedroom flat for sale in 201/15 Broughton Road, Canonmills, Edinburgh, EH7 4QN, EH7 — £225,000 • 2 bed • 2 bath • 839 ft²
2 bedroom flat for sale in 5/7 Shrubhill Walk, Edinburgh, EH7 4RB, EH7 — £325,000 • 2 bed • 2 bath • 586 ft²










































































































