Rare countryside plot with planning for a striking five-bedroom home close to village amenities.
- Approximately 0.74 acre plot with private rural outlook
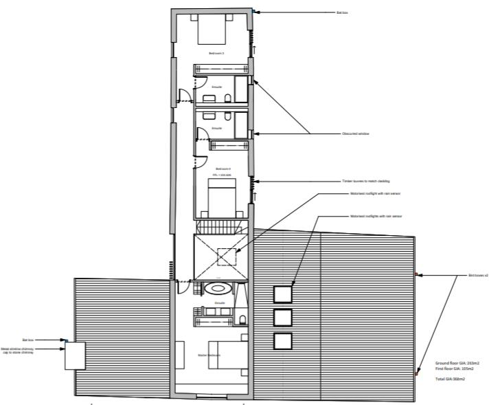
- Full planning for a contemporary 5-bed detached house
- Large agricultural barn and outbuildings on site
- Mains water available; planning allows septic tank drainage
- Very limited connectivity: no mobile signal, very slow broadband
- Remote location; area classed as deprived despite low crime
- Secluded setting close to Shebbear and Langtree amenities
- Requires developer/builder input for conversion and landscaping
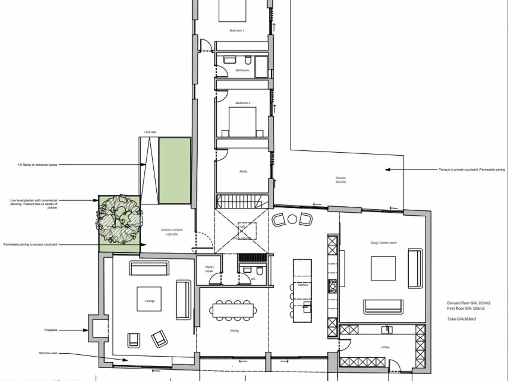
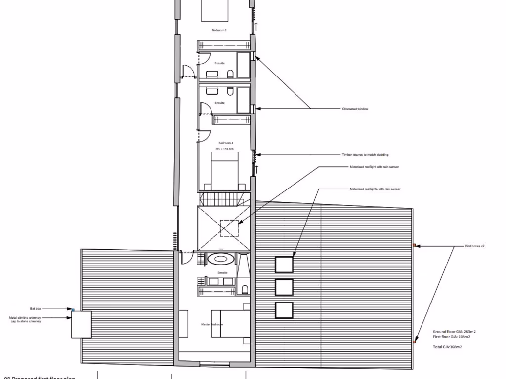
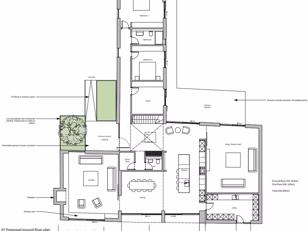
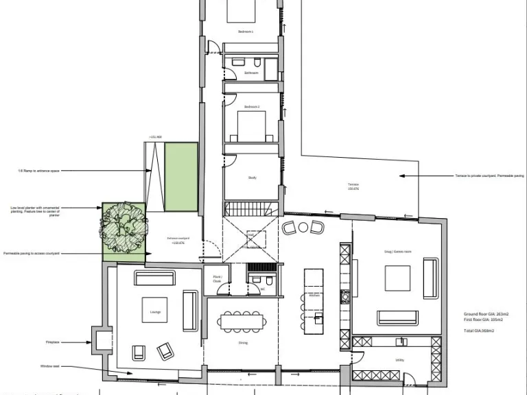
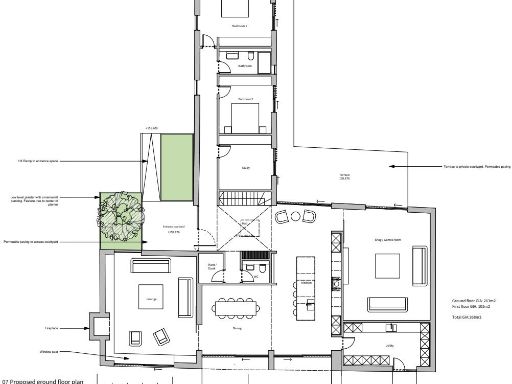
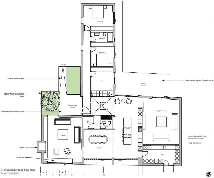
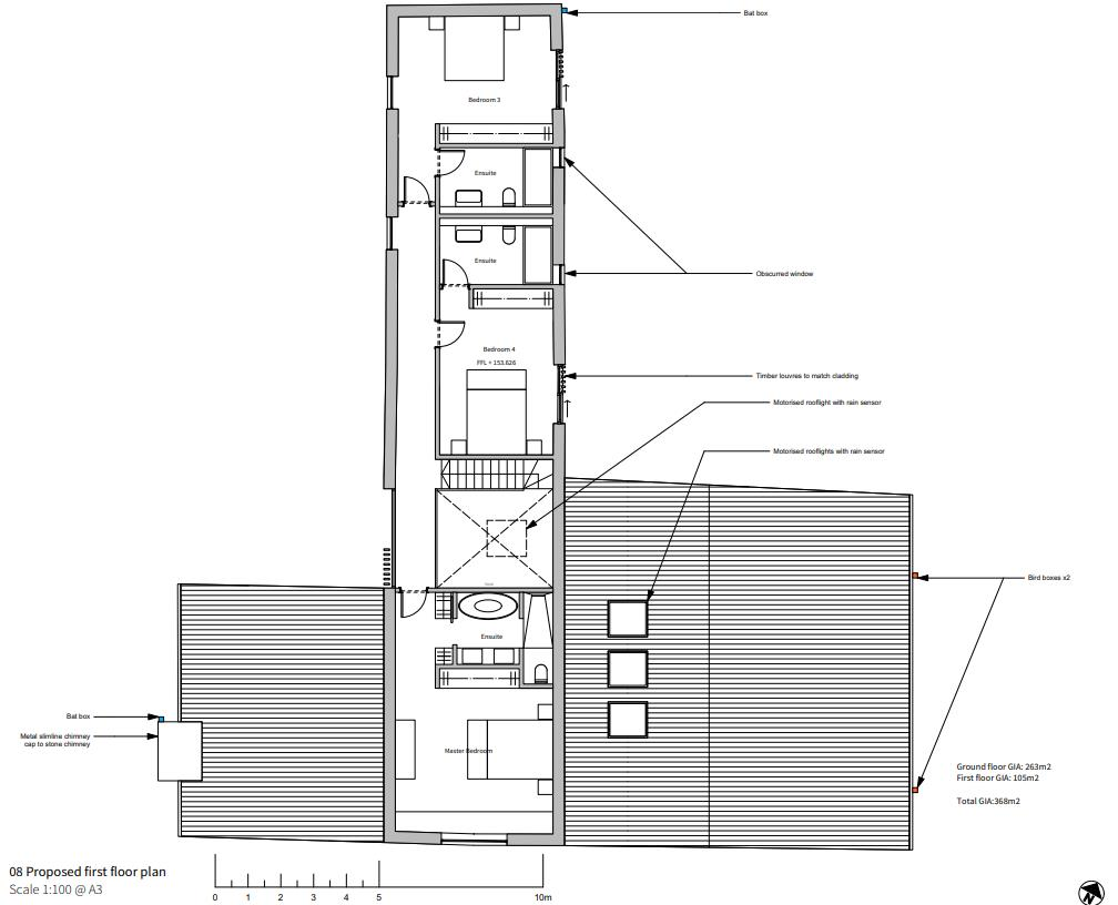
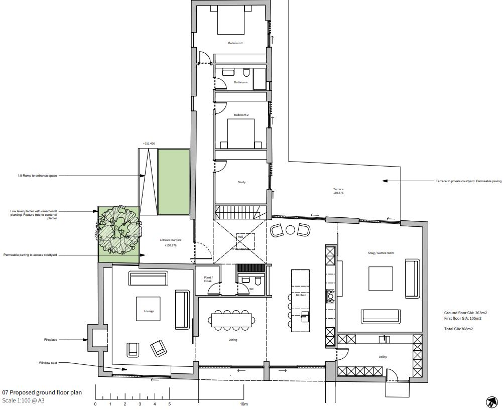
Set on about 0.74 acres in rolling North Devon countryside, this large agricultural barn plot has full planning to deliver a contemporary five-bedroom detached home. The site sits privately on the edge of Galmington Farm with open rural views, generous outdoor space and scope for landscaping or small-scale hobby farming.
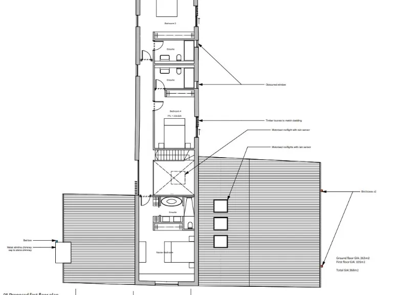
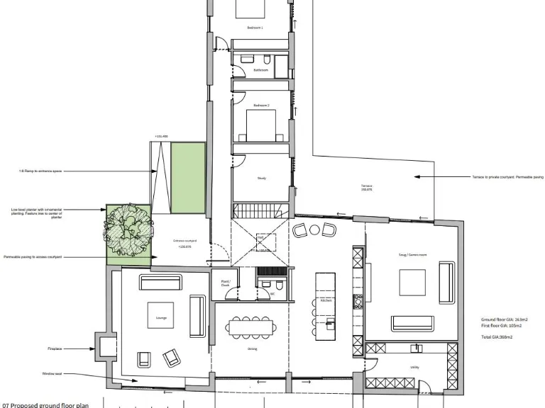
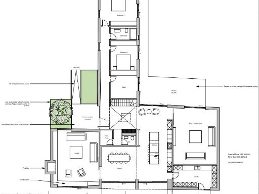
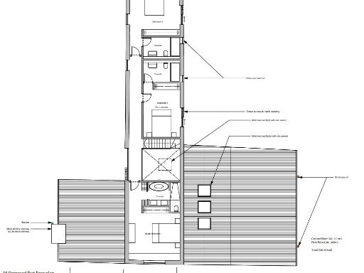
Planning permission was granted on 5 April 2023 (Torridge ref 1/1188/2022/FUL) for a substantial open-plan living design with separate sitting room, snug/garden room and study. Mains water is available and permission covers septic tank drainage; the existing barn and outbuildings provide storage during development or offer conversion potential subject to permissions.
Practical limitations are important to note: the location is remote with no mobile signal and very slow broadband, and the wider area records higher deprivation statistics. These factors suit buyers seeking rural seclusion rather than connectivity-dependent living. Flood risk is low and crime is very low.
This is a rare rural development opportunity for a family seeking a bespoke home, or an investor/developer comfortable with countryside projects and on-site servicing needs. Full planning documents are available on the Torridge District Council website using the reference above for independent review.
Land for sale in Yarnscombe, Barnstaple, EX31 — £375,000 • 1 bed • 1 bath
Plot for sale in Cookbury, Holsworthy, Devon, EX22 — £150,000 • 1 bed • 1 bath
Land for sale in Yarnscombe, Barnstaple, EX31 — £425,000 • 1 bed • 1 bath
Property for sale in St. Giles, Torrington, Devon, EX38 — £450,000 • 1 bed • 1 bath • 1204 ft²
Plot for sale in Pyworthy, Holsworthy, Devon, EX22 — £425,000 • 1 bed • 1 bath
Land for sale in West Putford, Holsworthy, EX22 — £299,000 • 1 bed • 1 bath • 3552 ft²


































