Significant landholding with approved housing potential and barn conversion opportunity.
Grade II listed farmhouse with spacious traditional accommodation
Chilton Trivett Farm is a substantial rural holding extending to approximately 2.63 hectares (6.5 acres), offered either as a whole or in three separate lots. The principal farmhouse is Grade II listed and provides spacious, well‑proportioned accommodation with ancillary rooms, mature gardens and a garage. The site includes farm buildings, amenity land and a separate residential development plot with planning permissions already in place.
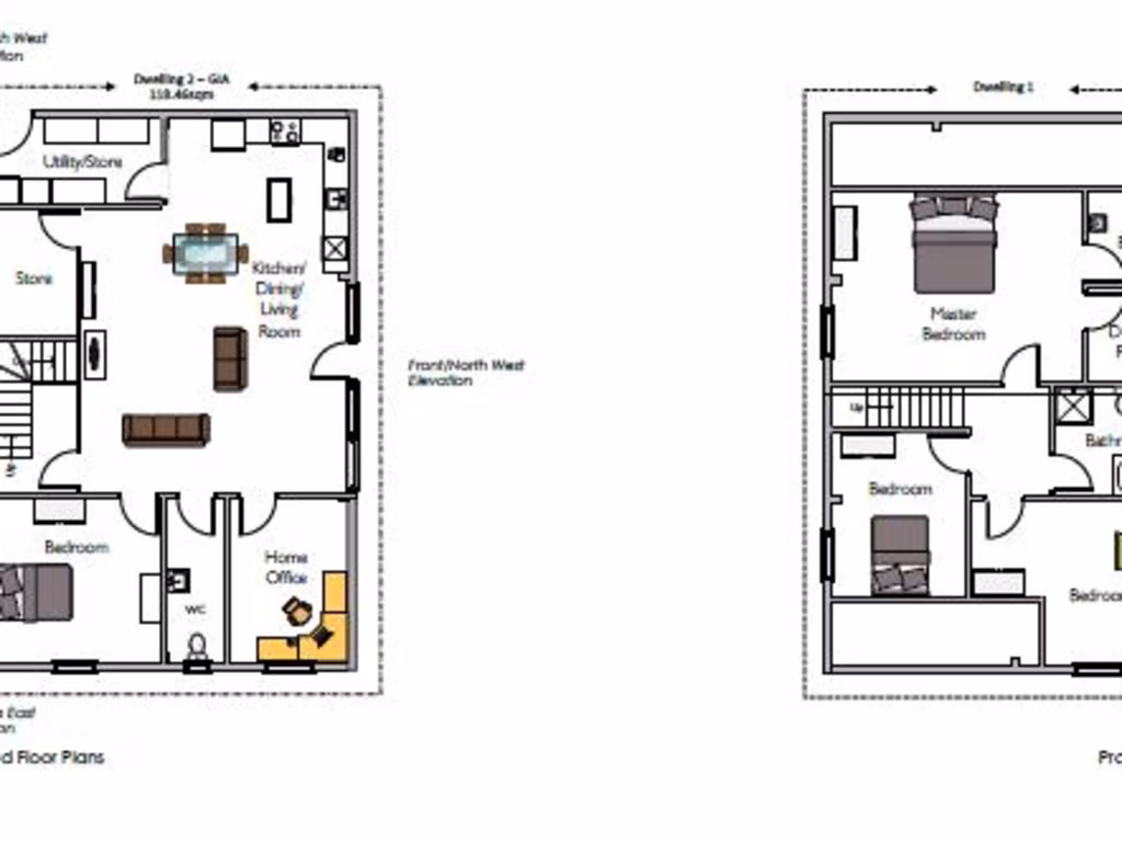
For developers and investors the standout opportunity is Lot 2: full planning permission for four detached open‑market dwellings, plus Class Q consent for two further dwellings. Lot 3 offers conversion potential for two traditional barns into one larger home; the wider site layout and generous plot sizes suit a low‑density rural scheme. Sales can proceed as a single lot or by separate parcels to match development strategies.
Buyers should note practical constraints: the farmhouse’s Grade II listing will impose restrictions and may complicate alterations. The main house predates 1900, has solid stone walls likely without modern insulation and an oil‑fired boiler for heating. Broadband speeds are very slow here despite excellent mobile signal, and tenure particulars are not provided. These factors affect refurbishment scope and running costs and should be factored into value and planning appraisals.
Overall this is a rare rural assemblage combining a historic family farmhouse, productive outbuildings and a permitted residential development site. It suits experienced developers, investors or a buyer seeking a large private estate with scope for sensitive restoration and redevelopment.
4 bedroom house for sale in Lot 1 - Blackmore Lane, Cannington, Bridgwater, Somerset, TA5 — £750,000 • 4 bed • 1 bath • 3284 ft²
Plot for sale in Lot 3 - Blackmore Lane, Cannington, Bridgwater, Somerset, TA5 — £200,000 • 1 bed • 1 bath • 3284 ft²
Plot for sale in Lot 2 - Blackmore Lane, Cannington, Bridgwater, Somerset, TA5 — £600,000 • 1 bed • 1 bath • 3284 ft²
6 bedroom detached house for sale in Whitefield, Wiveliscombe, Taunton, TA4 — £1,150,000 • 6 bed • 3 bath • 6642 ft²
6 bedroom detached house for sale in Whitefield, Wiveliscombe, Taunton, TA4 — £1,155,000 • 6 bed • 3 bath • 6642 ft²
5 bedroom detached house for sale in East Quantoxhead, Nr. Bridgwater, Somerset, TA5 — £750,000 • 5 bed • 1 bath






































































































