Sprawling period home with gardens, paddocks and strong development potential.
Grade II listed farmhouse with strong period features
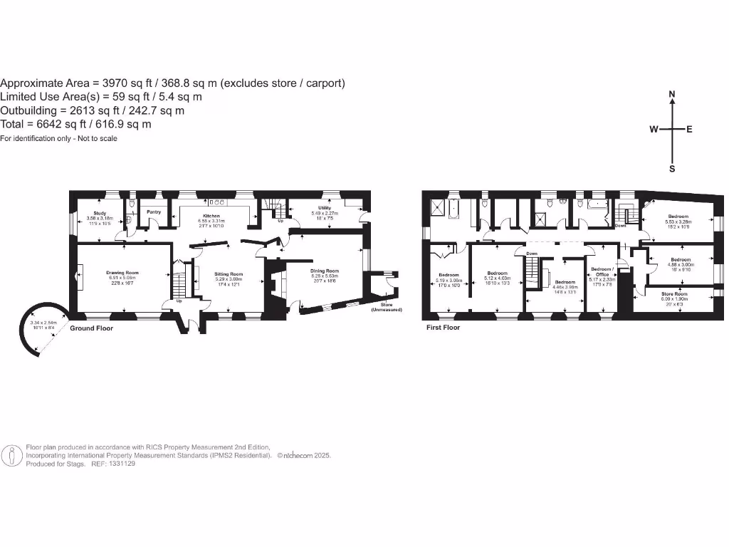
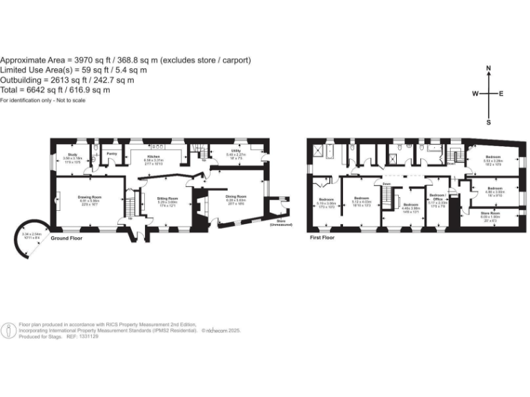
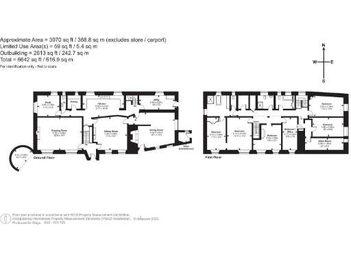
Set in an elevated position with far-reaching countryside views, this Grade II listed farmhouse sits within 4.51 acres of mature gardens, orchard, productive kitchen garden and paddocks. The main house offers five to six bedrooms, three bathrooms and four reception rooms across generous, characterful living spaces with exposed beams, inglenook fireplaces and a large kitchen/breakfast room with a four-door AGA.
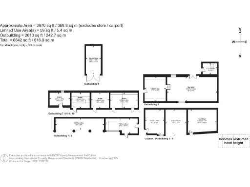
A substantial range of stone outbuildings, a lin hay, stable block and tractor barn provide significant scope for conversion or adaptation subject to planning and listed-building consents. The plot, size and existing buildings create clear potential for a small equestrian setup, ancillary accommodation or income-generating uses, though any change will require the necessary permissions.
Practical considerations: the house is listed, which preserves character but will complicate alterations; heating is via oil with an AGA, drainage is to a private septic tank, and the property is EPC exempt. Mobile signal and ultrafast broadband are strong, and there is off-street parking and covered storage, but maintenance of outbuildings and the long-established garden will be ongoing.
Offered with no onward chain and freehold tenure, this is a rural family home for buyers seeking substantial land, period character and development potential who are comfortable working within the constraints of listed status and private services.
6 bedroom detached house for sale in Whitefield, Wiveliscombe, Taunton, TA4 — £1,225,000 • 6 bed • 3 bath • 6642 ft²
5 bedroom detached house for sale in Wiveliscombe, Taunton, TA4 — £1,100,000 • 5 bed • 3 bath • 2068 ft²
5 bedroom detached house for sale in Ashbrittle, Wellington, Somerset, TA21 — £2,400,000 • 5 bed • 3 bath • 4650 ft²
4 bedroom detached house for sale in West Buckland, Wellington, Somerset, TA21 — £610,000 • 4 bed • 3 bath • 2281 ft²
4 bedroom detached house for sale in Long Sutton, TA10 — £795,000 • 4 bed • 3 bath • 2286 ft²
5 bedroom detached house for sale in Wiveliscombe, Taunton, Somerset, TA4 — £1,275,000 • 5 bed • 3 bath • 2068 ft²










































































































































