Large rural smallholding with barn conversion potential and no onward chain.
Grade II Listed farmhouse with character features
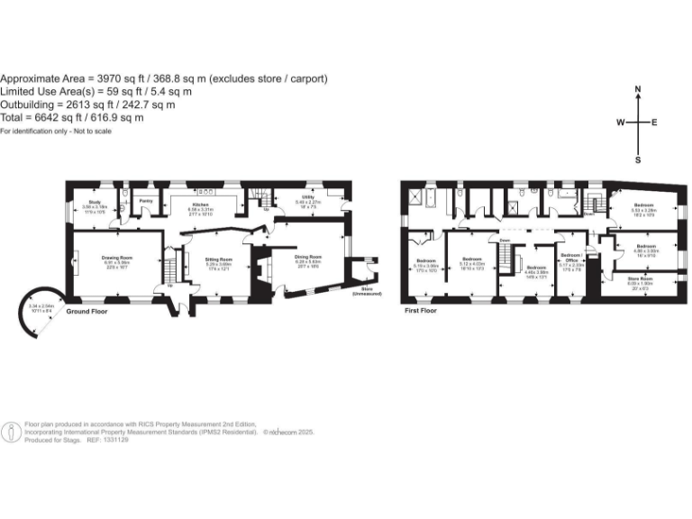
A substantial Grade II farmhouse set in an elevated position with far-reaching countryside views and about 10.88 acres of grounds. The main house offers five/ six bedrooms, three bathrooms and four reception rooms across generous, characterful living space. Mature gardens, an orchard, productive vegetable beds, paddocks and a range of stone outbuildings create a versatile rural smallholding.
The substantial barn and adjoining outbuildings present genuine development potential for ancillary accommodation or conversion, subject to the necessary planning consents. Useful practical buildings include a stable block, tractor barn and linhay, plus covered parking and yard space — valuable for hobby farming, equestrian use or small‑scale diversification.
Important practical points are stated plainly: the property is Grade II listed which will constrain changes and can complicate conversions; services include private water and a septic tank; heating is oil‑fired with an Aga; and some buildings and interior areas will need updating and ongoing maintenance. Broadband information is mixed on record — the house is reported to benefit from ultrafast broadband, yet separate data records very slow speeds on the line, so buyers should verify connectivity.
Offered freehold and with no onward chain, this house will suit purchasers seeking an established country home with scope to enhance its buildings and land. A thorough structural and listed‑building survey is recommended before purchase to clarify refurbishment costs and permissions required for any development works.
6 bedroom detached house for sale in Whitefield, Wiveliscombe, Taunton, TA4 — £1,155,000 • 6 bed • 3 bath • 6642 ft²
5 bedroom detached house for sale in Wiveliscombe, Taunton, TA4 — £1,100,000 • 5 bed • 3 bath • 2068 ft²
5 bedroom detached house for sale in Wiveliscombe, Taunton, Somerset, TA4 — £1,100,000 • 5 bed • 3 bath • 2068 ft²
4 bedroom detached house for sale in West Buckland, Wellington, Somerset, TA21 — £610,000 • 4 bed • 3 bath • 2281 ft²
4 bedroom detached house for sale in Long Sutton, TA10 — £795,000 • 4 bed • 3 bath • 2286 ft²
5 bedroom semi-detached house for sale in Holcombe Rogus, Wellington, TA21 — £650,000 • 5 bed • 3 bath • 2722 ft²






































































































































