**Standout Features:**
- Expansive 4-bedroom Grade II Listed farmhouse
- Additional buildings including barns and outbuildings
- 3-acre garden/paddock with potential for farming or leisure
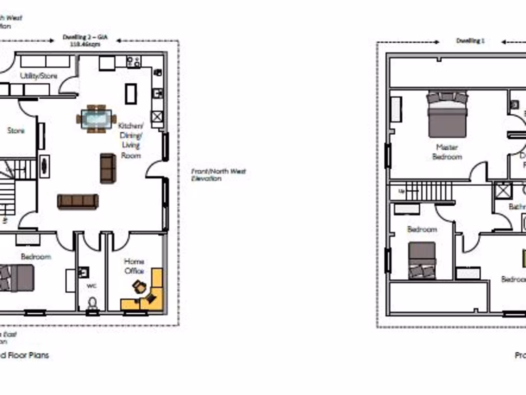
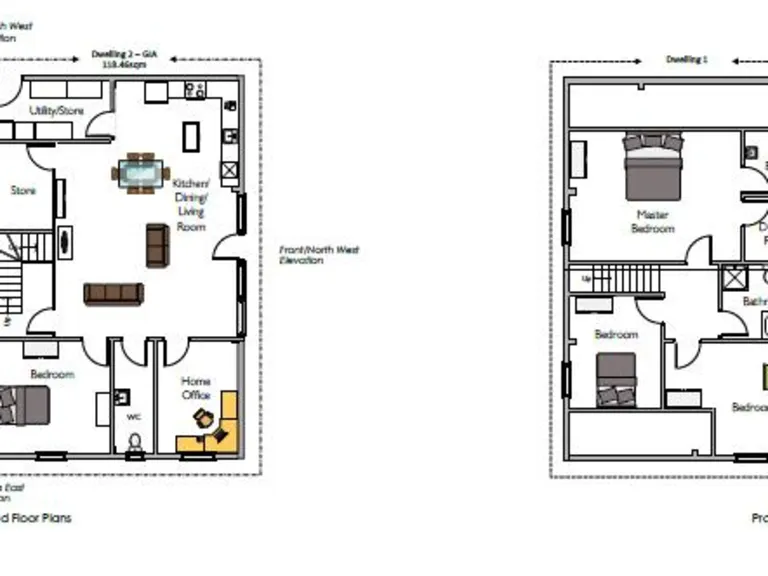
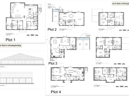
- Residential development site with planning for 6 new dwellings
- Set in a tranquil rural location surrounded by farmland
- Excellent mobile signal; potential for a private retreat
**Potential Concerns:**
- Listed status may limit renovation alters
- Slow broadband speeds could impact modern connectivity
- High maintenance needs typical of historic properties
Discover the charm of Chilton Trivett Farm, a remarkable 4-bedroom farmhouse set on a generous 2.63-hectare estate in scenic Somerset. This character-filled Grade II Listed property boasts spacious living areas, complemented by a range of farm buildings and a 3-acre paddock, providing ample outdoor space for gardening, recreation, or small-scale farming.
With full planning permission for 4 detached homes and Class Q consent for 2 additional dwellings, this property offers tremendous potential for investors looking to develop in a peaceful rural setting. Perfect for families or individuals seeking an escape from city life, the property offers a unique blend of historical elegance and future growth possibilities.
While the charm of the farmhouse and its grounds is undeniable, note that the listed status may present some challenges in renovations and modernization, and the broadband speed may not meet everyone's needs. Don’t miss the chance to create your dream rural retreat or development opportunity—properties like this are a rarity!
Plot for sale in Lot 3 - Blackmore Lane, Cannington, Bridgwater, Somerset, TA5 — £200,000 • 1 bed • 1 bath • 3284 ft²
Land for sale in Blackmore Lane, Cannington, Bridgwater, Somerset, TA5 — £1,550,000 • 1 bed • 1 bath • 3284 ft²
Plot for sale in Lot 2 - Blackmore Lane, Cannington, Bridgwater, Somerset, TA5 — £600,000 • 1 bed • 1 bath • 3284 ft²
4 bedroom detached house for sale in Wiveliscombe, Taunton, Somerset, TA4 — £1,350,000 • 4 bed • 1 bath • 1293 ft²
5 bedroom detached house for sale in Lillesdon, Taunton, Somerset, TA3 — £1,300,000 • 5 bed • 3 bath
6 bedroom detached house for sale in Witcombe, Martock, Somerset, TA12 — £1,650,000 • 6 bed • 3 bath • 4783 ft²






































































































