**Standout Features:**
- Expansive 6.5-acre estate featuring a historic Grade II Listed farmhouse with 4 bedrooms
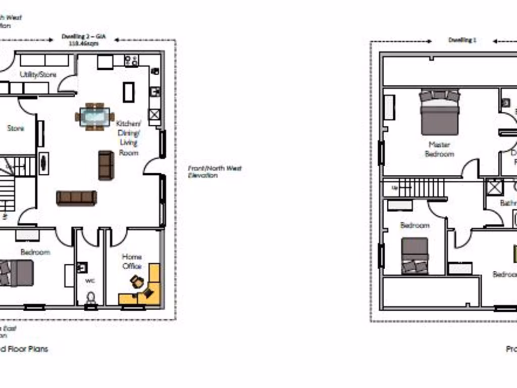
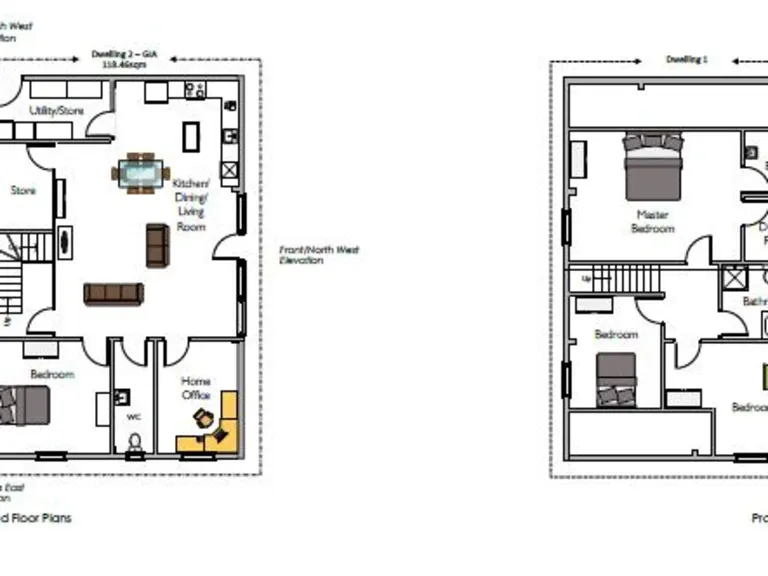
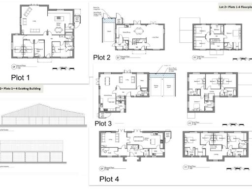
- Additional residential development site approved for 4 detached dwellings and two additional homes
- Opportunity to purchase farmhouse and land as a whole or in three distinct lots
- Tranquil rural setting, ideal for families or investors looking for development potential
- Excellent mobile signal and low crime rate in the area
**Concerns:**
- Listed status may pose renovation challenges
- Current broadband speeds are notably slow
- Lack of modern insulation in the main structure
Discover the potential of Chilton Trivett Farm, an expansive 6.5-acre rural estate featuring a charming Grade II Listed farmhouse with spacious accommodations. Perfect for families craving tranquility or investors seeking lucrative development opportunities, this property includes approved plans for four detached homes and the chance to convert additional barns into a stunning residence. Embrace country living with sweeping views, mature trees, and ample garden space, all while being part of an affluent community with good local schools.
While the farmhouse offers character and history, its listed status may complicate renovation efforts. The property is primarily heated by oil with no insulation, presenting a challenge for modernization. However, with a promising location offering excellent mobile connectivity and low crime rates, this estate appeals to those envisioning a peaceful rural lifestyle. Don’t miss out on this substantial opportunity—properties like this with such vast development potential are rare to find!
4 bedroom house for sale in Lot 1 - Blackmore Lane, Cannington, Bridgwater, Somerset, TA5 — £750,000 • 4 bed • 1 bath • 3284 ft²
Plot for sale in Lot 2 - Blackmore Lane, Cannington, Bridgwater, Somerset, TA5 — £600,000 • 1 bed • 1 bath • 3284 ft²
Land for sale in Blackmore Lane, Cannington, Bridgwater, Somerset, TA5 — £1,550,000 • 1 bed • 1 bath • 3284 ft²
5 bedroom detached house for sale in Perry Green, Wembdon, Bridgwater, Somerset, TA5 — £1,050,000 • 5 bed • 2 bath • 1246 ft²
Land for sale in Lyng Drove, Lyng, Somerset, TA3 — £70,000 • 1 bed • 1 bath
2 bedroom detached house for sale in Mill Lane, Nether Stowey, Bridgwater, Somerset, TA5 — £350,000 • 2 bed • 1 bath • 1292 ft²






































































































