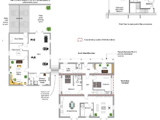
**Standout Features:**
- Historic Grade II Listed farmhouse with spacious accommodations.
- Opportunity for ancillary accommodation and significant development potential.
- Approximately 2.63-hectares (6.5-acres) of expansive garden/paddock.
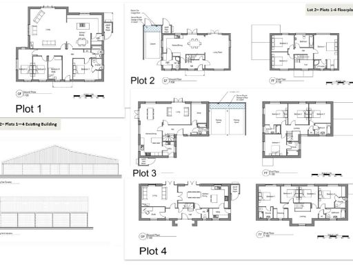
- Planning permission for 4 detached dwellings, plus 2 additional homes.
- Peaceful rural setting with stunning views and low crime rates.
**Key Considerations:**
- Maintenance may be required due to the property's age and condition.
- Double glazing installed before 2002, possible insulation concerns.
- Broadband speeds are very slow, affecting connectivity.
Discover the unique charm of this sprawling Grade II Listed farmhouse, offering a blend of historic character and modern development potential. Nestled in a picturesque countryside setting, the property boasts large gardens and paddocks, perfect for outdoor enthusiasts or families looking for space. Envision transforming this expansive estate; with planning permission for four detached dwellings and two additional units, seize the opportunity to enhance your investment portfolio or create a family homestead.
While the farmhouse includes generous living space, be aware that updates may be required to bring it to current standards, and the property's listed status could present renovation challenges. Despite these factors, the serene rural location, excellent mobile signal, and a strong sense of community make this a rare find. The surrounding area is home to well-regarded schools, enhancing its allure for families. Act quickly to capitalize on this exceptional offering, as opportunities like this don’t last long!
Plot for sale in Lot 3 - Blackmore Lane, Cannington, Bridgwater, Somerset, TA5 — £200,000 • 1 bed • 1 bath • 3284 ft²
4 bedroom house for sale in Lot 1 - Blackmore Lane, Cannington, Bridgwater, Somerset, TA5 — £750,000 • 4 bed • 1 bath • 3284 ft²
Land for sale in Blackmore Lane, Cannington, Bridgwater, Somerset, TA5 — £1,550,000 • 1 bed • 1 bath • 3284 ft²
5 bedroom detached house for sale in Henley, Langport, Somerset, TA10 — £1,500,000 • 5 bed • 4 bath • 5775 ft²
5 bedroom detached house for sale in Perry Green, Wembdon, Bridgwater, Somerset, TA5 — £1,050,000 • 5 bed • 2 bath • 1246 ft²
4 bedroom detached house for sale in Wiveliscombe, Taunton, Somerset, TA4 — £1,350,000 • 4 bed • 1 bath • 1293 ft²






































































































