Modern, low-maintenance living in a peaceful rural hamlet near good schools.
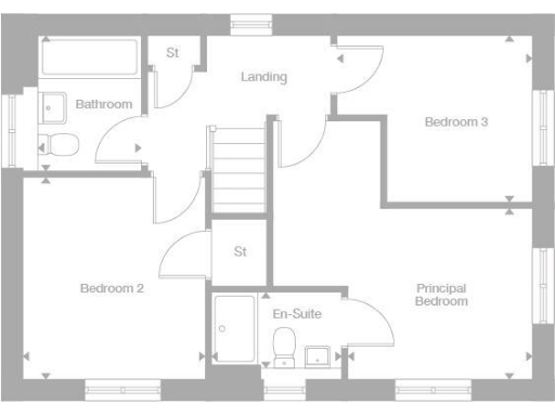
3 bedroom detached new build with principal en-suite
Compact internal area — approx. 615 sq ft (rooms are small)
Large plot with garden; French doors from kitchen/diner
Off-street parking included; feature bay window in lounge
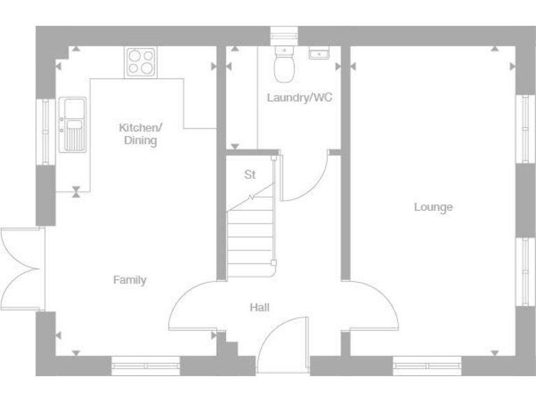
Separate laundry room and ground-floor WC for practicality
10-year NHBC warranty; selected plots offer 5% deposit help
Annual service charge £240; reservation fee £500
Council tax banding TBC — buyer should confirm costs
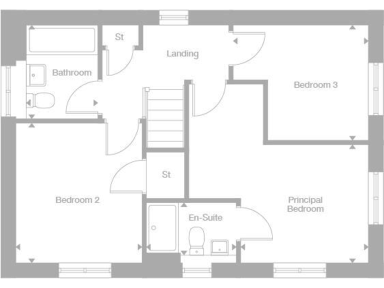
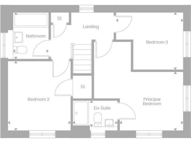
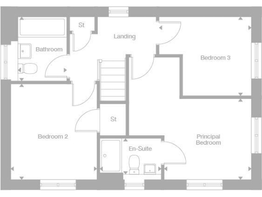
This three-bedroom detached new build on Rookery Lane offers compact, efficient living for first-time buyers seeking a modern home in a quiet hamlet. The layout includes a lounge with a feature bay window, an open-plan kitchen/diner with French doors to the garden and a separate laundry/ground-floor WC — practical touches for everyday family life.
The principal bedroom includes an en-suite and there are two further bedrooms plus a family bathroom. The house comes with a 10-year NHBC warranty and selected plots offer a 5% deposit contribution and online pre-reservation to help speed up moving in. Off-street parking is provided and the plot is described as very large, giving scope for outdoor use or landscaping.
Notable constraints: the property’s total internal area is small (approximately 615 sq ft) and several rooms are compact, so storage/space planning will be necessary. There is an annual service charge of £240 and council tax banding is yet to be confirmed. Reservation fee is £500. Overall, this is a modern, energy-efficient starter home in an affluent, low-crime rural location — well suited to first-time buyers who prioritise low maintenance and warranty-backed new build confidence.
3 bedroom detached house for sale in Rookery Lane,
Rainford,
St Helens,
Merseyside,
WA11 8EQ, WA11 — £326,995 • 3 bed • 1 bath • 624 ft²
2 bedroom semi-detached house for sale in Rookery Lane,
Rainford,
St Helens,
Merseyside,
WA11 8EQ, WA11 — £229,995 • 2 bed • 1 bath • 580 ft²
4 bedroom detached house for sale in Rookery Lane,
Rainford,
St Helens,
Merseyside,
WA11 8EQ, WA11 — £362,995 • 4 bed • 1 bath • 796 ft²
2 bedroom semi-detached house for sale in Rookery Lane,
Rainford,
St Helens,
Merseyside,
WA11 8EQ, WA11 — £234,995 • 2 bed • 1 bath • 580 ft²
3 bedroom detached house for sale in Higher Lane,
Rainford,
St Helens,
Merseyside,
WA11 8EQ, WA11 — £350,995 • 3 bed • 1 bath • 615 ft²
4 bedroom detached house for sale in Rookery Lane,
Rainford,
St Helens,
Merseyside,
WA11 8EQ, WA11 — £396,995 • 4 bed • 1 bath • 808 ft²


















































































