Modern, energy-efficient home in peaceful countryside setting ideal for first-time buyers.
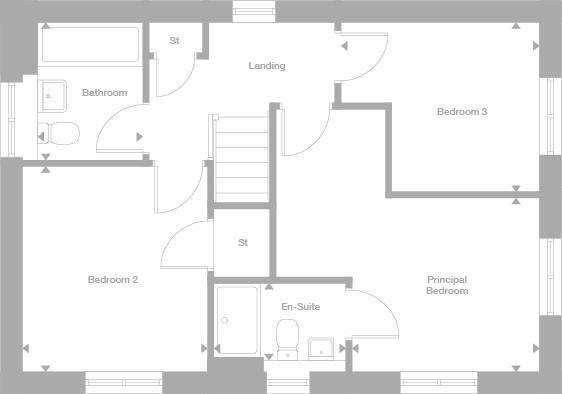
3 bedrooms with principal en-suite and family bathroom
Kitchen/diner has French doors opening to garden
Separate laundry room plus ground-floor WC
10-year NHBC warranty included for buyer protection
Very large plot offering garden or extension potential
Compact internal size — total about 615 sq ft (small)
Annual service charge £240; reservation fee £500
Off-street parking; solar panels improve energy efficiency
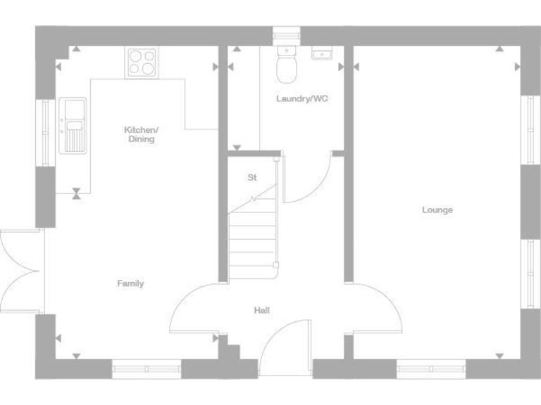
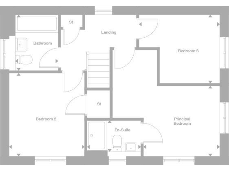
This three-bedroom detached new build on Dial House Place offers compact, efficient living with modern fixtures and energy-saving features. The property includes a 10-year NHBC warranty, off-street parking and a very large plot, giving scope for outdoor landscaping or extension (subject to planning).
Downstairs living centres on a kitchen/diner with French doors to the garden, a separate laundry room and a lounge with a bay window. The principal bedroom benefits from an en-suite; family bathroom serves two further bedrooms. Solar panels and contemporary finishes reduce running costs and suit eco-aware buyers.
The home is aimed at first-time buyers and small families seeking a low-crime, semi-rural setting with fast broadband and excellent mobile signal. Nearby primary and secondary schools have strong Ofsted outcomes, and local bus links provide basic transport access.
Important practical points: the home’s overall internal size is small (about 615 sq ft) so rooms are compact. There is an annual service charge of £240 and a £500 reservation fee. Council tax band is to be confirmed. Buyers should view room sizes to ensure they meet space needs.
3 bedroom semi-detached house for sale in Higher Lane,
Rainford,
St Helens,
Merseyside,
WA11 8EQ, WA11 — £284,995 • 3 bed • 1 bath • 595 ft²
4 bedroom detached house for sale in Higher Lane,
Rainford,
St Helens,
Merseyside,
WA11 8EQ, WA11 — £466,995 • 4 bed • 1 bath • 853 ft²
4 bedroom detached house for sale in Higher Lane,
Rainford,
St Helens,
Merseyside,
WA11 8EQ, WA11 — £429,995 • 4 bed • 1 bath • 815 ft²
4 bedroom detached house for sale in Higher Lane,
Rainford,
St Helens,
Merseyside,
WA11 8EQ, WA11 — £424,995 • 4 bed • 1 bath • 815 ft²
3 bedroom detached house for sale in Rookery Lane,
Rainford,
St Helens,
Merseyside,
WA11 8EQ, WA11 — £326,995 • 3 bed • 1 bath • 624 ft²
4 bedroom detached house for sale in Higher Lane,
Rainford,
St Helens,
Merseyside,
WA11 8EQ, WA11 — £512,995 • 4 bed • 1 bath • 997 ft²






































