Contemporary small-family home with large private plot and modern fittings.
Detached new-build with 10-year NHBC warranty
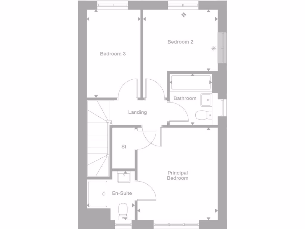
This newly built three-bedroom detached home at Rookery Farm blends contemporary design with rural calm. The kitchen/diner opens through French doors to a very large private plot, while a separate garage and allocated off-street parking add practical everyday convenience. A 10-year NHBC warranty and solar panels provide reassurance and lower running costs.
Inside, the layout is compact and efficiently arranged across approximately 624 sq ft, with a principal bedroom benefiting from an en-suite and a downstairs WC for guests. Fixtures and finishes are modern, with integrated appliances and LED lighting in the kitchen/diner. Fast broadband and excellent mobile signal make the house well-suited to flexible working and family life.
Practical purchase incentives are available on selected plots, including online pre-reservation, deposit contribution or part-exchange options. Service charge is modest at £240 per year; reservation fee is £500 and council tax band is yet to be confirmed.
Buyers should note the overall internal size is small for a three-bedroom detached property, so storage and living space are limited compared with larger family homes. The building is new, so immediate major works are unlikely, but buyers expecting spacious rooms should view to check proportions and suitability.
3 bedroom detached house for sale in Rookery Lane,
Rainford,
St Helens,
Merseyside,
WA11 8EQ, WA11 — £341,995 • 3 bed • 1 bath • 615 ft²
4 bedroom detached house for sale in Rookery Lane,
Rainford,
St Helens,
Merseyside,
WA11 8EQ, WA11 — £362,995 • 4 bed • 1 bath • 796 ft²
2 bedroom semi-detached house for sale in Rookery Lane,
Rainford,
St Helens,
Merseyside,
WA11 8EQ, WA11 — £229,995 • 2 bed • 1 bath • 580 ft²
3 bedroom detached house for sale in Higher Lane,
Rainford,
St Helens,
Merseyside,
WA11 8EQ, WA11 — £350,995 • 3 bed • 1 bath • 615 ft²
2 bedroom semi-detached house for sale in Rookery Lane,
Rainford,
St Helens,
Merseyside,
WA11 8EQ, WA11 — £234,995 • 2 bed • 1 bath • 580 ft²
4 bedroom detached house for sale in Rookery Lane,
Rainford,
St Helens,
Merseyside,
WA11 8EQ, WA11 — £396,995 • 4 bed • 1 bath • 808 ft²










































