Freehold village plot with full consent for a two-bed bungalow and garage..
- Full planning consent for two-bed bungalow and detached garage (S24/1161)
- Freehold plot, approx. 0.25–0.29 acres (subject to survey)
- Services not connected; water and electricity adjacent to plot
- Mains sewage available in the village; buyer to confirm connections
- Quiet village location between Sleaford and Bourne, low crime
- New-build single-storey appeal — good for downsizers or small families
- Broadband and mobile signal average; no flood risk recorded
- Price £150,000; purchasers should commission survey and searches
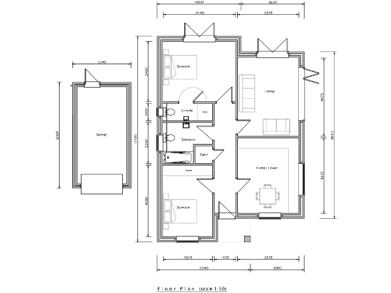
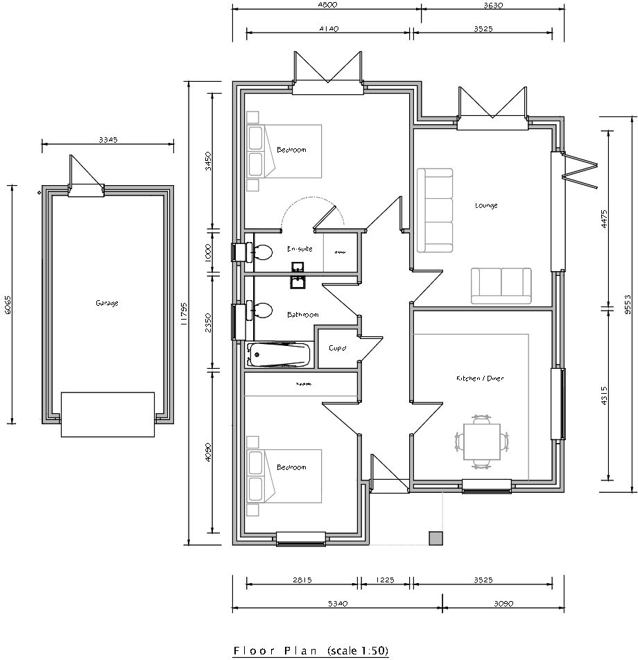
A rare opportunity to buy a freehold residential building plot on the southern edge of Pickworth with full planning consent for a two-bedroom detached bungalow and detached single garage (South Kesteven DC, S24/1161, granted 24 June 2025). The plot is level, screened by mature trees and offers predominantly rural and wooded views — an attractive setting for a single-storey home or downsizer seeking privacy and easy maintenance.
The approved design provides a compact, single-storey layout: two bedrooms (one en-suite), lounge, kitchen/diner and family bathroom, plus a detached garage and private driveway. The planned footprint is modest while the surrounding grounds are generous, giving scope for a manageable garden, home parking and simple landscaping to suit country living.
Services are available close to the site but are not connected; water and electricity run in front of the plot and mains sewage serves the village. Prospective buyers should arrange their own connections and confirm costs, and a formal survey is recommended to verify the quoted plot area (approx. 0.25–0.29 acres). EPC is not applicable to land and the site carries no known flood risk.
This plot will suit buyers wanting a new-build bungalow in a quiet village between Sleaford and Bourne — ideal for downsizers or those seeking a rural bolt-hole with low local crime and good nearby primary schools. The location offers access to local amenities in Folkingham and easy road links to Grantham, Sleaford and surrounding towns.
Residential development for sale in Building Plot off West Road, Pointon, NG34 — £99,500 • 1 bed • 1 bath
Plot for sale in 25 High Street, Helpringham, Sleaford, Lincolnshire, NG34 — £120,000 • 1 bed • 1 bath
Residential development for sale in Residential Development Land, Millthorpe, Nr Pointon, NG34 — £325,000 • 1 bed • 1 bath • 2012 ft²
Plot for sale in Building Plot, adj to 9 Ancaster Drive, Sleaford, NG34 — £95,000 • 1 bed • 1 bath
Land for sale in Church View, Aunsby Road, Aunsby, Sleaford, NG34 — £110,000 • 3 bed • 1 bath
Land for sale in High Street, Helpringham, NG34 — £75,000 • 1 bed • 1 bath






































