**Standout Features:**
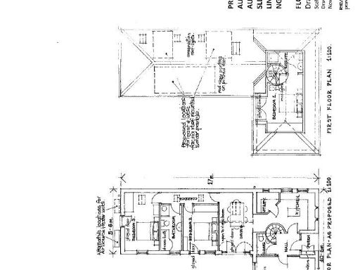
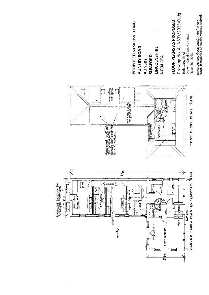
- Outline planning permission granted for a 3-bedroom detached home (reference: 24/0248/OUT).
- Large plot size within a harmonious hamlet setting.
- Scenic views of the historic 12th-century St Thomas of Canterbury church.
- Garage included for parking or storage.
- Potential for a modern bungalow design, reflecting contemporary Lincolnshire architecture.
**Potential Concerns:**
- Situated in a remote community, which may limit immediate access to amenities.
- Average mobile and broadband signal; consider local connectivity needs.
- Nearby schools have mixed Ofsted ratings, which may influence family decisions.
Embrace the chance to create your dream home with this unique building plot, featuring outline permission for a stylish 3-bedroom bungalow in a picturesque hamlet. Surrounded by stunning countryside views, including the captivating Gothic Revival church, this property promises privacy and tranquility while remaining connected to community amenities.
This rare opportunity is ideal for first-time buyers looking to build a family home or investors aiming for future rental potential. The spacious plot allows for personalized design while ensuring a comfortable living environment. Although the area is more secluded, the community offers a welcoming atmosphere. Don't miss the chance to secure such a promising investment in a desirable location—this won't last long!
Plot for sale in 25 High Street, Helpringham, Sleaford, Lincolnshire, NG34 — £120,000 • 1 bed • 1 bath
Land for sale in High Street, Helpringham, NG34 — £75,000 • 1 bed • 1 bath
Plot for sale in Swinstead Road, Irnham, NG33 — £450,000 • 3 bed • 2 bath • 3200 ft²
Land for sale in Queensway, Ruskington, Sleaford, Lincolnshire, NG34 — £130,000 • 1 bed • 1 bath • 364 ft²
Land for sale in Plot Adj, 121 Main Street, Dorrington, Lincoln, Lincolnshire, LN4 — £90,000 • 1 bed • 1 bath • 850 ft²
Residential development for sale in Building Plot off West Road, Pointon, NG34 — £99,500 • 1 bed • 1 bath


























