**Standout Features:**
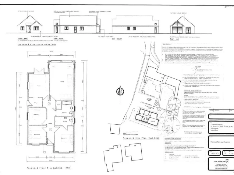
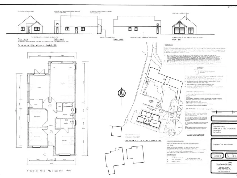
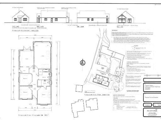
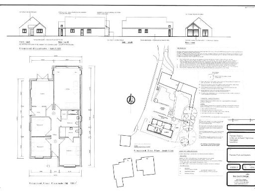
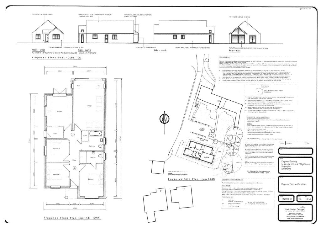
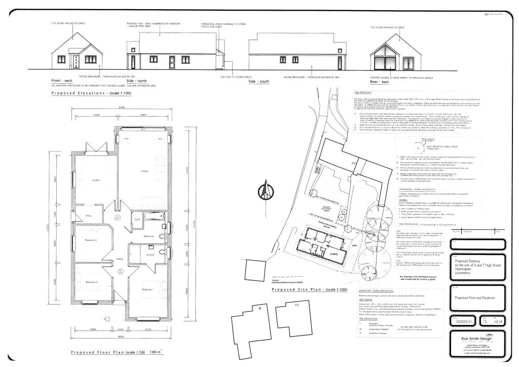
- Full planning permission approved for a 3-bedroom detached bungalow (Ref: 22/0448/FUL).
- Positioned in a quiet village setting of Helpringham, offering a blend of natural surroundings with community amenities.
- Approved floorplan includes spacious living room, kitchen, utility space, family bathroom, and master bedroom with en suite.
- Mature trees and green landscaping provide a serene and private plot, suitable for custom design.
**Summary:**
Seize the opportunity to develop your dream home in Helpringham with this generous-sized plot, now available for just £75,000. With full planning permission in place for a contemporary 3-bedroom detached bungalow, the property is ready for your innovative touch. The proposed design aligns beautifully with the village's character, featuring an open layout including a living room, kitchen, and a master suite with an en suite.
Enjoy the peaceful community vibe surrounded by greenery and rich local amenities, including good rated schools, pubs, and places of worship. This plot not only presents a chance to build a home but also an investment in a growing and low-crime area with fast broadband access. Don’t miss out on this rare opportunity – schedule a viewing today to explore the potential of your new residence!
Plot for sale in 25 High Street, Helpringham, Sleaford, Lincolnshire, NG34 — £120,000 • 1 bed • 1 bath
Land for sale in Church View, Aunsby Road, Aunsby, Sleaford, NG34 — £110,000 • 3 bed • 1 bath
Plot for sale in High Street, Billinghay, LN4 — £350,000 • 1 bed • 1 bath
Plot for sale in Building Plot, adj to 9 Ancaster Drive, Sleaford, NG34 — £95,000 • 1 bed • 1 bath
Land for sale in Land to the South of Long Acre, NG34 — £150,000 • 2 bed • 1 bath
Land for sale in High Street, Ropsley, Grantham, NG33 — £120,000 • 1 bed • 1 bath






































