**Standout Features:**
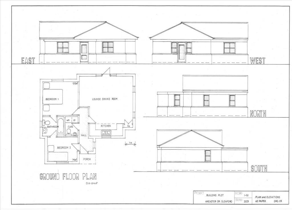
- Residential building plot with full planning permission for a Two-Bedroom Detached Bungalow
- Approximate size of 275 square meters
- Located in a popular and expanding market town, Sleaford
- Conveniently close to local amenities and schools
- Access to all utilities available
- Low crime rate, creating a safe living environment
- Expansive outdoor space with potential for landscaping
**Summary:**
Seize this rare opportunity to acquire a prime building plot in the highly sought-after area of Sleaford, perfect for those looking to create their dream home. With planning permission in place for a Two-Bedroom Detached Bungalow, the approximately 275 sq. m. site offers ample space and flexibility for future development. Enjoy the convenience of being close to local amenities including shops, schools, and leisure facilities, all within easy reach.
This plot sits in a tranquil residential neighborhood, making it ideal for families and first-time buyers alike. Current condition reveals some overgrown areas that can be transformed to enhance your outdoor living space, providing a unique chance for you to create a beautiful garden. While the plot's natural state may require initial landscaping, the potential for personalization is limitless. Don’t miss out on this opportunity; it’s an ideal time to invest in your future.
Property for sale in Building Plot - East of 12 West Road, Pointon, NG34 — £99,500 • 1 bed • 1 bath • 505 ft²
Plot for sale in Watergate, Sleaford, Lincolnshire, NG34 — £67,000 • 1 bed • 1 bath
Property for sale in Kirkby Underwood Road, Aslackby, NG34 — £175,000 • 1 bed • 1 bath
Plot for sale in Building Plot, Adj To 17 London Road, Osbournby, NG34 — £110,000 • 1 bed • 1 bath • 4417 ft²
Land for sale in Land to the South of Long Acre, NG34 — £150,000 • 2 bed • 1 bath
Land for sale in High Street, Helpringham, NG34 — £75,000 • 1 bed • 1 bath










































