Bright open-plan living with a large garden and off-street parking.
New-build semi-detached with solar panels and contemporary finishes
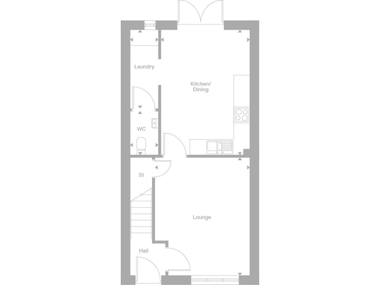
This three-bedroom new-build semi-detached home offers modern, energy-efficient living with contemporary finishes and solar panels. The open-plan kitchen/diner with French doors leads directly to a generous rear plot, creating a bright family hub and strong potential for outdoor living or garden landscaping.
Internally the layout is compact at about 699 sqft, with a 14ft lounge, separate laundry and downstairs WC, plus built-in storage upstairs. There is just one family bathroom, so families should consider bathroom scheduling or the potential to reconfigure space.
Practical benefits include off-street parking, freehold tenure and a modest annual service charge of £137. Drawbacks to note: the property sits in an area with very high recorded crime rates and broadband speeds are reported as slow — both important for daily life and working from home.
Overall this house will suit first-time buyers or small families seeking a low-maintenance, turn-key new home with strong energy credentials and a large garden to personalise. Buyers who prioritise fast home broadband, multiple bathrooms, or a quieter crime profile should weigh these factors before viewing.
3 bedroom detached house for sale in North Road,
Stevenage,
SG1 4BB, SG1 — £500,000 • 3 bed • 1 bath • 702 ft²
3 bedroom semi-detached house for sale in North Road,
Stevenage,
SG1 4BB, SG1 — £443,000 • 3 bed • 1 bath • 624 ft²
3 bedroom detached house for sale in North Road,
Stevenage,
SG1 4BB, SG1 — £513,000 • 3 bed • 1 bath • 618 ft²
4 bedroom detached house for sale in North Road,
Stevenage,
SG1 4BB, SG1 — £635,000 • 4 bed • 1 bath • 878 ft²
3 bedroom semi-detached house for sale in North Road,
Stevenage,
SG1 4BB, SG1 — £505,000 • 3 bed • 1 bath • 702 ft²
5 bedroom detached house for sale in North Road,
Stevenage,
SG1 4BB, SG1 — £795,000 • 5 bed • 1 bath • 1150 ft²










































