Bright new build with generous outside space and garage option, suited to families..
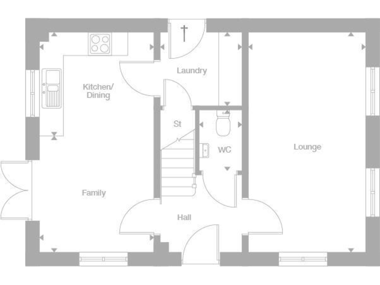
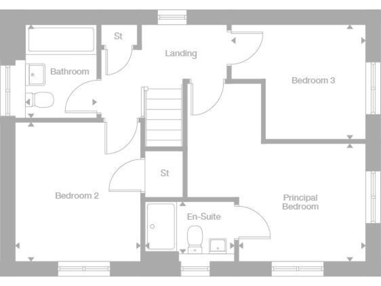
- New-build three-bedroom house with en-suite principal bedroom
- Open-plan kitchen/diner with French doors to garden
- Compact internal size: 618 sq ft (small overall)
- Huge plot with selected garage or parking options
- Separate laundry room and downstairs WC for practicality
- Freehold tenure; annual service charge £137 and £1,000 reservation fee
- Very high local crime level — factor into location choice
- Slow broadband speeds despite excellent mobile signal
Light-filled and newly built, this three-bedroom home offers efficient modern living across a compact 618 sq ft layout. Dual-aspect lounge and open-plan kitchen/diner with French doors create an airy ground-floor family space, while a separate laundry room and downstairs WC add practical convenience. The principal bedroom includes an en-suite and bedroom three is well suited as a home office.
Externally the plot is unusually large for the development, and selected plots include a single garage or parking — useful for families or buyers wanting outside space. The property is freehold with an annual service charge of £137 and a reservation fee of £1,000; council tax band is TBC.
Be aware of two material constraints: the internal floor area is small for a three-bedroom home, and the local area records very high crime levels. Broadband speeds are reported as slow despite excellent mobile signal and proximity to schools and leisure amenities. Overall this is a practical new-build option for buyers prepared to balance compact internal space with generous outdoor plot and low running service costs.
3 bedroom detached house for sale in North Road,
Stevenage,
SG1 4BB, SG1 — £500,000 • 3 bed • 1 bath • 702 ft²
3 bedroom semi-detached house for sale in North Road,
Stevenage,
SG1 4BB, SG1 — £505,000 • 3 bed • 1 bath • 702 ft²
3 bedroom semi-detached house for sale in North Road,
Stevenage,
SG1 4BB, SG1 — £423,000 • 3 bed • 1 bath • 699 ft²
3 bedroom semi-detached house for sale in North Road,
Stevenage,
SG1 4BB, SG1 — £443,000 • 3 bed • 1 bath • 624 ft²
4 bedroom detached house for sale in North Road,
Stevenage,
SG1 4BB, SG1 — £650,000 • 4 bed • 1 bath • 878 ft²
4 bedroom detached house for sale in North Road,
Stevenage,
SG1 4BB, SG1 — £665,000 • 4 bed • 1 bath • 540 ft²






























































