SG1 4BB - 3 bed modern three bedroom home in Stevenage, SG1 4BB

View on Property Piper

3 bedroom semi-detached house for sale in North Road, Stevenage, SG1 4BB, SG1

Summary - STEVENAGE SPORTS CLUB, NORTH ROAD SG1 4BB

3 bed 1 bath Semi-Detached

Energy-efficient new build with garden and parking, ideal for first-time buyers.
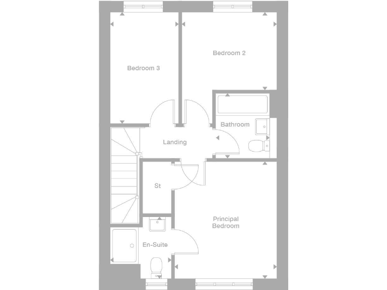
- Compact internal size: approximately 624 sq ft
- Open-plan kitchen/diner with French doors to garden
- Principal bedroom with en-suite and built-in storage
- Bedroom 3 suitable as a home study
- Off-street parking and a very large plot outside
- 10-year NHBC warranty and solar panels included
- Broadband speeds are slow; not ideal for heavy home working
- Local area records very high crime rates
A modern three-bedroom semi-detached home with an open-plan kitchen/diner and French doors to a private garden. The compact 624 sq ft layout is efficient: a 15ft lounge, downstairs WC and built-in storage suit first-time buyers or small families seeking low-maintenance new build living. The property is covered by a 10-year NHBC warranty and includes energy-efficient features such as solar panels.

Upstairs the principal bedroom has an en-suite and generous built-in storage; bedroom three is a convenient study or single room. Off-street parking and a large plot provide practical outdoor space despite the modest internal floor area.

Location benefits include quick A1(M) access and fast train links to London, nearby shops, sports facilities and several well-rated schools. However, note the area records very high crime levels and broadband speeds are slow; weigh these factors if remote working or security are priorities.

A low annual service charge of £137 is payable. The home is an attractive, energy-efficient new build for buyers seeking modern fixtures and low short-term maintenance, but the compact interior and local crime statistics are material considerations.

Property Details

Brochure Descriptions

Image Descriptions

Floorplan Description

Rooms

Textual Property Features

Target Audience

AI Tags

Detected Visual Features

Nearby Schools

Nearest Bars And Restaurants

,,,,}

Nearest General Shops

,,}

Nearest Grocery shops

,,}

Nearest Supermarkets

,,}

Nearest Religious buildings

,,}

Nearest Medical buildings

,,,}

Nearest Airports

,}

Nearest Leisure Facilities

,,,,}

Nearest Tourist attractions

,,}

Nearest Train stations

,,,,}

Nearest Bus stations and stops

,,,,}

Nearest Hotels

,,}

Tags

Local Market Stats

AirBnB Data

Similar Properties

Meta

High Res Images

Compatible Images

Low res Images

Thumbnails

Raw Images

High Res Floorplan Images

Compatible Floorplan Images

Low res Floorplan Images

FloorplanImages Thumbnail

Raw Floorplan Images