Well-specified new build on a large plot with practical family layout.
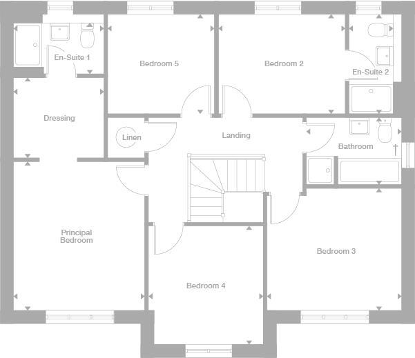
Five bedrooms, principal with dressing area and en suite
This five-bedroom detached new-build offers family-focused living with a generous plot and modern finishes. The home centres on an open-plan kitchen, dining and family room with French doors to the garden, complemented by a separate lounge, private study and useful laundry room. The principal bedroom includes a dressing area and en suite, and a second bedroom also benefits from an en suite.
Internally the accommodation is contemporary and well laid out for daily life and entertaining. Practical features include a downstairs WC, separate family bathroom with shower, LED-lit kitchen with integrated appliances, and a double garage for parking and storage. The property is freehold with a modest annual service charge of £137.
Buyers should note some material points: the advertised internal area (approx. 1,150 sq ft) is relatively compact for a five-bedroom home, so some rooms are smaller than might be expected. Broadband speeds in the area are reported as slow and the local recorded crime level is very high, which may be a consideration for families. Council tax banding is TBC. Overall, this is a well-specified, modern family house with strong practical benefits but certain neighbourhood and size compromises to consider.
4 bedroom detached house for sale in North Road,
Stevenage,
SG1 4BB, SG1 — £635,000 • 4 bed • 1 bath • 878 ft²
3 bedroom detached house for sale in North Road,
Stevenage,
SG1 4BB, SG1 — £515,000 • 3 bed • 1 bath • 702 ft²
3 bedroom detached house for sale in North Road,
Stevenage,
SG1 4BB, SG1 — £513,000 • 3 bed • 1 bath • 618 ft²
3 bedroom detached house for sale in North Road,
Stevenage,
SG1 4BB, SG1 — £500,000 • 3 bed • 1 bath • 702 ft²
4 bedroom detached house for sale in North Road,
Stevenage,
SG1 4BB, SG1 — £720,000 • 4 bed • 1 bath
3 bedroom semi-detached house for sale in North Road,
Stevenage,
SG1 4BB, SG1 — £505,000 • 3 bed • 1 bath • 702 ft²






























































































































































