**Standout Features:**
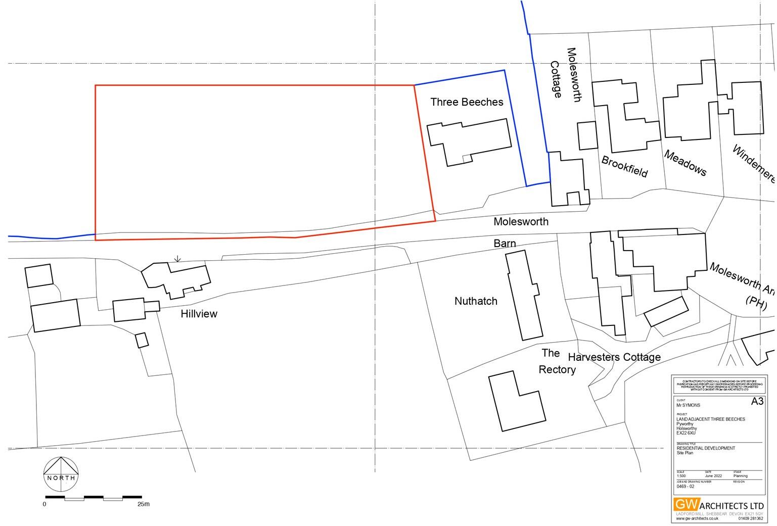
- Reserved matters planning permission granted for 4 detached bungalows.
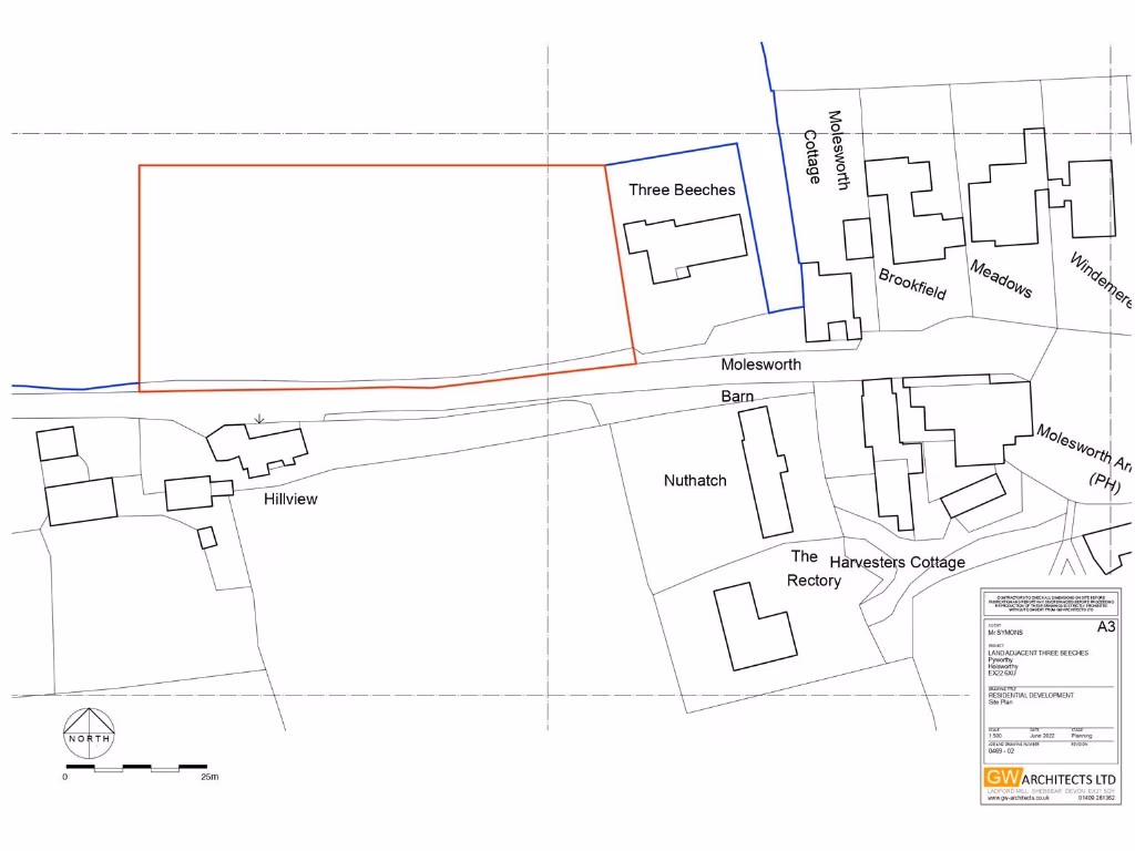
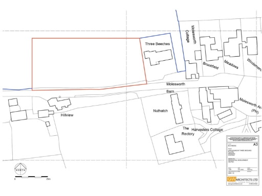
- Prime rural location in the sought-after village of Pyworthy, less than 9 miles from the coast.
- Backing onto expansive open farmland with stunning countryside views.
- No Community Infrastructure Levy (CIL) fees to pay.
- Additional land available for purchase through separate negotiation.
- Excellent local community with strong resale potentials.
**Summary:**
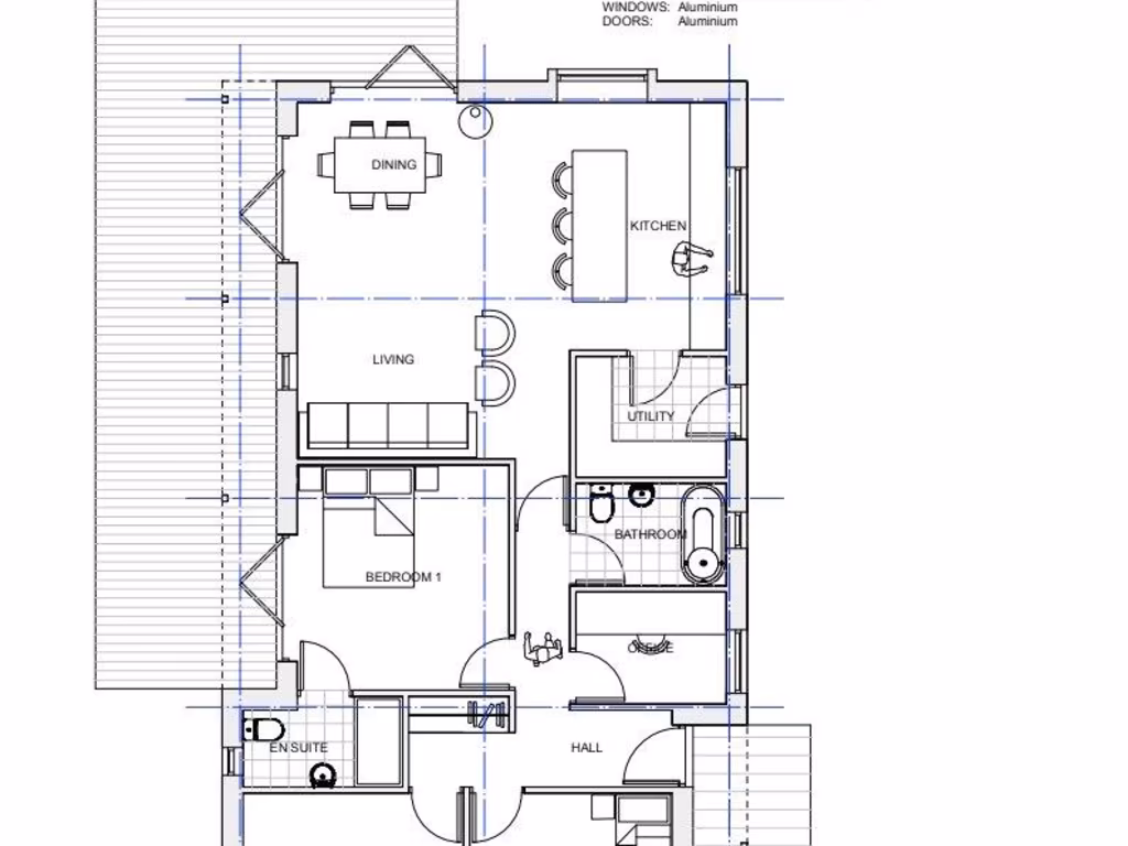
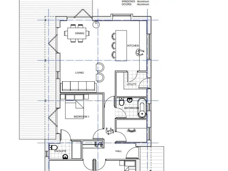
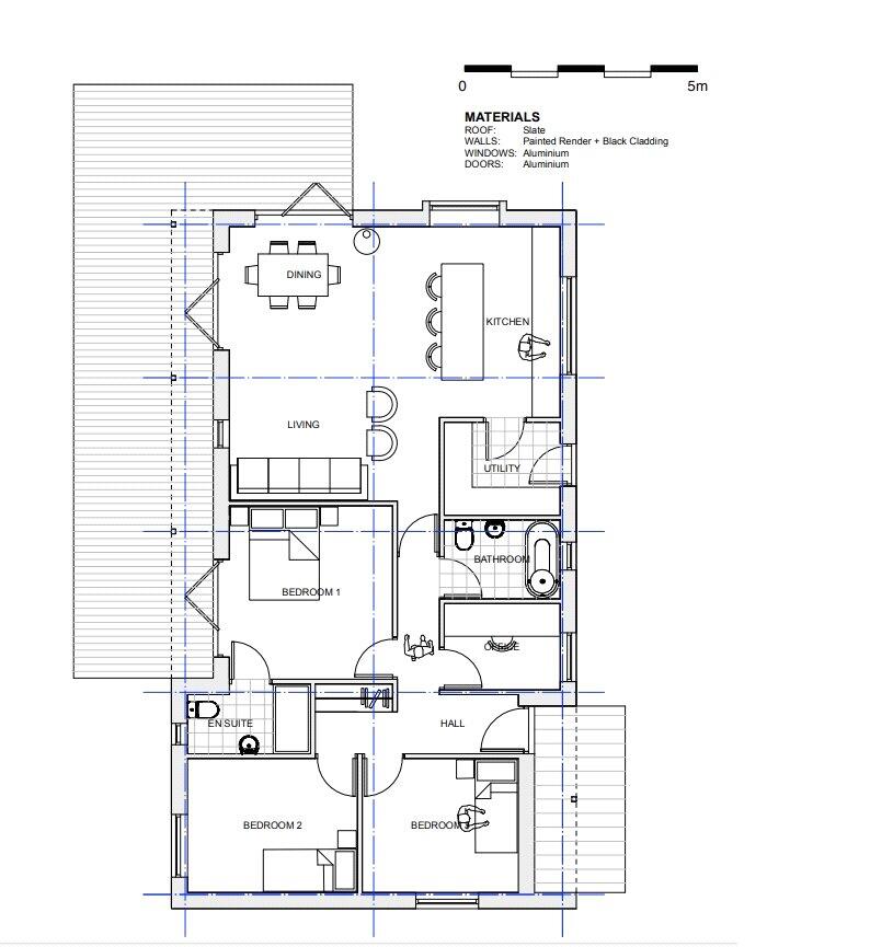
Seize the opportunity to develop four detached bungalows in the charming village of Pyworthy, EX22 6XU. This generously-sized plot—level with a gentle slope—offers a unique canvas for creating spacious homes, each designed with open-plan living areas that boast bi-fold doors and picturesque countryside views. The master suites will feature ensuites, complemented by additional bedrooms, a family bathroom, a study, and a utility room for modern convenience.
Positioned in a serene, agricultural setting yet within convenient reach of Holsworthy's amenities, this development site combines tranquility with community spirit. With no CIL to worry about, you can maximize your investment as you build in this vibrant area with excellent local facilities, including schools, shops, and leisure activities. Whether you're an investor looking for a lucrative project or a developer seeking a serene setting, this plot promises incredible potential. Don’t miss your chance—secure your piece of rural paradise today!
Plot for sale in Bridgerule, Holsworthy, Devon, EX22 — £425,000 • 1 bed • 1 bath
Plot for sale in Pancrasweek, Holsworthy, Devon, EX22 — £250,000 • 8 bed • 1 bath
Plot for sale in Poundstock, Bude, Cornwall, EX23 — £575,000 • 1 bed • 1 bath
4 bedroom detached house for sale in Poundstock, Bude, Cornwall, EX23 — £350,000 • 4 bed • 1 bath
Plot for sale in Dobles Lane, Holsworthy, Devon, EX22 — £275,000 • 1 bed • 1 bath
3 bedroom detached house for sale in Cookbury, Holsworthy, Devon, EX22 — £100,000 • 3 bed • 2 bath






























