Full planning granted for two 4‑bed semis in peaceful Devon countryside, utilities nearby..
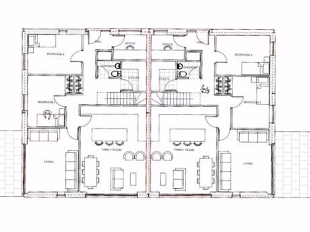
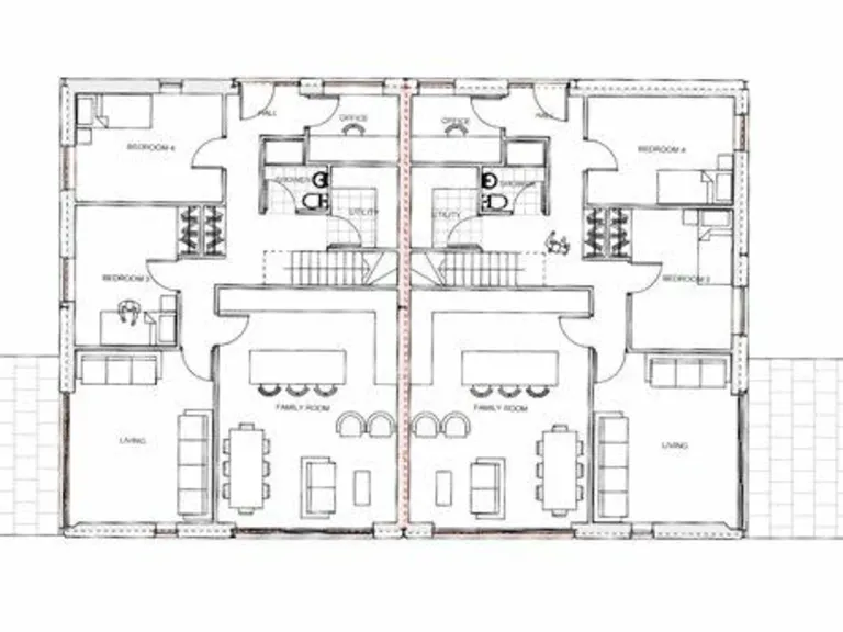
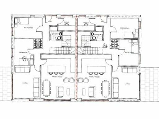
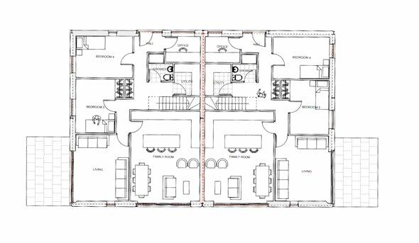
Full planning consent for two semi‑detached 4‑bed homes (application 1/0512/2024/FUL)
A rare rural development opportunity on the edge of Pancrasweek with full planning consent for two semi‑detached four‑bed homes. The site is level with provision for private drainage already made; electricity and water are reported to be in the vicinity but purchasers must verify connections and costs. Torridge District Council granted planning (1/0512/2024/FUL) on 26 July 2024 with matters reserved — development must commence within three years.
Set in a remote hamlet, the plot offers open countryside views and easy road access to Holsworthy (c.5–6 miles) and Bude (c.8 miles), appealing to buyers seeking a rural lifestyle or a small-scale development for sale or owner occupation. The local area is classified as remoter/agricultural with very low crime, but public services are limited: broadband speeds are very slow and mobile signal is only average.
This is best suited to a developer, investor or self‑builder who can manage the reserved matters and service connections. The site has conversion/extension potential around the existing barn/outbuilding, but purchasers should allow budget and time for service connections, reserved‑matters approval details, and rural build costs. The price reflects the planning consent and rural location but also the additional work required to bring the scheme to completion.
2 bedroom detached house for sale in Welcombe, Bideford, North Devon, EX39 — £350,000 • 2 bed • 1 bath
Land for sale in Holsworthy, EX22 — £200,000 • 4 bed • 2 bath • 2324 ft²
Detached house for sale in Cann Orchard, Stratton, Bude, Cornwall, EX23 — £350,000 • 1 bed • 1 bath
Plot for sale in Cookbury, Holsworthy, Devon, EX22 — £150,000 • 1 bed • 1 bath
Plot for sale in Hartland, Bideford, Devon, EX39 — £195,000 • 1 bed • 1 bath
Plot for sale in Welcombe, Bideford, Devon, EX39 — £250,000 • 1 bed • 1 bath


























