Versatile hybrid workspace near M4 junction 29, ideal for light industrial users.
- 156.5 sq.m (1,684 sq.ft) combined office and warehouse
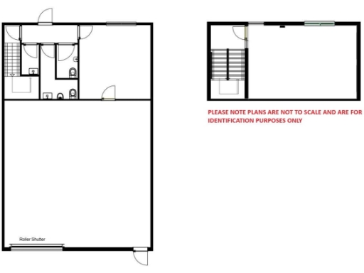
A versatile two-storey hybrid workspace offering 156.5 sq.m (1,684 sq.ft) of combined office and warehouse with a glazed ground-floor entrance and rear roller shutter loading. The unit benefits from high eaves in the warehouse, suspended ceilings and Category 5 lighting in offices, plus a fully fitted kitchen and male, female and disabled W.C. facilities. Four allocated car parking spaces and a small landscaped forecourt sit to the front, with a dedicated rear loading yard.
Positioned within an established 75-acre landscaped business park approximately four miles east of Cardiff city centre, the property has swift road access to the M4 (J29) and is close to Cardiff rail freight facilities, making it suitable for light industrial, storage or trade counter uses. Mobile signal is excellent, which supports modern communications needs.
Buyers should note material considerations: the wider area has a high crime rate and is classified as very deprived, broadband speeds are slow, and a service charge applies for common estate costs. Tenure details are mixed in the information supplied (listed as freehold but brochure also references long leasehold); interested parties should verify tenure and any VAT or rate liabilities before offer. The unit presents straightforward potential for occupiers or investors seeking a well-specified industrial/office hybrid with good transport links and immediate usability.
Distribution warehouse for sale in Unit 1, Mellyn Mair Business Centre, Wentloog Avenue, Lamby Industrial Park, Cardiff, CF3 2EX, CF3 — POA • 1 bed • 1 bath • 3578 ft²
Warehouse for sale in Wroughton Place, Ely, Cardiff, CF5 4AB, CF5 — POA • 1 bed • 1 bath • 14856 ft²
Office for sale in Unit 7, Oak Tree Court, Mulberry Drive, Cardiff CF23 8RS, CF23 — £535,000 • 1 bed • 1 bath • 4298 ft²
Business park for sale in Unit 4 Melyn Mair, Wentloog, Cardiff CF3 2EX, CF3 — £260,000 • 1 bed • 1 bath • 3532 ft²
Distribution warehouse for sale in Millgrove House, Parc Ty Glas, Llanishen, CF14 5DU, CF14 — POA • 1 bed • 1 bath • 20101 ft²
Warehouse for sale in Modern Industrial Site, Unit 1 Lakeside, Fountain Lane, Cardiff, CF3 0FB, CF3 — £2,000,000 • 1 bed • 1 bath


























































