Substantial freehold unit with excellent M4 access and 18 parking spaces.
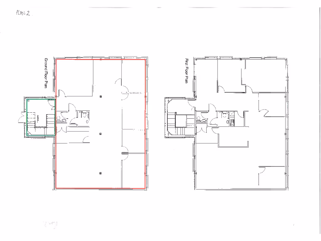
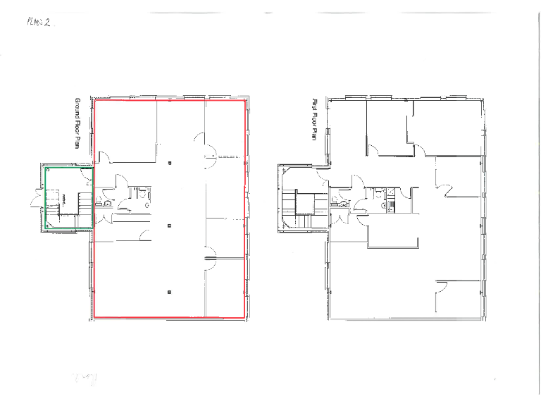
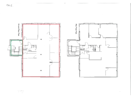
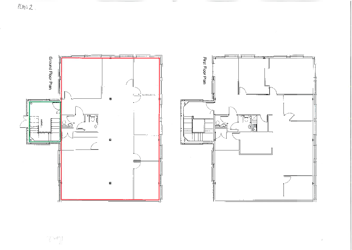
Freehold two-storey office, 4,298 sq ft
A substantial two-storey office extending to 4,298 sq ft in Cardiff Gate International Business Park, offered freehold and finished to a practical, high-specification standard. The building includes air conditioning, gas-fired central heating, suspended ceilings with recessed lighting, double glazing, a kitchen and separate male and female WCs — suitable for an owner-occupier or a long-term income investment.
The site includes 18 allocated car parking spaces and direct access to the M4 corridor via Junction 30, placing major road links and Cardiff city centre within a short drive. Existing neighbouring occupiers include professional and blue-chip companies, supporting tenant demand for good-quality office accommodation in the park.
Buyers should note material considerations: broadband speeds on site are very slow, the immediate area records above-average crime figures and is described as very deprived. These factors may affect tenant mix, lease rates and certain occupier requirements. The property’s size, freehold tenure and parking provision, however, present clear potential for refurbishment, subdivision or occupation by a single business needing substantial workspace.
Office for sale in Ty Derw, Lime Tree Court, Cardiff Gate Business Park, Cardiff, CF23 8AB, CF23 — £1,400,000 • 1 bed • 1 bath • 10092 ft²
Office for sale in Peterson House, Malthouse Avenue, Cardiff(City), CF23 — £1,000,000 • 1 bed • 1 bath
Office for sale in Unit 5, Ynysbridge Court, Gwaelod Y Garth, Cardiff, CF15 9SS, CF15 — £250,000 • 1 bed • 1 bath • 1833 ft²
Office for sale in Unit 9, Columbus Walk, Unit 9, Columbus Walk, Cardiff, CF10 4BY, CF10 — £225,000 • 1 bed • 1 bath • 2050 ft²
Office for sale in 25 Park Place, Cardiff CF10 3BA, CF10 — £650,000 • 1 bed • 1 bath • 4346 ft²
Office for sale in Elfed House, Oak Tree Court, Mulberry Drive, Cardiff Gate Business Park, Cardiff, CF23 8RS, CF23 — £715,000 • 1 bed • 1 bath • 6324 ft²














