Income-producing town-centre flat with tenant and parking, ideal for portfolio buyers.
- Two-bedroom flat producing £6,000 gross per year
- Freehold title with private off-street driveway parking
- Small overall size ~517 sq ft; compact living spaces
- Long-term tenant currently in situ; income immediate
- Corner mixed-use block above commercial premises
- External signs of maintenance need and possible damp
- Area classed as very deprived; consider growth implications
- Buyers’ premium applies to secure purchase
This compact two-bedroom flat in Northfield Court, West Calder, is offered as a buy-to-let with a long-term tenant in situ. The property is freehold, comes with private off-street driveway parking, and currently generates a gross annual income of approximately £6,000, making it of clear interest to investors seeking immediate yield and low-management occupancy.
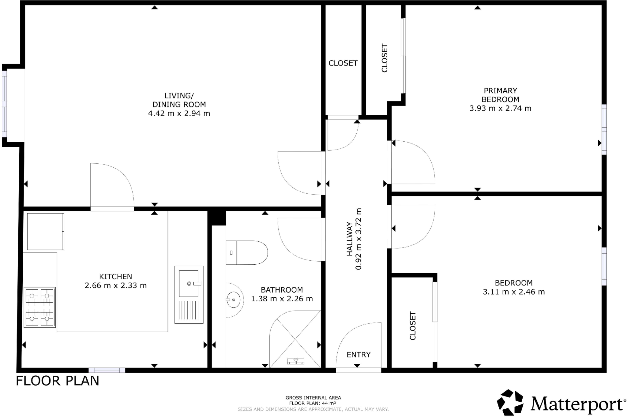
The flat is small (circa 517 sq ft) with an open-plan living/dining area, fitted kitchen and a three-piece bathroom. Broadband speeds are fast and mobile signal is excellent. The building is a corner, mixed-use block above commercial units; the external condition appears average but internal condition should be verified – on the marketing artwork there are signs the building needs maintenance and possible damp investigation.
Key positives are central town location with nearby amenities, existing tenancy producing income, private driveway parking and freehold tenure. Key drawbacks: limited internal floor area, likely need for internal inspection and remedial works (maintenance/damp signs noted), the area is classified as very deprived which can affect capital growth, and a buyers’ premium applies to secure purchase.
This is best suited to investors or developers looking for an income-producing, small-footprint town-centre flat with immediate cashflow. Serious purchasers should review the Let Property Pack and tenancy papers, and carry out a full survey and damp/structural inspection before committing.
2 bedroom flat for sale in Haymarket Crescent, Livingston, EH54 — £120,000 • 2 bed • 1 bath • 538 ft²
2 bedroom flat for sale in Raeburn Crescent, Bathgate, EH47 — £85,000 • 2 bed • 1 bath • 721 ft²
2 bedroom flat for sale in Victoria Street, Livingston, West Lothian, EH54 — £60,000 • 2 bed • 1 bath • 700 ft²
1 bedroom flat for sale in Park View, Stoneyburn, Bathgate, EH47 — £56,000 • 1 bed • 1 bath • 301 ft²
2 bedroom flat for sale in Northfield Court, West Calder, EH55 — £105,000 • 2 bed • 1 bath • 517 ft²
2 bedroom flat for sale in Leven Walk, Livingston, West Lothian, EH54 — £60,000 • 2 bed • 1 bath • 549 ft²






































































































