**Standout Features:**
- 2-bedroom flat in Livingston with off-street shared parking.
- Long-term tenants currently in place, yielding a gross annual income of £6,000.
- Freehold property, making it an appealing buy-to-let opportunity for investors.
- Excellent mobile signal and fast broadband speeds for enhanced convenience.
**Concerns:**
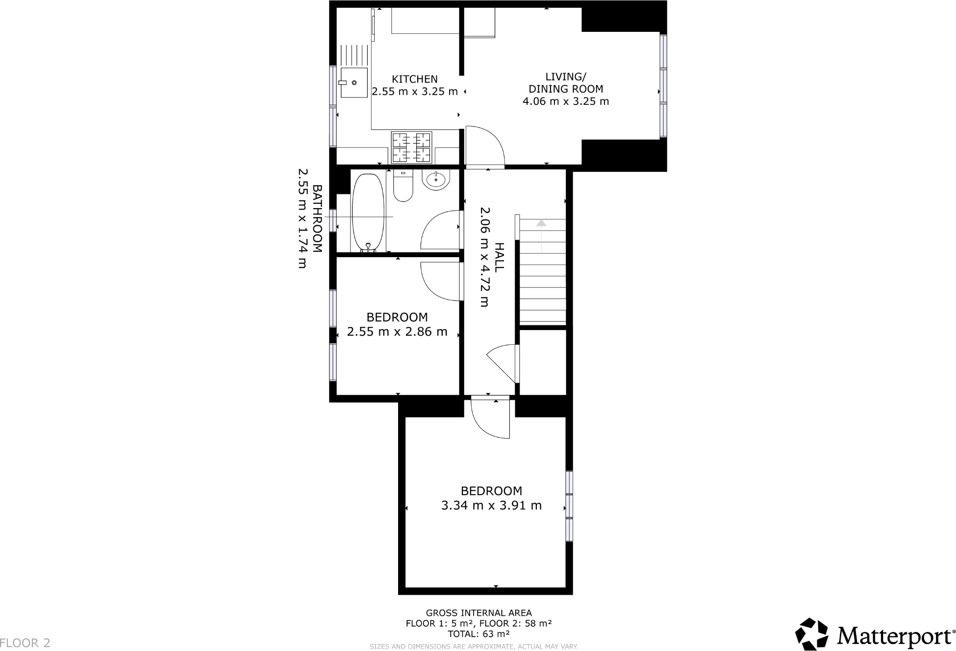
- Small overall size (549 sq ft) with limited room dimensions.
- Maintenance issues highlighted in the living room, such as damp and wear.
- Surrounded by a transitional Eastern European neighborhood that may indicate local challenges.
This 2-bedroom flat on Leven Walk in Livingston presents a remarkable investment opportunity in a growing rental market. With reliable long-term tenants already in residence, this property offers immediate rental income and the potential for appreciation. The home features a compact layout with a lounge, kitchen, and a bathroom, ideal for constrained renters or those seeking affordable living.
The current rental yield and the benefits of a freehold tenure enhance its attractiveness for serious investors looking to expand their portfolios. However, prospective buyers should be aware of some existing maintenance needs, particularly in the living room, along with the overall small size and location in a transitional area. This will suit investors looking for a property that can generate immediate income while also considering future renovation possibilities. Don’t miss your chance to secure this buy-to-let gem—properties like this with built-in cash flow are not on the market for long!
2 bedroom flat for sale in Haymarket Crescent, Livingston, EH54 — £130,000 • 2 bed • 1 bath • 538 ft²
2 bedroom flat for sale in Waverley Crescent, Livingston, EH54 — £128,000 • 2 bed • 1 bath • 667 ft²
3 bedroom flat for sale in Victoria Street, Livingston, West Lothian, EH54 — £70,000 • 3 bed • 1 bath • 678 ft²
2 bedroom flat for sale in Victoria Street, Livingston, West Lothian, EH54 — £60,000 • 2 bed • 1 bath • 700 ft²
2 bedroom flat for sale in Swallow Brae, Livingston, West Lothian, EH54 — £140,000 • 2 bed • 1 bath
2 bedroom apartment for sale in Waverley Crescent, Livingston, West Lothian, EH54 8JP, EH54 — £143,000 • 2 bed • 1 bath • 648 ft²










































































































