AL2 3TW - Plot for sale in Lye Lane, Bricket Wood, AL2

View on Property Piper

Plot for sale in Lye Lane, Bricket Wood, AL2

Summary - Lye Lane, Bricket Wood AL2 3TW

3 bed 3 bath Plot

**Standout Features:**
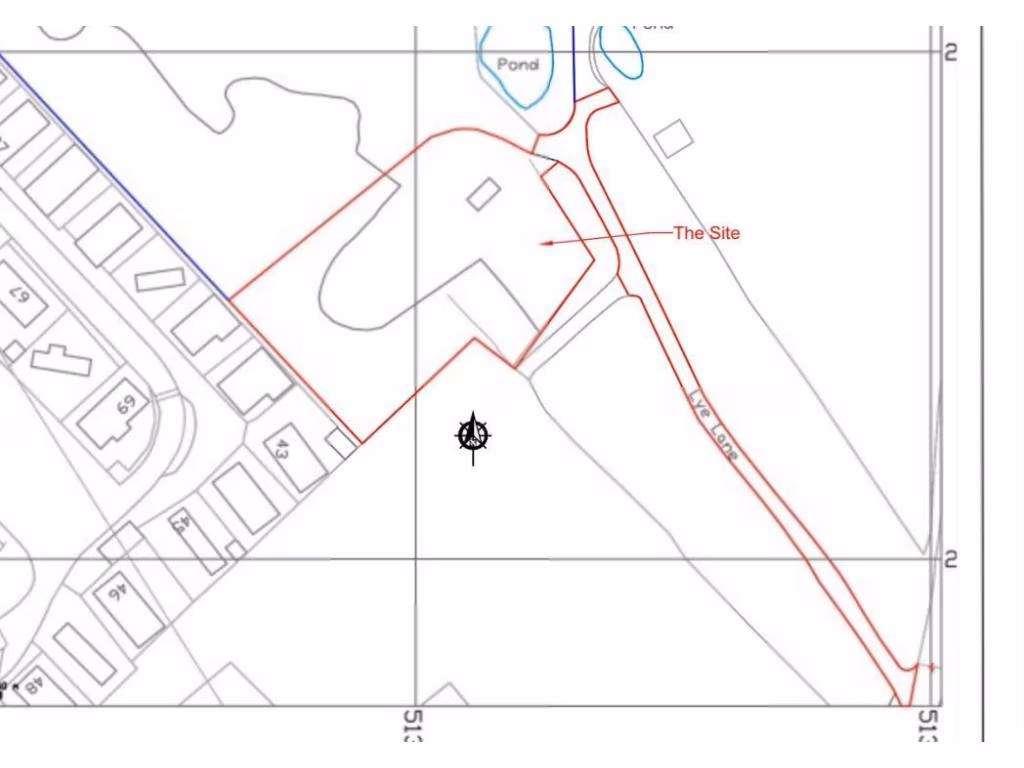
- Generous plot size: Approximately 55 meters x 39 meters
- Approved planning permission for a modern two-storey home (Planning ref: 5/2022/2527)
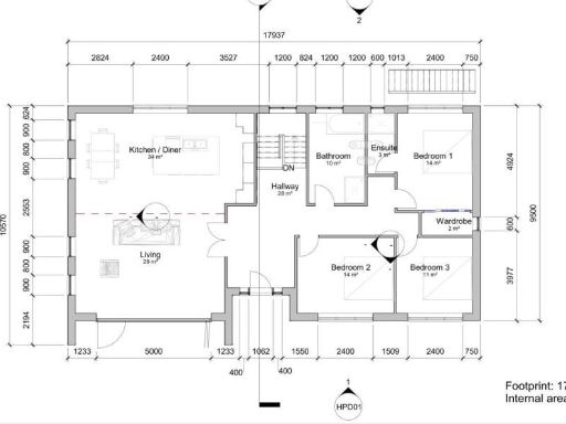
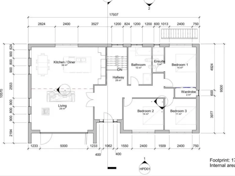
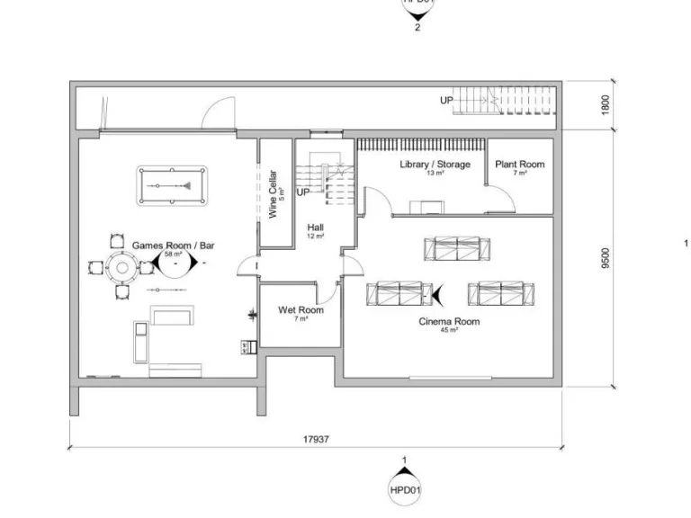
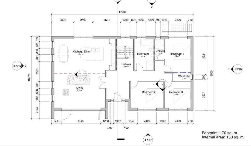
- Spacious proposed living area of approximately 297 sq.m. (3196 sq.ft.)
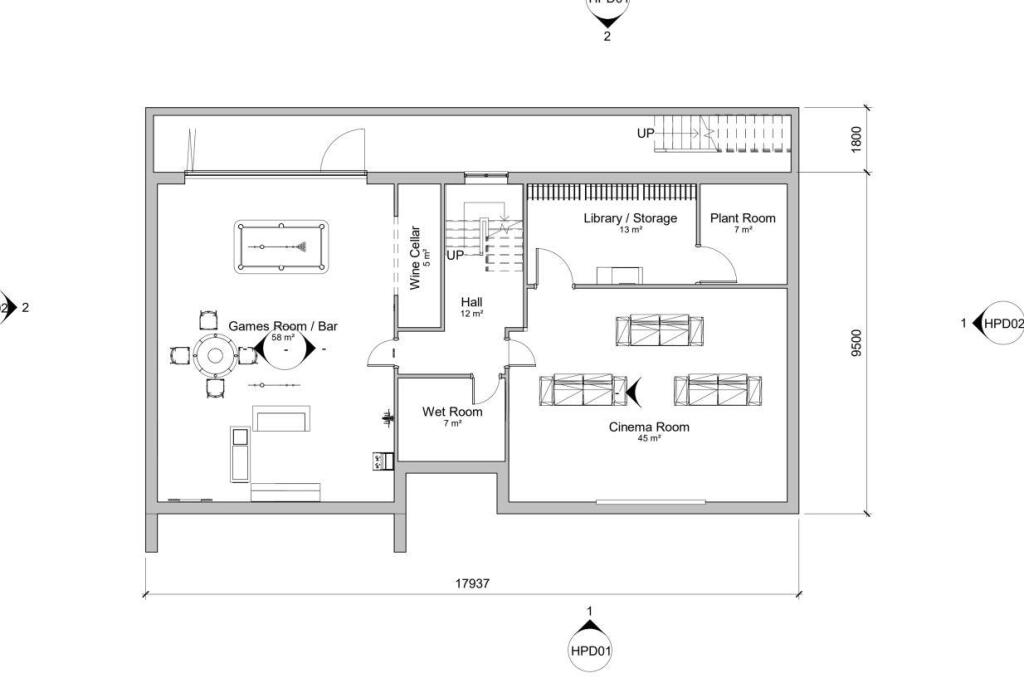
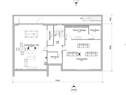
- Features a large kitchen/diner/living room, games room/bar, and cinema room
- Located in a semi-rural, affluent area with excellent local schools nearby
- Gated entrance providing added security and privacy

**Summary:**
Discover a unique opportunity to acquire a substantial plot of land on Lye Lane in Bricket Wood, now available for sale at £950,000. This generous site has approved planning permission to build a stunning modern two-storey home, complete with an impressive lower ground floor that spans nearly 3,200 sq.ft. The envisioned layout includes a remarkable kitchen/diner/living space with bi-folding doors, along with three double bedrooms, an en-suite master, and a stylish cinema room—perfect for family-friendly living or entertaining.

Situated in a tranquil, leafy location, this land offers the ideal balance of privacy and accessibility, making it attractive for families and commuters alike, with easy access to both the M1 and M25 motorways. While the surroundings boast an average crime rate and fast broadband speeds, the area is highly regarded for its educational institutions, including the esteemed Parmiter's School, ensuring quality schooling options.

This plot is not just land; it's an opportunity to create your dream home in a picturesque environment. However, serious buyers should act quickly as such exclusivity in Bricket Wood is rare. Don’t miss the chance to transform this empty canvas into a luxurious residence tailored to your lifestyle.

Property Details

Brochure Descriptions

Image Descriptions

Textual Property Features

Detected Visual Features

Nearby Schools

Nearest Bars And Restaurants

,,,,}

Nearest General Shops

,,}

Nearest Grocery shops

,,}

Nearest Supermarkets

,,}

Nearest Religious buildings

,,}

Nearest Medical buildings

,,,}

Nearest Airports

}

Nearest Leisure Facilities

,,,,}

Nearest Tourist attractions

,,}

Nearest Train stations

,,,,}

Nearest Bus stations and stops

,,,,}

Nearest Hotels

,,}

Tags

Local Market Stats

Similar Properties

Meta

High Res Images

Compatible Images

Low res Images

Thumbnails

Raw Images

High Res Floorplan Images

Compatible Floorplan Images

Low res Floorplan Images

FloorplanImages Thumbnail

Raw Floorplan Images