Rare 2.5-acre greenbelt parcel with strong local amenities and planning caveats.
Approx. 2.5-acre freehold plot with woodland and extensive private grounds
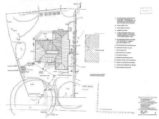
Located in Metropolitan Green Belt and within a Conservation Area
Several trees subject to Tree Preservation Orders (TPOs)
No contamination or soil survey carried out; buyer to investigate
Potential CIL, s106 and affordable housing liabilities on development
No detailed boundary survey undertaken; access and limits to be checked
Low flood risk and low local crime; broadband slow, mobile signal average
Good local schools, rail links and M25 access nearby
This rare freehold parcel of approximately 2.5 acres sits in the Loudwater area of Rickmansworth and offers substantial scope for a purchaser experienced in land projects. The site’s size, private woodland setting and proximity to local amenities make it attractive for a bespoke single residence or a carefully considered redevelopment subject to planning consent.
Important planning constraints and protections apply: the land lies within the Metropolitan Green Belt and a Conservation Area, and a number of trees are covered by Tree Preservation Orders (TPOs). Any development will require full enquiries with the local authority; success is not guaranteed. Purchasers should also factor in potential CIL, s106 contributions and the Three Rivers District Council Affordable Housing requirements.
Practical points are straightforward but material. The plot is freehold, has no buildings, and shows low flood risk and low local crime. There has been no contamination or soil survey, nor a detailed boundary survey, so buyers must commission their own investigations. Broadband speeds are reported slow and mobile signal average — relevant for occupier expectations.
For buyers who understand Green Belt and Conservation Area processes, this site represents a strategic holding with countryside character and strong local amenities nearby: excellent schools, parks and rail links into London. For less experienced buyers, the regulatory and survey requirements are significant and should be resolved before committing.
Land for sale in South Approach, Northwood, HA6 — £100,000 • 1 bed • 1 bath
Land for sale in Dawes Lane, Sarratt, Rickmansworth, Hertfordshire, WD3 6BB, WD3 — £65,000 • 1 bed • 1 bath • 1428 ft²
Land for sale in Chorleywood Road, Rickmansworth, Hertfordshire, WD3 — £480,000 • 1 bed • 1 bath
5 bedroom detached house for sale in Troutstream Way, Rickmansworth, WD3 — £1,800,000 • 5 bed • 2 bath • 2945 ft²
Land for sale in Sandy Lodge Lane, Northwood, HA6 — £200,000 • 1 bed • 1 bath
Commercial development for sale in The Island, Church Street, Rickmansworth, Hertfordshire, WD3 1JJ, WD3 — POA • 1 bed • 1 bath






































